Huurwoning Krommenie

Weverstraat 2, Krommenie

Korte samenvatting

Locatie
Krommenie
Huurprijs
€ 901,72
Type woning
Tussenwoning
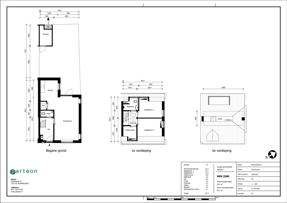
Oppervlakte:
85 m2
Kamers:
3
Slaapkamers:
2
Wachttijd:
(niet ingesteld)
Datum beschikbaar:
6 mei 2025
Maximaal inkomen:
(niet ingesteld)
Status:
Verlopen

Omschrijving woning

Gerenoveerde eengezinswoningen in het centrum van KrommenieParteon geeft 8 woningen die in het centrum van Krommenie staan een face-lift. Rond oktober 2025 zullen de woning gereed zijn.Deze 8 woningen hebben een herstelde fundering en worden momenteel gerenoveerd er wordt gebruik gemaakt van biobased materialen.Biobased materialen slaan CO2 op en zijn hernieuwbaar. Er worden onder andere kalkhennepblokken gebruikt in de uitbouw van de woningen en circulaire voordeuren, glas en vlasisolatie. Meer informatie hierover is te vinden op:https://www.parteon.nl/ik-ben-huurder/wwwparteonnlprojecten/project/weverstraat.Er wordt nu volop gewerkt om hier prachtige woningen van te maken die half oktober worden opgeleverd.In de woningen is geen gas aansluiting meer aanwezig. Voor elektrisch koken komt een 2 fase perilex aansluiting (maximaal 7200 watt). Er wordt een warmtepomp met boiler geplaatst die de woningen gaat voorzien van warmte. De woningen krijgen bij oplevering geen zonnepanelen. Het is wel mogelijk om deze later alsnog te laten plaatsen, de voorbereiding om zonnepanelen te plaatsen worden wel getroffen.Door het gebruik van de warmtepomp, goed geïsoleerde wanden, vloeren en daken en met elektrische koken wordt uw energierekening vaak lager .Woningen zijn geschikt voor gezinnen van 2 tot 4 personen. .De woning is gelegen op een centraal punt in Krommenie. Midden in het centrum met alle winkels en horeca om uw heen. De Weverstraat is een drukke doorgaande straat in Krommenie.Woning heeft een uitgebouwde woonkamer met open keuken en bergruimte voor (kleine) losse huishoudelijke apparaten.Op de verdieping zijn 2 ruime slaapkamers gelegen en een hobbykamer. In de badkamer met 2e toilet en de wasmachineaansluiting.Via een vlizotrap kunt u de bergzolder bereiken. U kunt beperkt uw  (niet te zware) spullen plaatsen. Daarnaast hangt hier de ventilatiebox die voor de centrale luchtafzuiging zorgt in de woning.Vanuit de woonkamer heeft u toegang tot de achtertuin gelegen op het Westen. Aparte berging is geplaatst in de tuin. In de berging is ook een klein deel gereserveerd voor de warmtpomp (het buitendeel van de warmte installatie).Er wordt nog druk gewerkt daarom is het TEN STRENGSTE VERBODEN om het bouwterrein te betreden.Uw keuze zal dan ook vanaf de plattegrond moeten plaatsvinden. U kunt natuurlijk altijd de omgeving gaan bekijken voordat u reageert dan krijgt u al een goede indruk van de woningen en de plek.Op een later tijdstip zal er een kijkuur worden georganiseerd, voor de kandidaten die een woning hebben toegewezen gekregen.U dient er rekening mee te houden dat u zelf nog zaken zult moeten aanpakken in de woning. U moet dan denken aan schilderen van kozijnen, wanden, vloeren en ondervloeren leggen, raamdecoratie plaatsen, tuin aanleg.Tuinonderhoud en aanleg zijn voor kosten van de huurder. Huurder dient de tuin netjes en schoon bij te houden.

Kaart