Huurwoning Kudelstaart

Edisonstraat 120, Kudelstaart

Korte samenvatting

Locatie
Kudelstaart
Huurprijs
€ 720,89
Type woning
Appartement
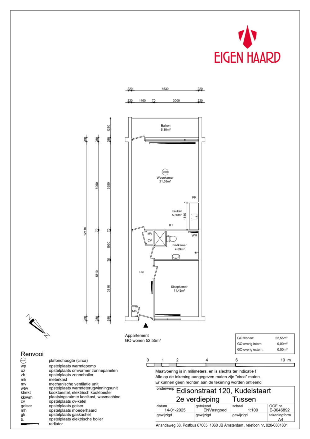
Oppervlakte:
44 m2
Kamers:
2
Slaapkamers:
1
Wachttijd:
(niet ingesteld)
Datum beschikbaar:
17 feb 2025
Maximaal inkomen:
€ 39.055,00
Status:
Verlopen

Omschrijving woning

BijzonderhedenJongerenwoningMaximaal 2 personenNiet geschikt voor bewoning met kinderenVloer kosteloos ter overnameDe woningWoonkamer met (half)open keuken1 slaapkamerBalkonWasmachine aansluiting in de badkamerDeze woning ligt in een gebied nabij Schiphol. Hierdoor kunt u (mogelijke) geluids- en milieuoverlast ervaren.JongerenwoningenVoor deze woning wordt een tijdelijk contract afgesloten, met een looptijd van maximaal 5 jaar.Bij deze jongerenwoning geldt dat er minimaal 1 en maximaal 2 personen mogen wonen. Huishoudens van 3 of meer personen kunnen hierdoor niet worden toegewezen. Daarnaast zijn huishoudens met kinderen in deze woning niet toegestaan.Een jongerencontract wordt slechts afgesloten tót de leeftijd van 28 jaar. Als men 28 wordt ná het reageren op de woning maar vóór het tekenen van de huurovereenkomst komt men niet in aanmerking.Let op:woningkenmerken, energielabel, plattegrond en huurprijs zijn nog onder voorbehoud. Klikhiervoor meer informatie.Technische staatWe leveren de woning volgens de Eigen Haard standaard op.  Voor meer informatie kijkt u op onzesite.Houd er rekening mee dat u zelf ook nog het een en ander moet doen om de woning naar uw smaak te maken. Denk aan schilderen van de muren en plafonds, afstomen van behang en/ of het leggen van een vloer.Wilt u de woning huren?Voor meer informatie over welke documenten u nog meer moet inleveren op het moment dat u eerste kandidaat wordt voor de woning, kijkt u op onzewebsite

Kaart