Huurwoning Landsmeer

De Poort 19, Landsmeer

Korte samenvatting

Locatie
Landsmeer
Huurprijs
€ 1.000,00
Type woning
Portiekwoning
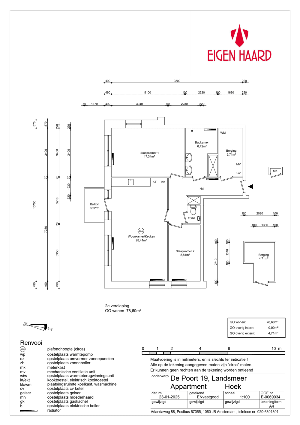
Oppervlakte:
61 m2
Kamers:
3
Slaapkamers:
2
Wachttijd:
(niet ingesteld)
Datum beschikbaar:
12 feb 2025
Maximaal inkomen:
(niet ingesteld)
Status:
Verlopen

Omschrijving woning

Tip!Verzamelde benodigde documentenalvast. Je hebt zemeteenna de bezichtiging nodig.Over de buurtIn de nieuwe woonwijk Luijendijk van Landsmeer, direct boven Amsterdam. Een groene en waterrijke omgeving. In het oude dorp vind je alle moderne voorzieningen zoals; winkels, supermarkten, restaurants, café’s en verschillende sportfaciliteiten. In de directe omgeving openbaar vervoer en uitvalswegen. Landsmeer is een leuke plaats om te wonen, met Amsterdam vlakbij om de gezellige drukte op te zoeken.Indeling van de woningOp de tweede verdieping entree tot de woning. Vanuit de hal kom je in de lichte en ruime woonkamer en de open keuken. De luxe keuken is uitgerust met alle belangrijke inbouwapparatuur. Vanuit de woonkamer is het balkon te bereiken. De woning heeft twee slaapkamers en een nette badkamer met dubbele wastafel en een inloop douche. Er is apart van de badkamer een toilet. De woning beschikt over een ruime externe berging, cv, mechanische ventilatie en dubbele beglazing.ParkerenParkeren kan voldoende in de buurt van de woning. Optioneel is het mogelijk om in de omgeving een parkeerplaats te huren. Bekijk onsparkeeraanbod.ToewijzingEigen Haard verhuurt huurwoningen in het middensegment op basis van het actuele inkomen (inkomen op dit moment). Zorg er daarom voor dat je actuele inkomen staat ingevuld in je profiel vóórdat je reageert op de woning. Laat dit bedrag vervolgens in je profiel staan totdat de selectie van de woning is geweest. Doe je dit niet? Dan kan het zijn dat wij je bij de gegevenscontrole moeten afwijzen voor de woning. Bekijk hier hoe je het actuelegezamenlijk jaarinkomenHet actuele inkomen van jou en je eventuele medeaanvrager tellen beide voor 100% mee.Als je zelfstandig ondernemer (zzp'er) bent, dan moet je minimaal 2 jaar werkzaam zijn als zelfstandig ondernemer. Ben je niet minimaal 2 jaar werkzaam als zelfstandig ondernemer, dan kom je niet in aanmerking voor de woning.Eigen Haard wil graag passend verhuren,kijkwat dat voor jou betekent.

Kaart