Huurwoning Ouderkerk aan de Amstel

Hoofdenburg 58, Ouderkerk aan de Amstel

Korte samenvatting

Locatie
Ouderkerk aan de Amstel
Huurprijs
€ 948,72
Type woning
Tussenwoning
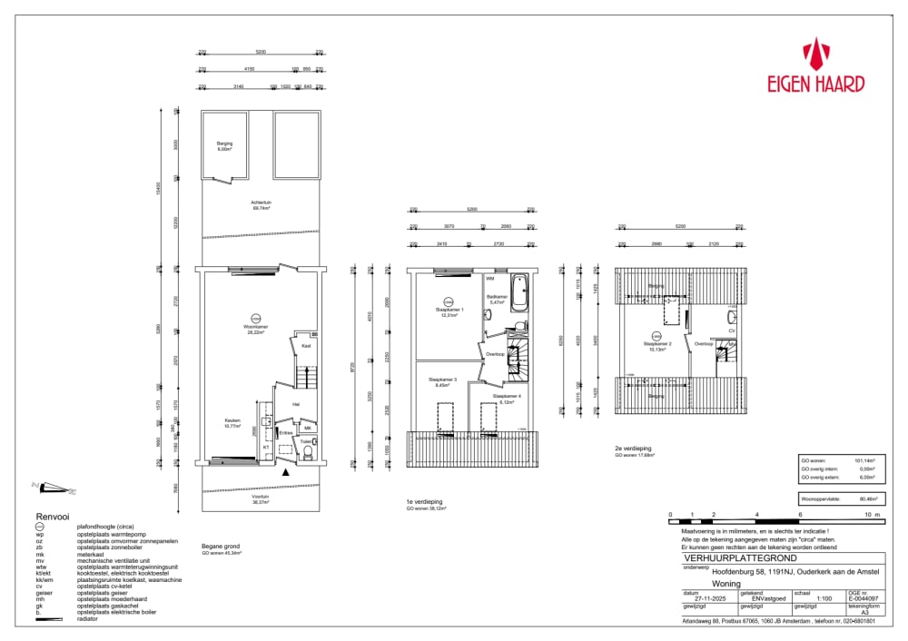
Oppervlakte:
79 m2
Kamers:
5
Slaapkamers:
4
Wachttijd:
(niet ingesteld)
Datum beschikbaar:
26 jan 2026
Maximaal inkomen:
(niet ingesteld)
Status:
Verlopen

Omschrijving woning

BijzonderhedenVoorrangsregels: Grote gezinnenParkeerbeleid: Gratis parkerenOmgeving: U kunt hinder ondervinden van vliegtuigverkeerVoorrang grote gezinnenDeze woning is met voorrang bestemd voor grote gezinnen. Dit zijn huishoudens met minimaal drie kinderen onder de 18 jaar. Zoek op dewebsite van Woningnetop “grote gezinnen” om uitleg en de voorwaarden te lezen. De voorrang voor grote gezinnen wordt pas gecontroleerd nadat u op de nummer 1 positie bent gekomen en de woning aangeboden heeft gekregen.De woningWoonkamer met open keuken4 slaapkamers, waarvan 1 slaapkamer op zolderWasmachine aansluiting in de badkamerToilet in de halAchtertuin met bergingDe woning is voorzien van 6 zonnepanelenEr vinden momenteel werkzaamheden in de woning plaats: er worden o.a. een nieuwe badkamer en keuken geplaatst. De werkzaamheden zullen met de bezichtiging afgerond zijn. Neem gerust een kijkje door het raam, de woning is momenteel leeg.In de buurtKindvriendelijke buurtOpenbare parkeerplaatsenin de omgeving is ook een wandelgebied met veel groen en waterOpenbaar vervoer is te bereiken via voet of fietsJe bent snel op de A9 of de BeneluxbaanLet op:woningkenmerken, plattegrond en huurprijs zijn nog onder voorbehoud. Klikhiervoor meer informatie.Technische staatWe leveren de woning volgens de Eigen Haard standaard op.  Voor meer informatie kijkt u op onzesite.Houd er rekening mee dat u zelf ook nog het een en ander moet doen om de woning naar uw smaak te maken. Denk aan schilderen van de muren en plafonds, afstomen van behang en/ of het leggen van een vloer.Wilt u de woning huren?Voor meer informatie over welke documenten u nog meer moet inleveren op het moment dat u eerste kandidaat wordt voor de woning, kijkt u op onzewebsite

Kaart