Huurwoning Spaarndam

Westhoff 52, Spaarndam

Korte samenvatting

Locatie
Spaarndam
Huurprijs
€ 709,07
Type woning
Benedenwoning
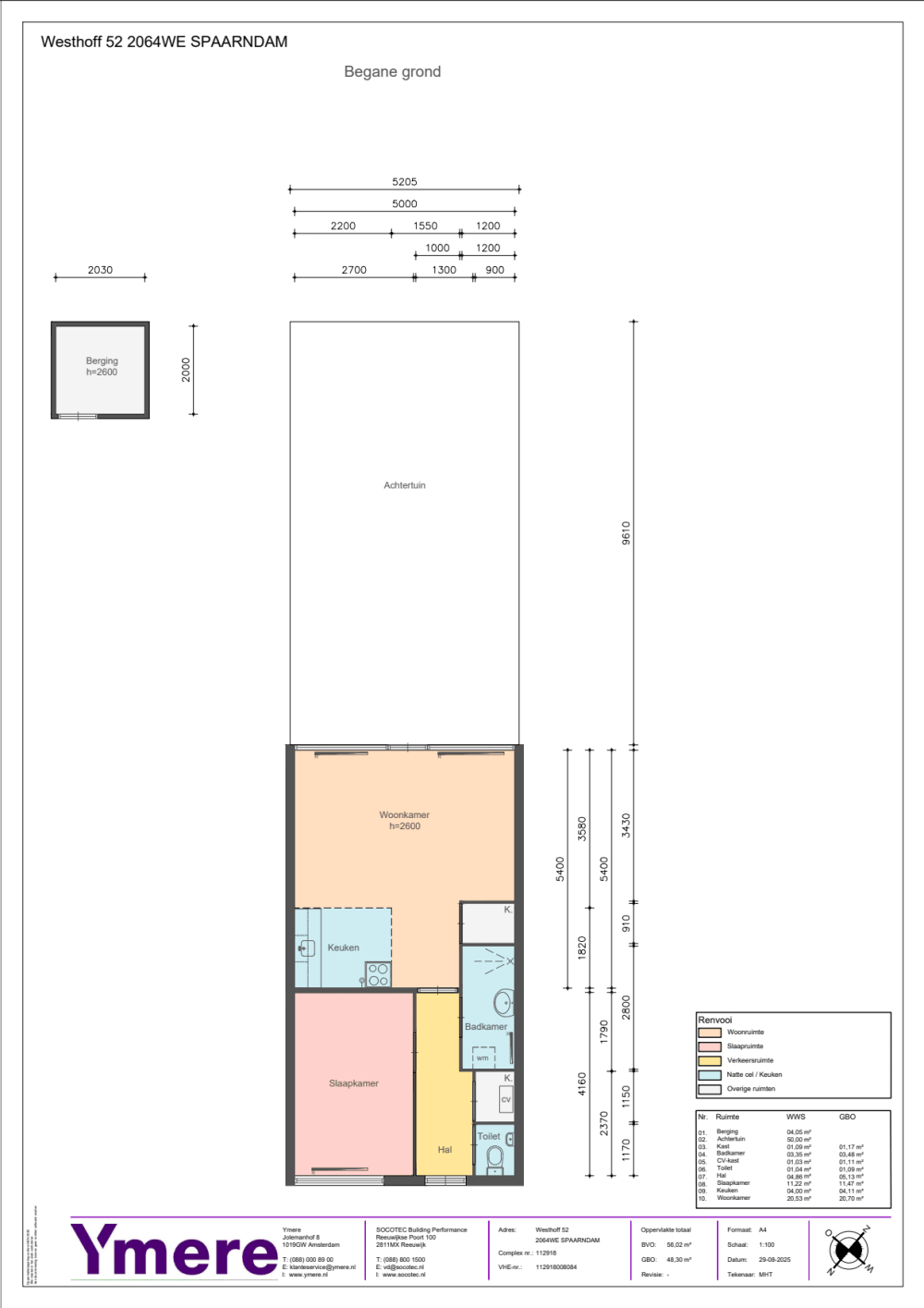
Oppervlakte:
39 m2
Kamers:
2
Slaapkamers:
1
Wachttijd:
(niet ingesteld)
Datum beschikbaar:
15 okt 2025
Maximaal inkomen:
€ 39.055,00
Status:
Verlopen

Omschrijving woning

Tweekamer benedenwoning op de begane grond met een achtertuin in SpaarndamWoningBenedenwoningWoonkamer met open keukenBadkamer en toilet apartWasmachine-aansluiting in de badkamerWel bovenburenAchtertuinBergingLeef- en contactgeluiden omwonendenGeschikt voor maximaal 1 persoonBijzonderhedenWoning verhuurbaar per is onder voorbehoudStaat van de woningYmere levert iedere woning op met basiskwaliteit: schoon, heel en veilig.Wat moet u aan de woning doen?Houdt er rekening mee dat u zelf nog het een en ander moet doen om de woning naar uw smaak te maken. Denk hierbij aan het leggen van ondervloeren en vloeren (minimaal 10cha decibel reducerend), schilderen en behangen van de wanden en plafondsOvernameDe vertrekkende bewoner biedt ter overname aan:LaminaatvloerOp de overnames kunnen geen rechten worden ontleend. Bij defect worden ze voor de oplevering door Ymere verwijdert. Bij eventuele toekomstige gebreken zijn de kosten voor de huurder zelf. Bij ondertekening van de huurovereenkomst bent u automatisch eigenaar. Ymere voert hier geen werkzaamheden aan uit.Alle overnames en zelf aangebrachte voorzieningen neemt u over. Ymere is hier niet verantwoordelijk voor. Eventuele kosten bij gebreken hieraan zijn voor uzelf of Ymere plaatst standaardproducten ervoor in de plaats.In de buurtOV, maar beperktScholen, maar beperktWinkelsSupermarktHorecaParkenUitvalswegen op enige afstandGratis parkerenVerzamel alvast uw gegevensKrijgt u een uitnodiging om deze woning te bekijken en wilt u komen kijken? Verzamel dan alvast uw gegevens voor Ymere. Want als u de woning komt bekijken en daarna laat weten dat u deze wilt huren, moet u uw gegevens de volgende werkdag voor 12.00 uur aanleveren. Ook als u niet kandidaat nummer 1 bent levert u de gevraagde documenten in!  Kijk op onzewebsiteof in dezefolderwat u moet aanleveren. Levert u uw gegevens niet op tijd aan? Dan krijgt u geen aanbod. U kunt de woning dan niet meer huren.BezichtigingKandidatennummer 1 t/m 10 worden uitgenodigd voor een bezichtiging op 25 september 2025. Als u geen uitnodiging heeft dan kan u niet komen bezichtigen. Deze datum is onder voorbehoud u krijgt een notificatie per mail als de datum wijzigt.Tot slotDe oplevering van de woning kan afwijken van de advertentietekst, de plattegrond, de foto’s en de bezichtiging in verband met eventuele werkzaamheden.Aan deze advertentie kunt u geen rechten ontlenen

Kaart