Huurwoning Wormer

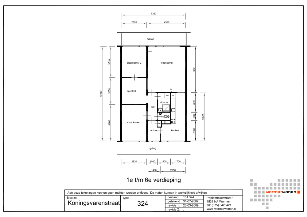
Koningsvarenstraat 272, Wormer

Korte samenvatting

Locatie
Wormer
Huurprijs
€ 965,69
Type woning
Appartement
Oppervlakte:
59 m2
Kamers:
3
Slaapkamers:
2
Wachttijd:
(niet ingesteld)
Datum beschikbaar:
5 feb 2026
Maximaal inkomen:
(niet ingesteld)
Status:
Gepubliceerd
Reageren

Omschrijving woning

Verduurzaamde galerijflat met 3 kamers op de 3e verdieping in WormerToewijzingsinformatieEen kennismakingsgesprek maakt onderdeel uit van de toewijzing.AandachtspuntenDeze woning is verduurzaamd in het kader van ons duurzaamheidsproject “De Versnelling”. Er zijn zonnepanelen, convectoren, een geïsoleerde gevel en de mogelijkheid om elektrisch te koken.Er is een warmtepomp op het dak waardoor u minder gas verbruikt voor verwarming van uw woningEPA-label: A+Stookkosten en uw waterverbruik betaalt u iedere maand via de bruto huurprijsU kunt gebruik maken van de diensten van de complexbeheerderGehorige flatDe komende jaren vinden er sloop- en nieuwbouwwerkzaamheden nabij plaats: in de Gele Lisstraat. Houdt u hiermee rekening als u reageert.Een kennismakingsgesprek maakt onderdeel uit van de toewijzingWoningkenmerkenDeze flat is gesitueerd op de 3e verdiepingHet flatgebouw heeft in totaal 6 verdiepingen; lift aanwezigEr is een woonkamer en 2 slaapkamersKeuken, toilet en badkamer zijn 3 aparte vertrekken (u kookt op gas; u heeft wel de mogelijkheid om elektrisch te koken)Toilet heeft een fonteintjeIn de badkamer heeft u de douche en een wastafelRuime hal in de woningBalkon aanwezigEigen berging op de begane grondBuurtGrote speeltuin bij het flatgebouwWandelpad langs water Het Zwet start bij de flatWinkelcentrum Wormer op 10 minuten loopafstandBinnen 5 minuten met de auto zit u op de uitvalswegen richting Zaandam, Alkmaar of AmsterdamDe dichtstbijzijnde openbare basisschool is op ongeveer 600 meterWormer is een dorp midden in de natuur van het Wormer- en Jisperveld. Mooi gebied om in te wandelen. Wormer heeft diverse faciliteiten, alle binnen een afstand van tot 5 km. Denkt u aan winkels, basisscholen, sport(verenigingen), zwembad, horeca, theater, kinderboerderij, diverse speeltuintjes, welzijnswerk, activiteiten voor ouderen, bibliotheek, huis- en tandartsen, fysiotherapie, apotheek, openbaar vervoer (trein en bus), uitvalswegen richting Zaandam, Alkmaar en Amsterdam.DuurzaamheidZonnepanelenConvectorenGeïsoleerde gevelMogelijkheid om elektrisch te kokenWarmtepomp op het dak waardoor er minder gasverbruik is voor de verwarmingTechnische staatHoud u er rekening mee dat u zelf nog wat aan de woning moet doen. Denk aan schilderen van muren en plafonds, afstomen van behang en/of leggen van een vloer.De volgende zaken heeft WormerWonen altijd voor u gedaan:De sloten (cilinders) in de buitendeuren zijn vervangenHet hang- en sluitwerk is gecontroleerd en afgesteldDe cv-installatie is bijgevuld en ontluchtDe ventilatie-ventielen en -roosters zijn gereinigd en gangbaar gemaaktDe kranen zijn gecontroleerd en gebreken verholpenDe toiletbril(len) is vervangenDe douchekop en -slang zijn vervangenDe vloeren zijn bezemschoon gemaaktHet tegelwerk is gereinigd (kalk)De keukendeurtjes en -laden zijn afgesteldOvername en overige informatieU kunt evt. roerende zaken overnemen van de vertrekkende bewoner. Wij brengen de nieuwe huurder altijd in contact met de vertrekkende bewoner om deze zaken te bespreken. De nieuwe huurder is tot niets verplicht.Als u elektrisch wilt gaan koken, dan dient u zelf een elektrische kookvoorziening en evt. nieuwe pannen aan te schaffen.De komende jaren vinden er sloop- en nieuwbouwwerkzaamheden nabij plaats: in de Gele Lisstraat. Houdt u hiermee rekening als u reageert.Een kennismakingsgesprek maakt onderdeel uit van de toewijzing

Kaart