Huurwoning Wormerveer

Billitonkade 23, Wormerveer

Korte samenvatting

Locatie
Wormerveer
Huurprijs
€ 684,61
Type woning
Portiekwoning
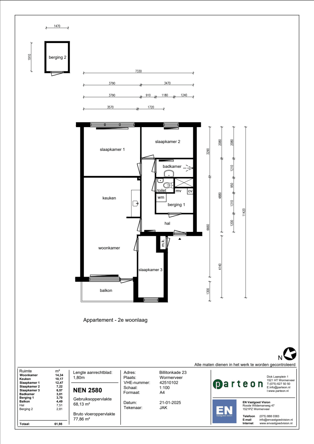
Oppervlakte:
61 m2
Kamers:
3
Slaapkamers:
2
Wachttijd:
(niet ingesteld)
Datum beschikbaar:
14 feb 2025
Maximaal inkomen:
€ 39.055,00
Status:
Verlopen

Omschrijving woning

PortiekwoningWoningCentraal gelegen in het dorp WormerveerBouwjaar 1993Gelegen op 2e verdiepingVloertype BetonOpen keukenElektrisch koken perilex aansluiting aanwezig maximaal 7200 wattBalkon op het noord westenExterne berging aanwezig en berging inpandigCompacte badkamer met wastafel en doucheSeparate toiletGratis parkeren in de buurtWasmachine aansluiting, cv, mechanische ventilatie in de inpandige bergingGehorigheid: leef geluiden.Houd er rekening mee dat u zelf nog het één en ander moet doen om de woning naar uw smaak te maken. Denk hierbij aan het leggen van vloeren/ondervloeren (minimaal 10 decibel reducerend), afstomen van behang, schilderen/behangen van de muren, deuren, (raam)kozijnen en plafonds. Parteonlevert de woning aan u op volgens de basisregels: Schoon en veilig.Foto's ter indicatie: afwerking kan afwijkenOmgevingSupermarkt op loopafstandLagere school op loopafstandOpenbaar vervoer op loopafstandSpeeltuin aan de voorzijde van de woningWoning is gelegen in een rustige wijkLet op:woningkenmerken en plattegrond kunnen mogelijk iets afwijken van de werkelijkheid. Bijvoorbeeld omdat wij nog werkzaamheden moeten uitvoeren na de bezichtiging. De basis zoals het aantal kamers en het type woning staan vast.Aan deze advertentie kunt u geen rechten ontlenen.Huurprijs is onder voorbehoud. Deze kan nog wijzigen.

Kaart