Huurwoning Wormerveer

Zaanstroom 83, Wormerveer

Korte samenvatting

Locatie
Wormerveer
Huurprijs
€ 777,36
Type woning
Benedenwoning
Oppervlakte:
74 m2
Kamers:
3
Slaapkamers:
2
Wachttijd:
(niet ingesteld)
Datum beschikbaar:
25 jul 2025
Maximaal inkomen:
(niet ingesteld)
Status:
Verlopen

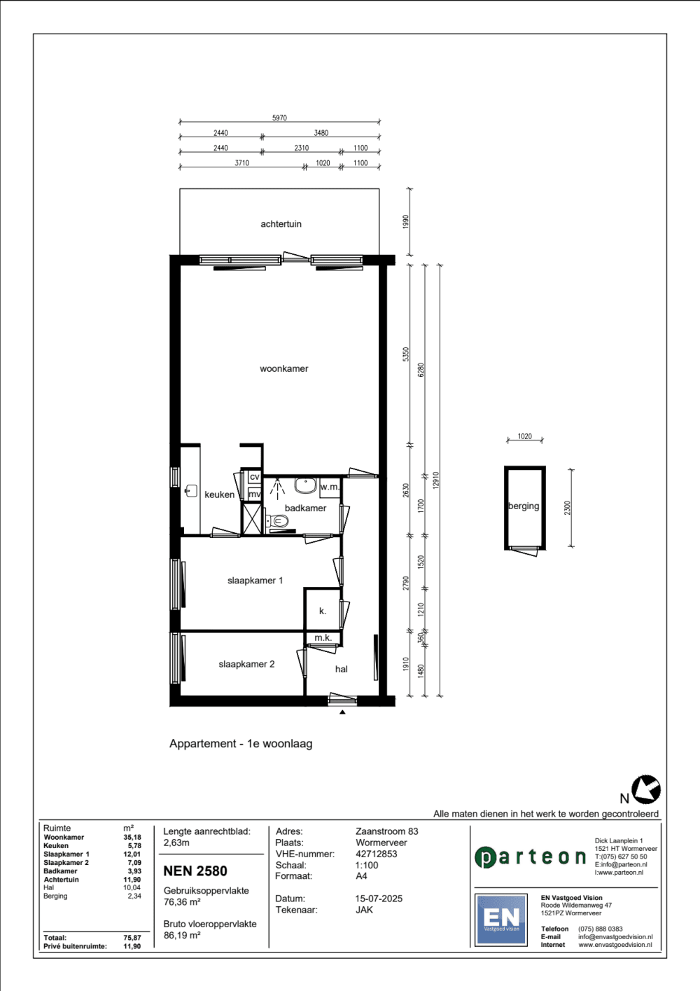
Omschrijving woning

GalerijflatWoningCentraal gelegen in het dorp WormerveerDeze woning wordt niet verhuurd aan een huishouden met kinderen.Vloertype BetonGelijkvloersOpen keukenElektrisch koken perilex aansluiting aanwezig maximaal 7200 wattAchter tuin op het zuid oostenKleine externe berging op de begane grond aanwezig1 toilet in de badkamerGratis parkeren in de omgeving van het gebouwWasmachine aansluiting in de badkamerGehorigheid: leef geluiden.Houd er rekening mee dat u zelf nog het één en ander moet doen om de woning naar uw smaak te maken. Denk hierbij aan het leggen van vloeren/ondervloeren (minimaal 10 decibel reducerend), afstomen van behang, schilderen/behangen van de muren, deuren, (raam)kozijnen en plafonds. Parteonlevert de woning aan u op volgens de basisregels: Schoon en veilig.Foto's ter indicatie: afwerking kan afwijkenGemeenschappelijke tuinGemeenschappelijke ontmoetingsruimte met activiteitenKosten voor water zitten in de servicekostenOmgevingSupermarkt op loop-fietsafstandOpenbaar vervoer op loop-fietsafstandNette bewoning gewenstLet op:woningkenmerken en plattegrond kunnen mogelijk iets afwijken van de werkelijkheid. Bijvoorbeeld omdat wij nog werkzaamheden moeten uitvoeren na de bezichtiging. De basis zoals het aantal kamers en het type woning staan vast.Aan deze advertentie kunt u geen rechten ontlenen.Huurprijs is onder voorbehoud. Deze kan nog wijzigen.

Kaart