Huurwoning Zaandam

Groenland 77, Zaandam

Korte samenvatting

Locatie
Zaandam
Huurprijs
€ 808,75
Type woning
Appartement
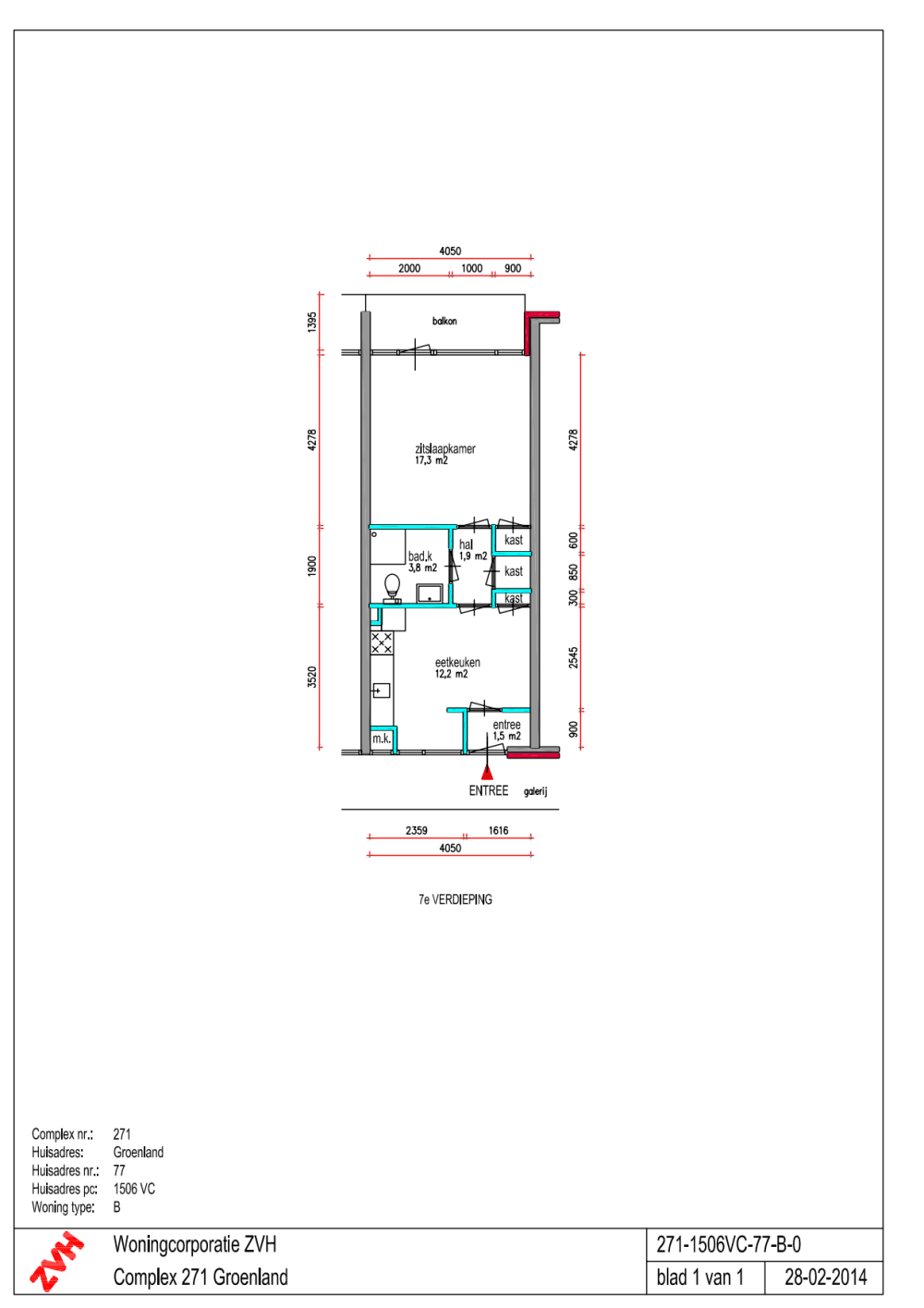
Oppervlakte:
18 m2
Kamers:
1
Slaapkamers:
0
Wachttijd:
(niet ingesteld)
Datum beschikbaar:
11 aug 2025
Maximaal inkomen:
(niet ingesteld)
Status:
Verlopen

Omschrijving woning

Studioin Oud-West voor seniorenWoningAfgesloten entree.Zevende verdieping.Lift aanwezig.Entree/hal.Gesloten keuken aan voorzijde.Elektrisch koken, 2-fase.Woon/slaapkamer achterzijde.Balkon op het zuidwesten.Badkamer met toilet.Op de begane grond is een eigen box/berging (geen stopcontact).WoonomgevingGelegen in Oud-West.Centrum van Zaandam op loopafstand.Rustige woonwijk.Een winkelcentrum op loopafstand.In dit gebied geldt betaald parkeren.Als bewoner kunt u een parkeervergunning aanvragen (indicatie € 110,- per jaar).Bushalte op loopafstand.Het spoor ligt in de buurt.Aanvullende informatieInwonende kinderen zijn niet toegestaan.De bruto huurprijs is inclusief een voorschot stookkosten en watergeld. Deze zijn voorzien van eigen meters.Er is een huismeester aanwezig.Eerste woning op de galerij.Wasmachineaansluiting in de badkamer.Gemeenschappelijke fietsenstalling.De bezichtiging vindt plaats op dinsdag 19 augustus om 11uur.

Kaart