Huurwoning Zaandam

Hof van Zaenden 132, Zaandam

Korte samenvatting

Locatie
Zaandam
Huurprijs
€ 735,92
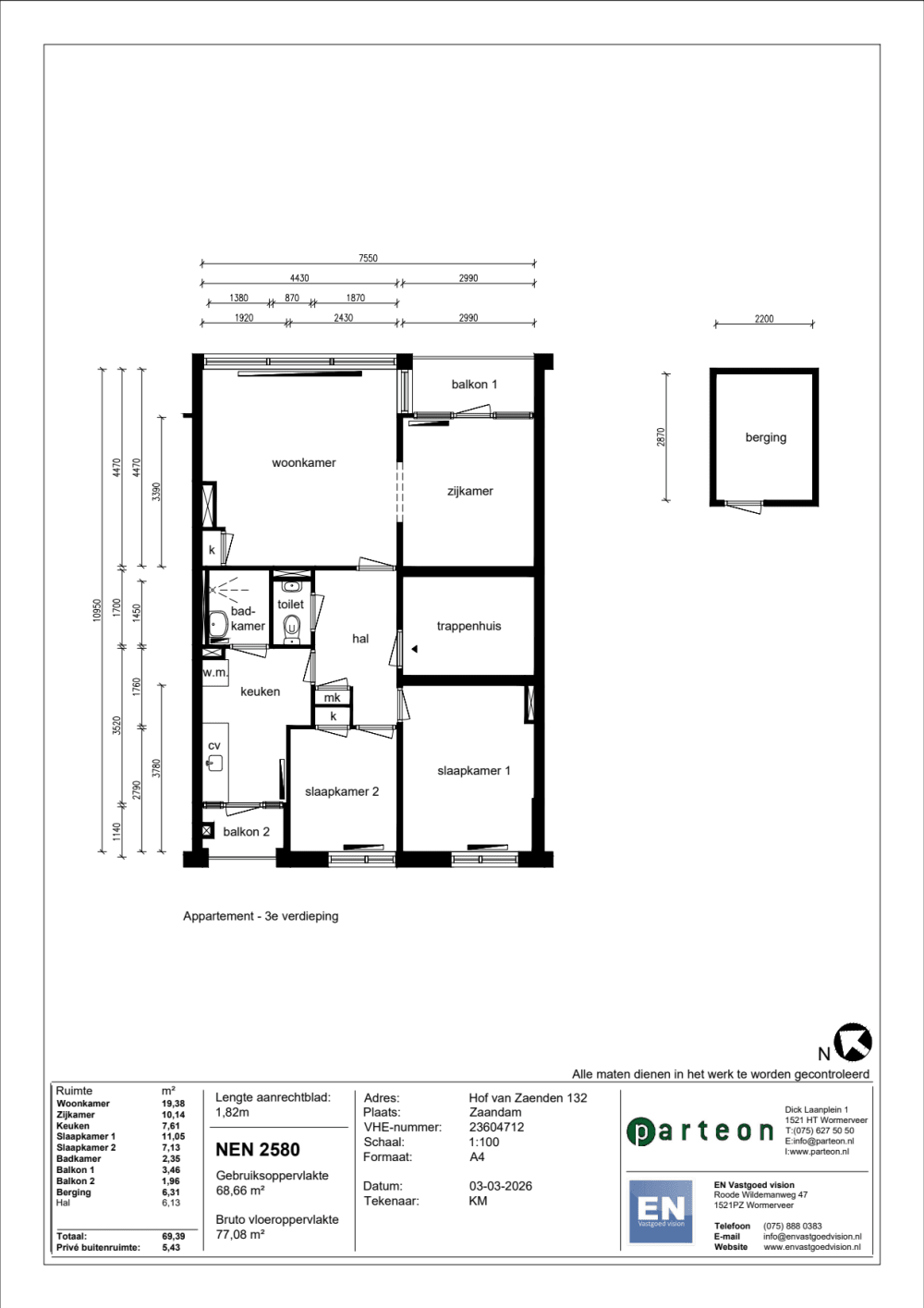
Type woning
Portiekwoning
Oppervlakte:
57 m2
Kamers:
4
Slaapkamers:
3
Wachttijd:
(niet ingesteld)
Datum beschikbaar:
18 mrt 2026
Maximaal inkomen:
€ 39.055,00
Status:
Gepubliceerd
Reageren

Omschrijving woning

Portiekwoning op de 3e etage in de wijk Kogerveld in het centrum van Zaandamcentraal gelegen woning nabij het treinstation en ziekenhuis. ook zit er aan de overzijde een brandweerkazerne.binnen 10 minuten bent u met de auto in Amsterdam.Woning voor gezinnenWoninggesloten keukenwoonkamer op het Oostentoilet in de halbadkamer via keuken te bereiken3 slaapkamersbalkon op het oosten bereikbaar via slaapkamergroenstrook voor de deurberging beneden en aparte fietsplek in de halOmgevinggelegen in de wijk Kogerveld van Zaandamtreinstation op 2 minuten loopafstandsupermarkt op 5 minuten afstandgelegen aan doorgaande straatvoldoende parkeergelegenheid (gratis Parkeren)nabij het ziekenhuisuitvalswegen naar Amsterdam binnen 3 minuten te bereikenwoning wordt volgens basiskwaliteit schoon, heel en veilig opgeleverdParteon levert iedere woning op met basiskwaliteit. Houd u er rekening mee dat u zelf nog het een en ander moet doen om de woning naar uw smaak te maken. Denk hierbij aan het leggen van een ondervloer/vloer (minimaal 10 decibel reducerend) afstomen van behang, opnieuw behangen of schilderen van muren. Schilderen van deuren, (raam) kozijnen en plafonds. Stofferen van de woning naar eigen smaak.Let op:woningkenmerken en plattegrond kunnen mogelijk iets afwijken van de werkelijkheid. Bijvoorbeeld omdat wij nog werkzaamheden moeten uitvoeren na de bezichtiging. De basis zoals het aantal kamers en het type woning staan vast.Aan deze advertentie kunt u geen rechten ontlenen.Huurprijs in onder voorbehoud. Deze kan nog wijzigen.foto's kunnen gemaakt zijn van gelijke woning in hetzelfde projectFRAUDEIndien wij constateren dat documenten zijn vervalst en niet overeenkomen met de werkelijke situatie dan noemen we dat fraude. Dit geldt ook als u bewust een verkeerde voorstelling van de situatie geeft. Hier staat een zware sanctie op. De woningaanbieding wordt ingetrokken en u wordt voor de duur van één jaar geblokkeerd om via Woningnet te reageren.ZELFSTANDIG ONDERNEMERIndien u zelfstandig ondernemer bent dient u een recente definitieve aanslag of IBRI in te leveren. Als deze niet representatief of onbekend is dan dient u een voorlopige aanslag in te leveren bij Parteon. U kunt een geschatte aangifte indienen bij de Belastingdienst. U krijgt dan binnen twee weken een voorlopige aanslag van de Belastingdienst toegestuurd. Het heeft geen zin om op een woning te reageren als u deze aanslag nog niet heeft.De huur in deze advertentie is onder voorbehoud. Een intakegesprek en een betaalbaarheidstoets kunnen deel uitmaken van de toewijzingsprocedure.LET OP!Indien u kandidaat 1 wordt voor deze woning willen wij u erop wijzen dat u uw persoonlijke gegevens binnen 3 werkdagen bij Parteon dient in te leveren. Mochten de gegevens niet op tijd binnen zijn dan is Parteon genoodzaakt om de woning aan de volgende kandidaat aan te bieden.Voorwaarden:Inkomensverklaring verplichtEen verklaring geregistreerd inkomen of een definitieve aanslag inkomstenbelasting van de Belastingdienst van u en alle meeverhuizende personen (behalve kinderen) is verplicht. Deze moet van het voorgaande jaar zijn, of als deze nog niet beschikbaar is, van het jaar daarvoor.Vraag uwinkomensverklaringdirect aan door in te loggen op Mijn Belastingdienst of via de Belastingtelefoon (0800-0543). De corporatie controleert uw inkomen bij de toewijzing en wil uw inkomensverklaring(en) altijd ontvangen, ook als er geen bedrag op staat.Zorg ervoor dat het inkomen in uw inschrijving klopt. Anders loopt u het risico dat de corporatie u afwijst als u eerste kandidaat wordt.

Kaart