Huurwoning Zaandam

Langeweide 3, Zaandam

Korte samenvatting

Locatie
Zaandam
Huurprijs
€ 982,65
Type woning
Tussenwoning
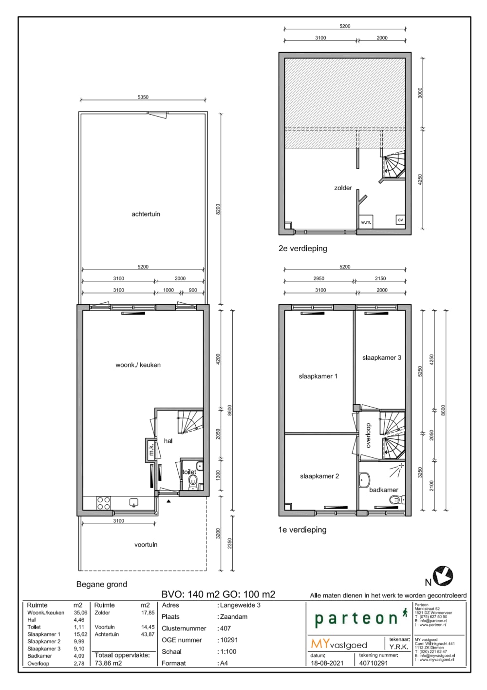
Oppervlakte:
108 m2
Kamers:
4
Slaapkamers:
3
Wachttijd:
(niet ingesteld)
Datum beschikbaar:
10 nov 2025
Maximaal inkomen:
(niet ingesteld)
Status:
Verlopen

Omschrijving woning

Vrije sector eengezinswoning in de wijk Westerwatering te ZaandamTussenwoning in een mooie omgeving nabij het centrum van ZaandamWoningWoonkamerOpen keukenToilet in de halVoortuinVia deur in de woonkamer is de achtertuin bereikbaarBerging aan voorzijde woningBadkamer op de 1e verdieping3 slaapkamerscv-ketelIn de BuurtSupermarkt in winkelcentrum op korte afstand van de woningHuisarts op een paar min. fietsafstandLagere school op een paar min. loopafstandBushalte op 2 min. loopafstandTreinstation op 10 min. fietsafstandUitvalswegen naar Amsterdam binnen 8 min. bereikbaarSpeelgelegenheden in omgevingParkeren op parkeerplaats voor de woning.Gelegen in rustige woonwijkGelegen in de wijk Westerwatering te Zaandam.Let op:woningkenmerken en plattegrond kunnen mogelijk iets afwijken van de werkelijkheid. Bijvoorbeeld omdat wij nog werkzaamheden moeten uitvoeren na de bezichtiging. De basis zoals het aantal kamers en het type woning staan vast.tuininrichting en erfafscheiding is voor de huurder zelf.Parteon is voornemens een hybride pomp te gaan plaatsen in deze woning.Aan deze advertentie kunt u geen rechten ontlenenHuurprijs in onder voorbehoud. Deze kan nog wijzigen.Parteon levert iedere woning op met basiskwaliteit. Houd u er rekening mee dat u zelf nog het een en ander moet doen om de woning naar uw smaak te maken. Denk hierbij aan het leggen van een ondervloer/vloer (minimaal 10 decibel reducerend) afstomen van behang, opnieuw behangen of schilderen van muren. Schilderen van deuren, (raam) kozijnen en plafonds. Stofferen van de woning naar eigen smaak.Let op gasloos koken in deze woning!Parteon installeert vanaf 1 april 2022 in alle keukens een elektrische aansluiting voor het koken op elektra en verwijderd de gas aansluiting. Het is dan niet meer mogelijk om op gas te koken. Er zijn verschillende soorten aansluitingen en mogelijkheden voor het koken op elektra. Let op bij de aanschaf van uw elektrische kookplaat of fornuis of deze geschikt is voor de aanwezige aansluiting. Informatie over het type aansluiting zal bekend gemaakt worden bij de bezichtiging of na de oplevering van de woning. (Parteon kan niet aansprakelijk gesteld worden voor verkeerd aangeschafte kookplaten of fornuizen).Voor meer informatie verwijzen we u graag naarhttps://www.rijksoverheid.nl/onderwerpen/duurzame-energie/vraag-en-antwoord/hoe-lang-kan-ik-nog-koken-op-gasFRAUDEIndien wij constateren dat documenten zijn vervalst en niet overeenkomen met de werkelijke situatie dan noemen we dat fraude. Dit geldt ook als u bewust een verkeerde voorstelling van de situatie geeft. Hier staat een zware sanctie op. De woningaanbieding wordt ingetrokken en u wordt voor de duur van één jaar geblokkeerd om via Woningnet te reageren.ZELFSTANDIG ONDERNEMERIndien u zelfstandig ondernemer bent dient u een recente definitieve aanslag of IBRI in te leveren. Als deze niet representatief of onbekend is dan dient u een voorlopige aanslag in te leveren bij Parteon. U kunt een geschatte aangifte indienen bij de Belastingdienst. U krijgt dan binnen twee weken een voorlopige aanslag van de Belastingdienst toegestuurd. Het heeft geen zin om op een woning te reageren als u deze aanslag nog niet heeft.De huur in deze advertentie is onder voorbehoud. Een intakegesprek en een betaalbaarheidstoets kunnen deel uitmaken van de toewijzingsprocedure.LET OP!Indien u kandidaat 1 wordt voor deze woning willen wij u erop wijzen dat u uw persoonlijke gegevens binnen 3 werkdagen bij Parteon dient in te leveren. Mochten de gegevens niet op tijd binnen zijn dan is Parteon genoodzaakt om de woning aan de volgende kandidaat aan te bieden.Voorwaarden:Inkomensverklaring verplichtEen verklaring geregistreerd inkomen of een definitieve aanslag inkomstenbelasting van de Belastingdienst van u en alle meeverhuizende personen (behalve kinderen) is verplicht. Deze moet van hetvoorgaande jaar zijn, of als deze nog niet beschikbaar is, van het jaar daarvoor.Vraag uwinkomensverklaringdirect aan door in te loggen op Mijn Belastingdienst of via de Belastingtelefoon (0800-0543). De corporatie controleert uw inkomen bij de toewijzing en wil uw inkomensverklaring(en) altijd ontvangen, ook als er geen bedrag op staat.Zorg ervoor dat het inkomen in uw inschrijving klopt. Anders loopt u het risico dat de corporatie u afwijst als u eerste kandidaat wordt.

Kaart