Huurwoning Zaandam

Mahoniehout 346, Zaandam

Korte samenvatting

Locatie
Zaandam
Huurprijs
€ 727,41
Type woning
Appartement
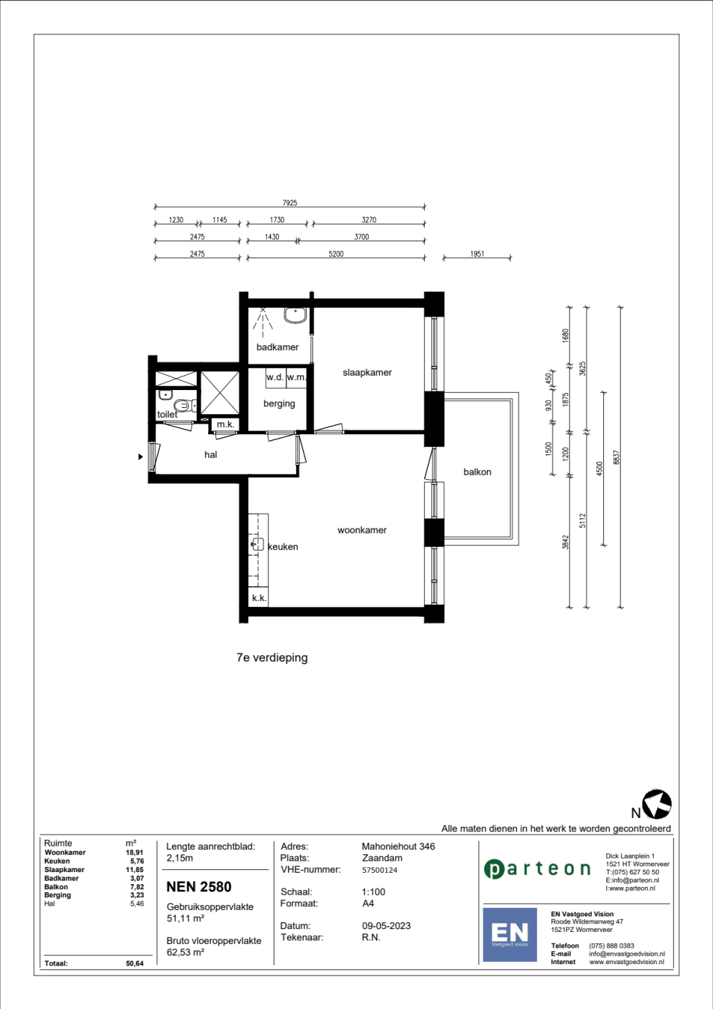
Oppervlakte:
40 m2
Kamers:
2
Slaapkamers:
1
Wachttijd:
(niet ingesteld)
Datum beschikbaar:
1 mei 2025
Maximaal inkomen:
€ 39.055,00
Status:
Verlopen

Omschrijving woning

Nieuwbouw Zaanse Helden Toren H De Gekroonde Harp. Betreft 82 woningen met voorrang voor GEB. 2 en 3 kamer appartementen. Dit appartement is een 2 kamer appartement.Komt u wonen in de Zaanse Helden?De Zaanse Helden is een hagelnieuw wooncomplex in Zaandam nieuw west, waar vroeger honderden molens stonden te draaien, de Zaanse Helden van weleer.Van de Zaanse Helden van toen naar de Zaanse Helden van nu, met een kopgroep van aspirant huurders, community builders die geen genoegen nemen met een anoniem bestaan dat zo gewoon is geworden. Waar buren elkaar niet meer kennen of groeten, waarin we niets delen behalve de plek waar wij wonen. Maar dit gaat niet gebeuren in de Zaanse Helden!Samen in de Zaanse helden wonen betekent:Wij zijn bewoners en buren die niet alleen een huis hebben maar ook een thuis. Een plek waar we samenwonen en leven.Wij wonen op een prachtige groene plek, die we ook groen, schoon en leefbaar willen houden. Bij de Zaanse Helden mag iedereen zijn cultuur, geloof en levensovertuiging naleven. Dit doen we met begrip en respect voor elkaar.Ben je sociaal, gemotiveerd, ruimdenkend, groen, toegankelijk en hulpvaardig en ben je bereid om je in te zetten voor onze community? Dan ben jij de Zaanse Held die we zoeken!Deze luxe appartementen omvatten 11 etages in Toren D De Gekroonde Harp met in totaal 82 appartementen.het complex bestaat uit 2 en 3 kamer appartementen die verdeeld zijn over alle etages.De woning is voorzien van vloerverwarming en een WKO (warmte koudeopslag). In de keuken is er een aansluiting gemaakt voor een vaatwasser, waarbij een keukenkastje demontabel is om de vaatwasser te plaatsen. Om te koken is er een elektrische 2 fase Perilex aansluiting geplaatst met een maximale wattage van 7400 watt.Bij de woning hoort een genummerd fietsenrek voor 2 fietsen in de algemene ruimte op de begane grond. Er is geen individuele berging. Er zijn 21 parkeerplekken beschikbaar voor het totaal aantal appartementen. Bij meer aanmeldingen worden de parkeerplaatsen geloot. Naast deze parkeerplaatsen zijn er ook nog 3 deelauto’s tot ieders beschikking. Parkeren in de omgeving is NIET MOGELIJK.Bezichtiging is helaas niet mogelijk omdat het een nieuwbouw project betreftfoto's zijn vanuit woningen in het complex niet specifiek uit huisnummer 346!HET IS NIET TOEGESTAAN HET BOUWTERREIN TE BETREDEN.De verwachte voorschotkosten van de collectieve energie zijn 140 euro afhankelijk van het stookgedrag van de huurder. De afname van energie is bij Etech.De servicekosten bestaan uit kosten voor de volgende posten: algemeen elektraverbruik, huismeester, schoonmaakkosten lift en glasverzekering. Deze kunnen nog worden gewijzigd!Het station en het centrum van Zaandam zijn ongeveer 10 minuten lopen van het complex.Supermarkt en winkelcentrum van de Westerwatering liggen op 5 minuten fietsen.FRAUDEIndien wij constateren dat documenten zijn vervalst en niet overeenkomen met de werkelijke situatie dan noemen we dat fraude. Dit geldt ook als u bewust een verkeerde voorstelling van de situatie geeft. Hier staat een zware sanctie op. De woningaanbieding wordt ingetrokken en u wordt voor de duur van één jaar geblokkeerd om via Woningnet te reageren.ZELFSTANDIG ONDERNEMERIndien u zelfstandig ondernemer bent dient u een recente definitieve aanslag of IBRI in te leveren. Als deze niet representatief of onbekend is dan dient u een voorlopige aanslag in te leveren bij Parteon. U kunt een geschatte aangifte indienen bij de Belastingdienst. U krijgt dan binnen twee weken een voorlopige aanslag van de Belastingdienst toegestuurd. Het heeft geen zin om op een woning te reageren als u deze aanslag nog niet heeft.De huur in deze advertentie is onder voorbehoud. Een betaalbaarheidstoets kunnen deel uitmaken van de toewijzingsprocedure.

Kaart