Huurwoning Zaandam

Mauvestraat 44, Zaandam

Korte samenvatting

Locatie
Zaandam
Huurprijs
€ 984,49
Type woning
Appartement
Oppervlakte:
57 m2
Kamers:
2
Slaapkamers:
1
Wachttijd:
(niet ingesteld)
Datum beschikbaar:
3 apr 2026
Maximaal inkomen:
(niet ingesteld)
Status:
Gepubliceerd
Reageren

Omschrijving woning

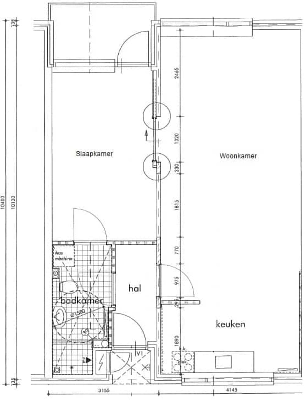
In de Schildershoek komt deze twee kamer woning vrij.Entree: vanuit de centrale hal heeft u toegang tot de open keuken, badkamer en woonkamer.In de hal is ruimte voor een garderobe.Zowel aan de voorzijde als de achterzijde is de woning voorzien van veel glas waardoor de woning veel lichtinval heeft.Naast de woonkamer is de slaapkamer gelegen. Vanuit de slaapkamer heeft u toegang tot uw terras. Hier heeft u uitzicht op de binnentuin. (Openbaar terrein).De inpandige badkamer is ook vanuit de slaapkamer te betreden en is voorzien van een douche, toilet, wastafel en aansluiting voor de was-en droogmachine.De woning is aangesloten op een collectieve cv-ketel (afrekening via radiatormeters), heeft een eigen elektrameter en een gezamenlijke watermeter (deze waterkosten zijn opgenomen in de servicekosten).Op de zolder is een berging aanwezig, deze is alleen te bereiken via een trap.De foto's zijn een voorbeeld. Inwonende kinderen zijn niet toegestaan.Houdt u er rekening mee dat u altijd enige werkzaamheden moet uitvoeren zoals schilderen, behangen en vloerbedekking leggen. Deze woning heeft geen overname en wordt nog schoongemaakt voor huuringang.WooncomplexHet wooncomplex omvat 68 twee kamer woningen en 8 woningen met 3 kamers. In het pand is een gezamenlijke recreatiezaal waar activiteiten worden georganiseerd en een biljartzaal aanwezig. In het pand is ook een tandartspraktijk gevestigd. Er zijn enkele logeerkamers te huur voor het kortstondig laten verblijven van uw gasten.Er zijn vier fietsen/ scootmobielstallingen en één aparte scootmobiel berging. Het wooncomplex telt 18 garages waarvoor u zich kunt inschrijven. Er is een wachtlijst.OmgevingEr is parkeerplek rondom het wooncomplex, dit is vrij parkeren, de parkeerdruk ishoog. De afvalcontainers zijn centraal opgesteld bij de entrees van het wooncomplex. Er is een openbare binnentuin. De bushalte is op 50 meter van het woongebouw.Supermarkten zijn op 1 km afstand.Altijd iemand bereikbaarDe bewonersconsulent is het aanspreekpunt voor alle bewoners. Eenmaal per week is zij aanwezig op het wooncomplex.U kunt van maandag tot en met vrijdag van 08.30 tot 12.00 uur telefonisch terecht bij de bewonersconsulent. En anders krijgt u een collega aan de lijn. Na werktijden wordt er voor spoedgevallen automatisch doorgeschakeld naar de meldkamer. Er is dus altijd iemand bereikbaar.U kunt ons bereiken via De.Schildershoek@woonzorg.nl of 088-921 00 28 (8:30-12:00)

Kaart