Huurwoning Zaandam

Meidoornstraat 73, Zaandam

Korte samenvatting

Locatie
Zaandam
Huurprijs
€ 919,36
Type woning
Tussenwoning
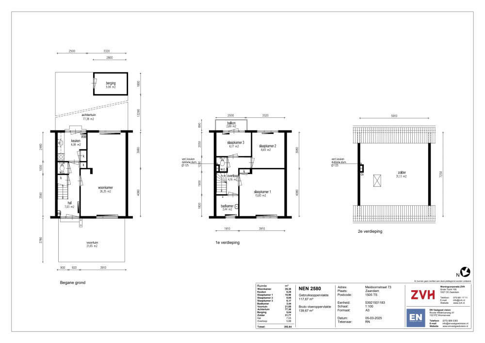
Oppervlakte:
65 m2
Kamers:
4
Slaapkamers:
3
Wachttijd:
(niet ingesteld)
Datum beschikbaar:
4 feb 2025
Maximaal inkomen:
(niet ingesteld)
Status:
Verlopen

Omschrijving woning

Eengezinswoning met een ruime tuin in de bomenbuurt met voorrang voor Zaanse doorstromers.WoningEntree.Geheel gerenoveerd toilet.Doorzonwoonkamer.Geheel gerenoveerde keuken.Wasmachine aansluiting bevindt zich in de keuken.Ruime tuin op het noordwesten met een schuur.Op de eerste verdieping bevinden zich 3 slaapkamers.Geheel gerenoveerde badkamer voorzien van wastafel en douchehoek.Tweede toilet.Zolder is bereikbaar via vlizotrap.WoonomgevingDe woning ligt in een rustige woonwijk, maar is wel gelegen achter een drukke weg (Wibautstraat).De woning ligt op 10 minuten fietsafstand van het centrum van Zaandam met alle voorzieningen in de buurt.In de directe omgeving treft u vele voorzieningen zoals winkels voor de dagelijkse boodschappen en openbaar vervoermogelijkheden (bus en een rechtstreekse treinverbinding naar Amsterdam en Schiphol).Naast de woning bevindt zich een kinderdagverblijf.Op enkele meters bevindt zich ook een basisschool.Aanvullende informatieZonnescherm aanwezig (handbediend). Let op! ZVH pleegt hier geen onderhoud aan en verwijdert dit niet.De wanden zijn gestuct en behangklaar.Let op! Elektrisch koken, 2-fase.Woning is geheel gerenoveerd. De volgende werkzaamheden zijn uitgevoerd:- Vloerisolatie.- Spouwmuurisolatie.- HR++ beglazing.- Dakisolatie.- Velux dakraam.- Nieuwe kunststofkozijnen.- Nieuwe kunststof voordeur en kunststof achterdeur.- Mechanische ventilatie CO2 gestuurd.- Zonnepanelen.- Meterkast voorzien van elektrisch koken naar de keuken.De bezichtiging vindt plaats op dinsdag 18 maart om 13:00 uur.

Kaart