Huurwoning Zaandam

Molenmakersstraat 23, Zaandam

Korte samenvatting

Locatie
Zaandam
Huurprijs
€ 747,25
Type woning
Maisonnette
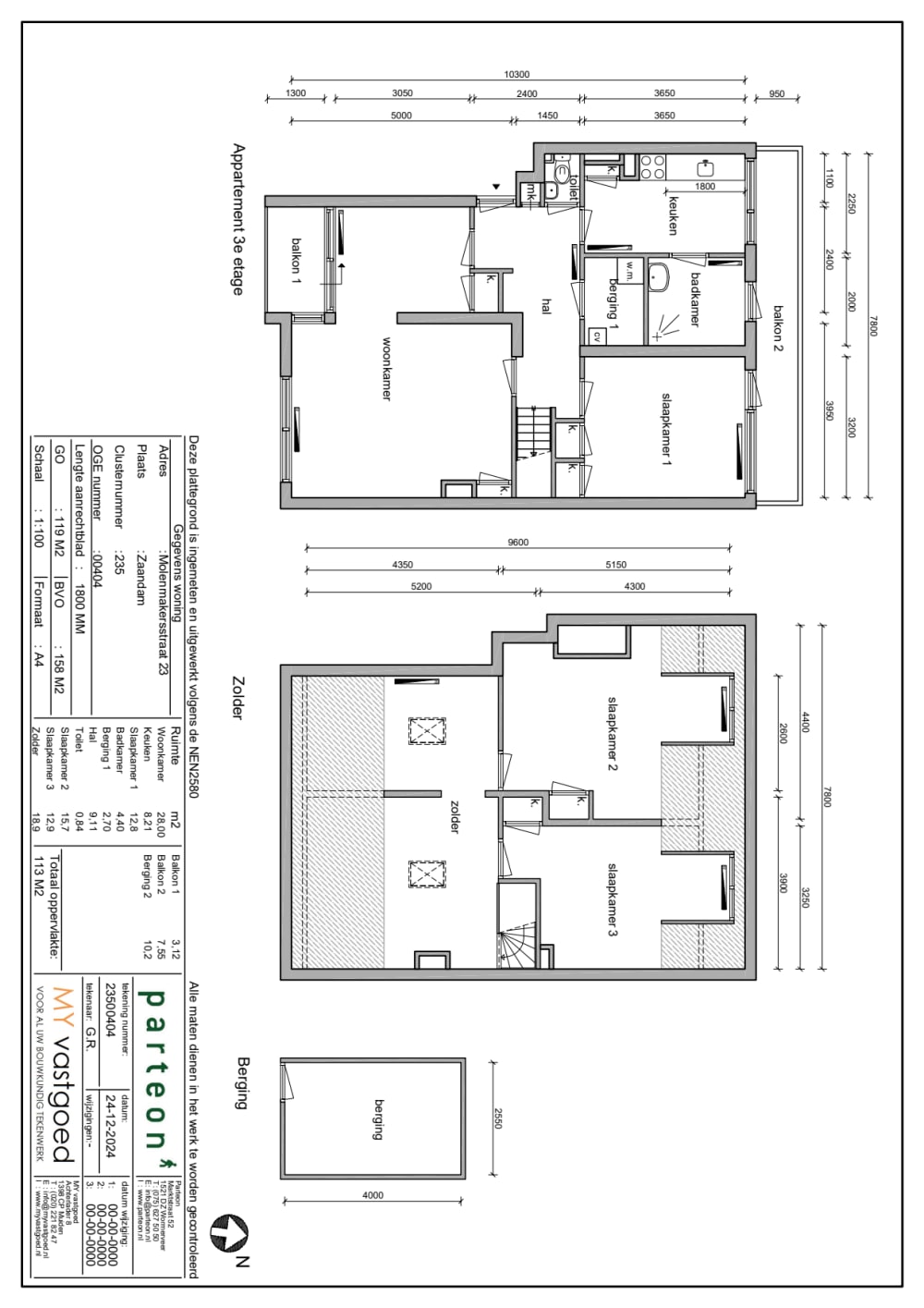
Oppervlakte:
83 m2
Kamers:
4
Slaapkamers:
3
Wachttijd:
(niet ingesteld)
Datum beschikbaar:
4 feb 2025
Maximaal inkomen:
(niet ingesteld)
Status:
Verlopen

Omschrijving woning

Portiekwoning op de 1e etage in de rosmolenwijk te ZaandamWoningWoonkamerKeukenToiletBadkamer1 slaapkamer op dezelfde etage als de woonkamer2e slaapkamer op de begane vloerapart berging op de begane grondelektrisch kokencv-ketelbalkon op het noorden                                                                                                                                                                                                                                                                                                                                        In de BuurtSupermarkt en winkelcentrum op loopafstandHuisarts op een paar min. loopafstandBushalte op 2 minuten loopafstandOpenbaar vervoer met 5 minuten met bus op station ZaandamGezamenlijke binnentuinDoorgaande weg voor de woningParkeren op parkeerplaatsen naast en voor de woning.Gelegen in het centrum Zaandam.Let op:woningkenmerken en plattegrond kunnen mogelijk iets afwijken van de werkelijkheid. Bijvoorbeeld omdat wij nog werkzaamheden moeten uitvoeren na de bezichtiging. De basis zoals het aantal kamers en het type woning staan vast.Aan deze advertentie kunt u geen rechten ontlenen.Huurprijs in onder voorbehoud. Deze kan nog wijzigen.foto's en plattegrond kunnen afwijken.Technische staatParteon levert iedere woning op met basiskwaliteit. Houd u er rekening mee dat u zelf nog het een en ander moet doen om de woning naar uw smaak te maken. Denk hierbij aan het leggen van een ondervloer/vloer (minimaal 10 decibel reducerend) afstomen van behang, opnieuw behangen of schilderen van muren. Schilderen van deuren, (raam) kozijnen en plafonds. Stofferen van de woning naar eigen smaak.Woning is rond half oktober verhuur gereed.Let op gasloos koken in deze woning!Parteon installeert vanaf 1 april 2022 in alle keukens een elektrische aansluiting voor het koken op elektra en verwijderd de gas aansluiting. Het is dan niet meer mogelijk om op gas te koken. Er zijn verschillende soorten aansluitingen en mogelijkheden voor het koken op elektra. Let op bij de aanschaf van uw elektrische kookplaat of fornuis of deze geschikt is voor de aanwezige aansluiting. Informatie over het type aansluiting zal bekend gemaakt worden bij de bezichtiging of na de oplevering van de woning. (Parteon kan niet aansprakelijk gesteld worden voor verkeerd aangeschafte kookplaten of fornuizen).Voor meer informatie verwijzen we u graag naarhttps://www.rijksoverheid.nl/onderwerpen/duurzame-energie/vraag-en-antwoord/hoe-lang-kan-ik-nog-koken-op-gasFRAUDEIndien wij constateren dat documenten zijn vervalst en niet overeenkomen met de werkelijke situatie dan noemen we dat fraude. Dit geldt ook als u bewust een verkeerde voorstelling van de situatie geeft. Hier staat een zware sanctie op. De woningaanbieding wordt ingetrokken en u wordt voor de duur van één jaar geblokkeerd om via Woningnet te reageren.

Kaart