Huurwoning Zaandam

Oostzijde 54A, Zaandam

Korte samenvatting

Locatie
Zaandam
Huurprijs
€ 719,06
Type woning
Appartement
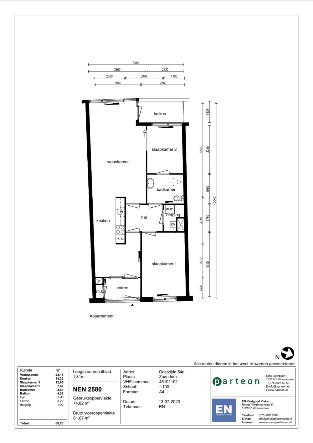
Oppervlakte:
63 m2
Kamers:
3
Slaapkamers:
2
Wachttijd:
(niet ingesteld)
Datum beschikbaar:
24 jun 2025
Maximaal inkomen:
€ 39.055,00
Status:
Verlopen

Omschrijving woning

Mooi seniorenappartement op loopafstand van het centrum van ZaandamAppartement is gelegen op de 2e etage van het complexLift aanwezigAfgesloten complexentreeRuime lichte woonkamer met open keuken. Elektrisch kokenVanuit de woonkamer toegang tot het balkon gelegen op het zuid-westenruime tussen hal waarvan u toegang heeft tot de slaapkamers en badkamerinpandige berging met wasmachine aansluitingbadkamer met toiletWoonomgevingComplex is gelegen aan de OostzijdeOp korte afstand van het centrum van Zaandam met zijn vele winkels en horecaBus halte op loopafstandZaans medische centrum is op 7 min. afstandRustige omgevingExtra informatieWoning is zeer geschikt voor kandidaten die gebruik maken van een loophulpmiddelWoning is voor 1 of 2 personen. Geen kinderenKandidaten van 55 jaar en ouder hebben voorrang voor deze woningKandidaten dienen er rekening mee te houden dat er nog een en ander in de woning dient te worden gedaan. U moet dan denken aan het schilderen van muren, plafond, kozijnen en deuren, behangen, leggen van ondervloer en bovenvloer het ophangen van raamdecoratie.Rustige en nette bewoning gewenstHet leggen van ondervloer en bovenvloer is een vereiste. Dit ivm het geluid.Kandidaten dienen de omgeving van de woning netjes en schoon te houden.

Kaart