Huurwoning Zaandam

Oostzijde 56A, Zaandam

Korte samenvatting

Locatie
Zaandam
Huurprijs
€ 750,02
Type woning
Appartement
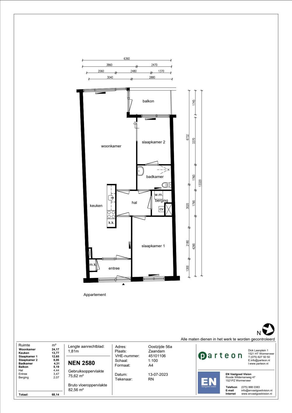
Oppervlakte:
63 m2
Kamers:
3
Slaapkamers:
2
Wachttijd:
(niet ingesteld)
Datum beschikbaar:
9 apr 2026
Maximaal inkomen:
(niet ingesteld)
Status:
Gepubliceerd
Reageren

Omschrijving woning

Ruim seniorenappartement op loopafstand van het centrum van ZaandamAppartement is gelegen op de 2e etage van het complexLift aanwezigAfgesloten complexentreeRuime lichte woonkamer met open keuken. Elektrisch kokenVanuit de woonkamer toegang tot het balkon gelegen op het Westen2 slaapkamersinpandige berging met wasmachine aansluitingbadkamer met toiletberging aanwezig op begane grondWoonomgevingComplex is gelegen aan de OostzijdeOp korte afstand van het centrum van Zaandam met zijn vele winkels en horecaBus halte op loopafstandZaans medische centrum is op 7 min. afstandRustige omgevingExtra informatieWoning is zeer geschikt voor kandidaten die gebruik maken van een loophulpmiddelKandidaten van 55 jaar en ouder hebben voorrang voor deze woningKandidaten dienen er rekening mee te houden dat er nog een en ander in de woning dient te worden gedaan. U moet dan denken aan het schilderen van muren, plafond, kozijnen en deuren, behangen, leggen van ondervloer en bovenvloer het ophangen van raamdecoratie.Rustige en nette bewoning gewenstHet leggen van ondervloer en bovenvloer is een vereiste. Dit ivm het geluid.Kandidaten dienen de omgeving van de woning netjes en schoon te houden.Let op:woningkenmerken en plattegrond kunnen mogelijk iets afwijken van de werkelijkheid. Bijvoorbeeld omdat wij nog werkzaamheden moeten uitvoeren na de bezichtiging. De basis zoals het aantal kamers en het type woning staan vast.Aan deze advertentie kunt u geen rechten ontlenen. Plattegrond is mogelijk van een vergelijkbare woning in het complex.Huurprijs is onder voorbehoud. Deze kan nog wijzigenLet op gasloos koken in deze woning!Parteon installeert vanaf 1 april 2022 in alle keukens een elektrische aansluiting voor het koken op elektra en verwijderd de gas aansluiting. Het is dan niet meer mogelijk om op gas te koken. Er zijn verschillende soorten aansluitingen en mogelijkheden voor het koken op elektra. Let op bij de aanschaf van uw elektrische kookplaat of fornuis of deze geschikt is voor de aanwezige aansluiting. Informatie over het type aansluiting zal bekend gemaakt worden bij de bezichtiging of na de oplevering van de woning. (Parteon kan niet aansprakelijk gesteld worden voor verkeerd aangeschafte kookplaten of fornuizen).Voor meer informatie verwijzen we u graag naarhttps://www.rijksoverheid.nl/onderwerpen/duurzame-energie/vraag-en-antwoord/hoe-lang-kan-ik-nog-koken-op-gasFRAUDEIndien wij constateren dat documenten zijn vervalst en niet overeenkomen met de werkelijke situatie dan noemen we dat fraude. Dit geldt ook als u bewust een verkeerde voorstelling van de situatie geeft. Hier staat een zware sanctie op. De woningaanbieding wordt ingetrokken en u wordt voor de duur van één jaar geblokkeerd om via Woningnet te reageren.ZELFSTANDIG ONDERNEMERIndien u zelfstandig ondernemer bent dient u een recente definitieve aanslag of IBRI in te leveren. Als deze niet representatief of onbekend is dan dient u een voorlopige aanslag in te leveren bij Parteon. U kunt een geschatte aangifte indienen bij de Belastingdienst. U krijgt dan binnen twee weken een voorlopige aanslag van de Belastingdienst toegestuurd. Het heeft geen zin om op een woning te reageren als u deze aanslag nog niet heeft.De huur in deze advertentie is onder voorbehoud. Een intakegesprek en een betaalbaarheidstoets kunnen deel uitmaken van de toewijzingsprocedure.LET OP!Indien u kandidaat 1 wordt voor deze woning willen wij u erop wijzen dat u uw persoonlijke gegevens binnen 3 werkdagen bij Parteon dient in te leveren. Mochten de gegevens niet op tijd binnen zijn dan is Parteon genoodzaakt om de woning aan de volgende kandidaat aan te bieden.

Kaart