Huurwoning Zaandam

Poelenburg 784, Zaandam

Korte samenvatting

Locatie
Zaandam
Huurprijs
€ 748,57
Type woning
Appartement
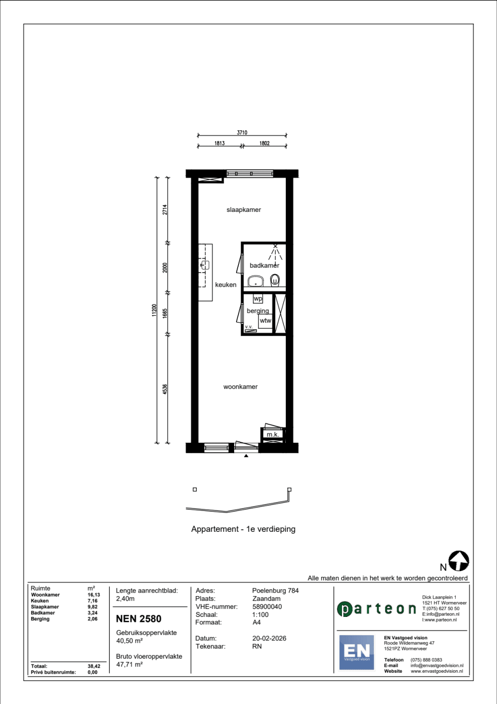
Oppervlakte:
40 m2
Kamers:
1
Slaapkamers:
0
Wachttijd:
(niet ingesteld)
Datum beschikbaar:
(niet ingesteld)
Maximaal inkomen:
(niet ingesteld)
Status:
Gepubliceerd
Reageren

Omschrijving woning

Op Sportpark Poelenburg realiseren Parteon en Rochdale in 2026 in samenwerking met de gemeente Zaanstad 172 sociale huurwoningen. De woningen zijn verdeeld over 3 woongebouwen met ieder vier woonlagen, 1 blok met 3 woonlagen waarvan de onderste woonlaag een gemeenschappelijke ruimte is en 1 blok van twee grondgebonden woningen. Er is een binnentuin.De omgevingHet Sportpark ligt op 2 minuten fietsafstand van Poelenburg. Er zijn naast een OV-Hub, de sportvelden, een park en een tankstation geen woonvoorzieningen nabij. De woningen staan op het achterste veld van het Sportpark. Sportpark Poelenburg is de thuisbasis van voetbalvereniging Rood-Wit en de tennisvereniging. De woningen grenzen aan een zijde aan de tennis en voetbalvelden, aan een kant aan een mooi park en verder aan een drukke weg met een tankstation.AchtersluispolderHet Sportpark grenst aan een bedrijventerrein (Achtersluispolder). Aan de kade van het bedrijventerrein (ca. 500 m van de locatie) zijn twee cruiseschepen aangemeerd van het COA.Wie ontmoeten we in en om de woningen?Het sportpark is toegankelijk met de auto en fiets, de toegang tot het park wordt gedeeld met leden van de sportclubs op het Sportpark (fiets en auto), wandelaars en reizigers van de OV-hub (fiets en auto). Voor de woningen zijn 70 parkeerplaatsen voorzien aan de entree van het sportpark. Bewoners dienen zich te voet of op de fiets te verplaatsen naar de eigen woning.VeiligheidEr zijn geen andere omwonenden, de omgeving is anoniem en afgelegen.ToekomstDe komende tijd wordt de OV hub opgeknapt en uitgebreid. Het industriegebied Achtersluispolder wordt in de toekomst getransformeerd naar een levendig woongebied, maar het zal nog zeker 10+ jaren duren voor dit zijn aanvang vindt.Het wooncomplexHet wooncomplex is opgesteld in U-vorm. Er worden hier 172 woningen gebouwd en een gemeenschappelijke ruimte. Parteon verhuurt hier 72 van de 172 woningen. De 72 woningen van Parteon zijn allen studio’s. De woningen hebben geen aparte berging maar een gemeenschappelijke fietsenberging.VerwarmingssysteemDe studio’s worden verwarmd met een lucht-lucht warmtepomp van Nathan.Lucht-lucht warmtepompen bieden een combinatie van een WTW-systeem en een warmtepomp die de ventilatielucht gebruikt om de woning te verwarmen en te voorzien van warm tapwater. De warme lucht wordt middels ventielen in de plafonds van verschillende ruimten de woning in geblazen. Het is raadzaam om bij dit systeem de thermostaat op een constante temperatuur te zetten, dan werkt het systeem het best.Er is geen lift aanwezig.ParkerenHet is niet mogelijk om met de auto bij de woning te komen. De auto’s moeten worden geparkeerd op het parkeerterrein van het sportpark.ContractenBewoners kunnen 15 jaar hier blijven wonen, zij krijgen een flexcontract voor deze 15 jaar. De wachtpunten blijven behouden, de zoekpunten komen te vervallen.De toewijzing gebeurt op beoordeling van motivatie.Bij Sportpark Poelenburg vorm je samen met je buren een community en vorm je een plek waar de bewoners naar elkaar omkijken. Aan deze community bouw je samen, als buren, met ondersteuning van de community builders (aanvoerders). Zo bouw je aan verbondenheid, ondersteuning en veiligheid. De gemeenschappelijke ruimte is er om elkaar te ontmoeten en hier zullen activiteiten voor en door bewoners worden georganiseerd.  Jongeren tussen de 18 en de 27 jaar, de 27plussers, statushouders en urgenten zullen hier een woonplek vinden.Nadat de advertentie is gesloten ontvangt de eerste groep kandidaten (dit verschilt per advertentie) een link naar een motivatieformulier. In dit formulier staan een aantal vragen over hoe jij denk aan deze community bij te dragen. Deze motivatie wordt beoordeeld en wanneer u voldoet ontvangt u een uitnodiging om te komen bezichtigen.Informatie woningStudio van 40m2Badkamer en toilet ineenElektrisch kokenGezamelijke binnentuinGezamelijke fietsenstallingStaat van de woningHet betreft nieuwbouw maar houd er rekening mee dat u zelf nog wat aan de woning moet doen Denk aan muren behangen of stucen en het leggen van een vloer.Tot slotDe datum beschikbaar van deze woning is onder voorbehoudDe oplevering van de woning kan mogelijk afwijken van de advertentietekst, de plattegrond, de foto's en de bezichtiging in verband met eventuele werkzaamhedenU dient een goede ondervloer te plaatsen, minimaal 10db geluiddempendEen onderzoek door de politie naar uw verleden en die van de meeverhuizende personen vanaf 16 jaar maakt onderdeel uit van de selectieprocedure. Staat iemand slecht bekend bij de politie vanwege crimineel gedrag en/of overlast, dan komt u niet in aanmerking voor een huurwoning in Poelenburg en Peldersveld.

Kaart