Huurwoning Zaandam

Provincialeweg 36, Zaandam

Korte samenvatting

Locatie
Zaandam
Huurprijs
€ 716,83
Type woning
Tussenwoning
Oppervlakte:
51 m2
Kamers:
2
Slaapkamers:
1
Wachttijd:
(niet ingesteld)
Datum beschikbaar:
1 jan 2025
Maximaal inkomen:
€ 39.055,00
Status:
Verlopen

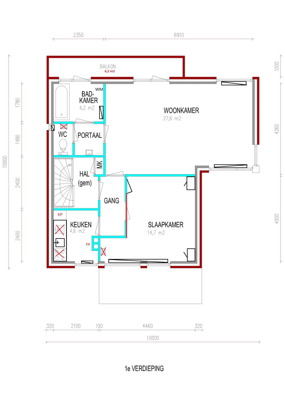
Omschrijving woning

2 kamerappartement met balkon gelegen nabij het NS- en busstation.WoningEengezinswoning opgedeeld in 3 verdiepingenAfgesloten entree.Gelegen op de eerste etage.Hal.Gesloten keuken. Hier bevindt zich de CV-ketel.Ruime woonkamer met toegang tot het balkon op het oosten.Slaapkamer met vaste kasten.Aparte ruimte met wastafel die toegang geeft tot het toilet en de badkamer.Badkamer met bad douche combinatie.Apart toilet.Aparte berging in het souterrain.Let op! De plattegrond kan afwijken van de werkelijkheid. Hieraan kunnen geen rechten worden ontleend.WoonomgevingDe woning bevind zich aan een drukke wegGelegen naast het NS- en busstation.Op loopafstand van het centrum.Betaald parkeren voor de deur.Er is een mogelijkheid om een parkeervergunning aan te vragen bij de gemeenteAanvullende informatieDe wanden zijn behangklaar.Koken op gas.De aansluiting voor de wasmachine bevindt zich in de badkamer.Gemeenschappelijke fietsenstalling.ZVH heroverweegt de toekomst van dit complex.Het is een (cosmetische) opknapwoning en wijkt daarom af van onze basiskwaliteit. We adviseren je niet teveel te investeren.Kandidaten met kinderen komen niet in aanmerking.Woning wordt aangeboden met een huurcontract voor een bepaalde tijd van 5 jaar voor jongeren van 23 tot 28 jaar. Je inschrijftijd bij Woningnet blijft behouden.De woning is oudbouw en voorzien van houten vloeren en is daardoor gehorig. Leefgeluiden van buren zijn te horen. Wij zoeken een huurder die hier geen probleem van maakt en rekening houdt met de buren.De bezichtiging vindt plaats op dinsdag 28 januari om 15:00 uur.

Kaart