Huurwoning Zaandam

Tjotterlaan 184, Zaandam

Korte samenvatting

Locatie
Zaandam
Huurprijs
€ 925,17
Type woning
Appartement
Oppervlakte:
53 m2
Kamers:
2
Slaapkamers:
1
Wachttijd:
(niet ingesteld)
Datum beschikbaar:
22 sep 2025
Maximaal inkomen:
(niet ingesteld)
Status:
Verlopen

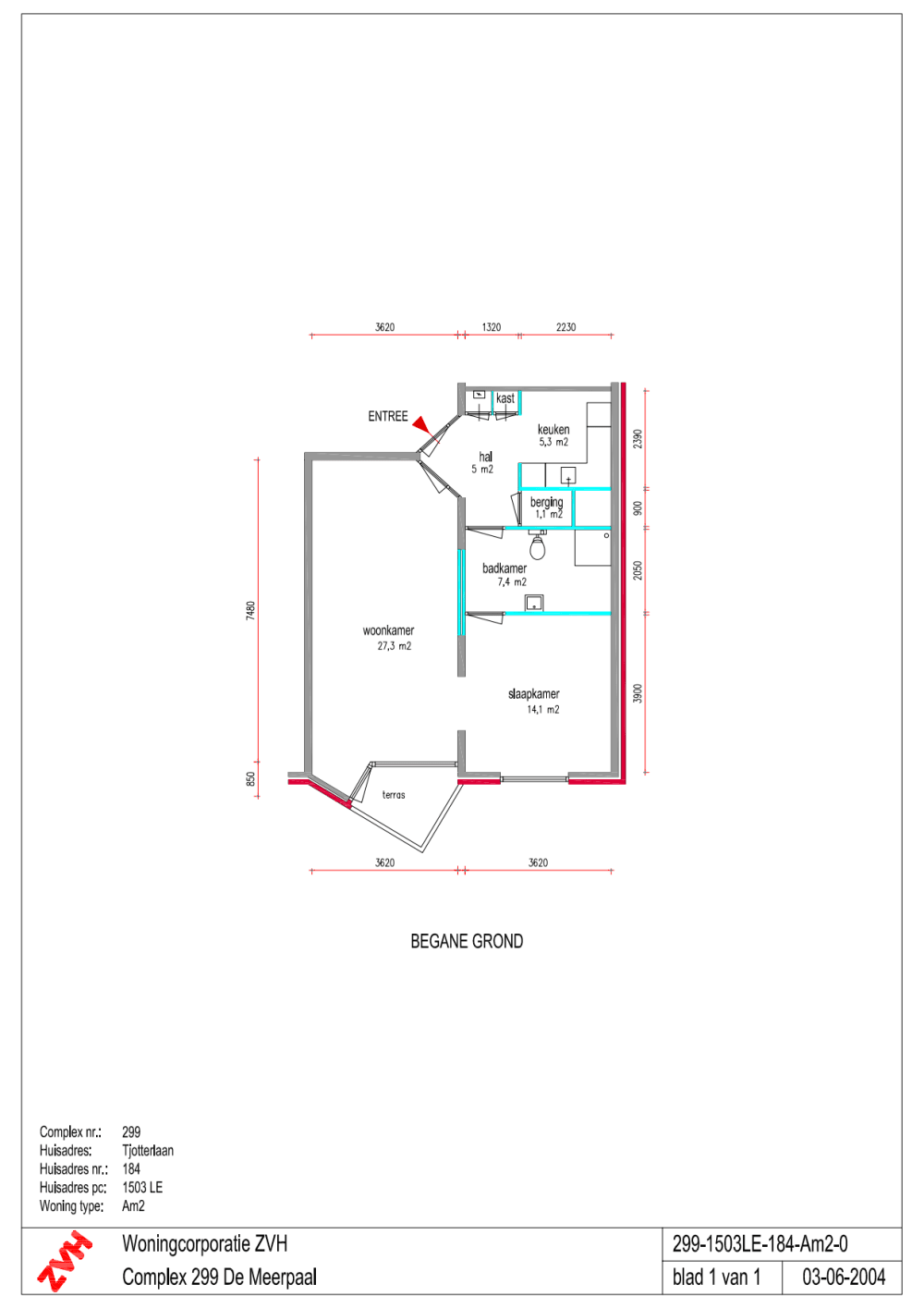
Omschrijving woning

Seniorenwoning in de Meerpaal met tuin.WoningTweekamer appartement op de begane grond.Ligt aan een corridor, er is een lift.Entree met direct toegang tot de inpandige keuken (geen raam aanwezig).Het keukenblok staat in een hoekopstelling.Inductie kookaansluiting.Ruime woonkamer met toegang tot het balkon op het oosten.Tussen de slaapkamer en de keuken ligt de badkamer.Badkamer is voorzien van douche, wastafel, toilet en de aansluiting voor de wasmachine.De woning heeft alleen een inpandige berging.De plattegrond kan afwijken van de werkelijkheid. Hier kunnen geen rechten aan worden ontleend.OmgevingDe woning is gelegen in het complex De Meerpaal.Gelegen in de groene wijk Hoornseveld in Zaandam.In de wijk parkeren gratis.Een klein winkelcentrum met een grote supermarkt ligt op 5 minuten lopen.Het centrum van Zaandam ligt op 5 minuten fietsen.Op loopafstand is er een bushalte.Aanvullende informatieBruto huur is inclusief voorschot stookkosten en waterverbruik.U sluit zelf een contract af bij een energieleverancier voor elektra.Gemeenschappelijke fietsenberging.Woonzorg door bijvoorbeeld Evean dient u zelf te regelen.Op de begane grond is een huisartsenpraktijk, apotheek en een recreatieruimte waar activiteiten worden georganiseerd voor bewoners.Bewoning door inwonende kinderen niet toegestaan.Algemene fietsenstalling aanwezig.Scootmobiel ruimte om te opladen is beperkt.De bezichtiging vindt plaats op donderdag 9 oktober 2025 in de middag.

Kaart