Huurwoning Zaandam

Zuiddijk 189, Zaandam

Korte samenvatting

Locatie
Zaandam
Huurprijs
€ 853,15
Type woning
Appartement
Oppervlakte:
31 m2
Kamers:
2
Slaapkamers:
1
Wachttijd:
(niet ingesteld)
Datum beschikbaar:
27 jan 2025
Maximaal inkomen:
(niet ingesteld)
Status:
Verlopen

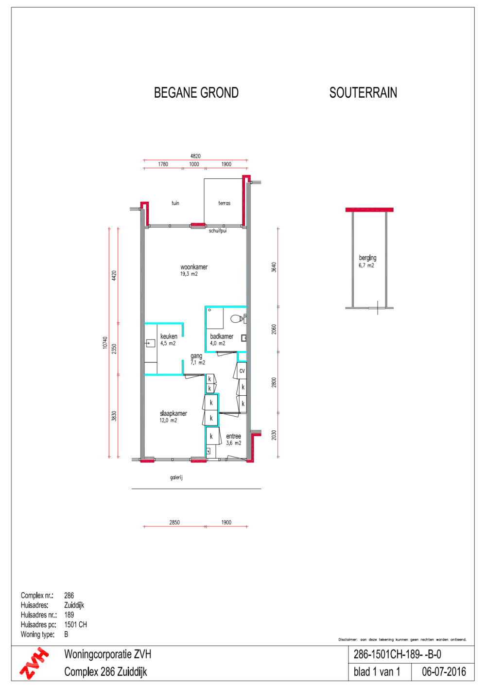
Omschrijving woning

2-kamer appartement in de BurgemeestersbuurtWoning2 kamer woning gelegen op de begane grond.Afgesloten algemene entree en een lift.Algemene fietsenstalling.Galerij.Badkamer met toilet, douchehoek, wastafel en aansluiting voor de wasmachine.Open keuken. Koken op elektra.De slaapkamer ligt aan de galerijzijde.Woonkamer.Tuin op het oosten.In het souterrain is een eigen berging.Bruto huur is inclusief een voorschot voor de stookkosten, het gas en waterverbruik.Het apart huren van een oplaadpunt voor de scootmobiel is mogelijk.WoonomgevingKleinschalig seniorencomplex in de Burgemeestersbuurt (Zaandam Zuid).Via de Zuiddijk loopt u in 15 minuten naar het centrum van Zaandam.Een supermarkt ligt op loop/fietsafstand.Bushalte op 10 minuten lopen.In de buurt is een hoge parkeerdruk.Aanvullende informatieInwonende kinderen zijn niet toegestaan (ook niet bij ouderschapsregeling of convenant).Bezichtiging vindt plaats op 24 januari om 10 uur..

Kaart