Huurwoning Zandvoort

Lorentzstraat 60, Zandvoort

Korte samenvatting

Locatie
Zandvoort
Huurprijs
€ 974,00
Type woning
Appartement
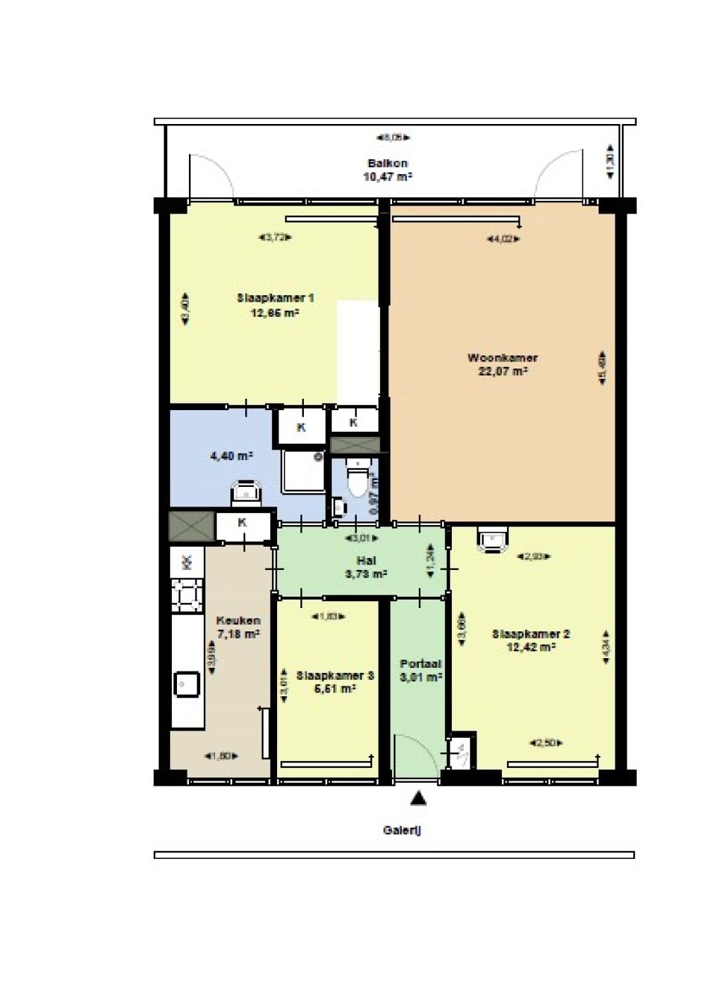
Oppervlakte:
66 m2
Kamers:
4
Slaapkamers:
3
Wachttijd:
(niet ingesteld)
Datum beschikbaar:
7 okt 2025
Maximaal inkomen:
(niet ingesteld)
Status:
Verlopen

Omschrijving woning

Ruim 4 kamer appartement gelegen op de 2eetage, het appartement is bereikbaar met lift. Het appartement heeft een ruime woonkamer, afgesloten keuken en 3 slaapkamers.AppartementAfgesloten keuken, u kookt hier elektrischVerouderde badkamer, technisch in ordeApart toiletBalkon over de gehele breedte van de woningOp het balkon en de galerij zijn stempels geplaatst. In de nabije toekomst zullen er werkzaamheden aan o.a. het beton plaatsvinden daarna worden de stempels verwijderd.In het complex is een collectief verwarmingssysteem, u betaald hiervoor een voorschot in de servicekosten (verwarming + warm water) eenmaal per jaar worden de kosten afgerekend op basis van eigen verbruik.Individuele berging op de begane grondParkeren met vergunningIn de buurtDe woning/het appartement ligt in Zandvoort Nieuw Noord. Dit is een rustige wijk met alles binnen handbereik. De buurt is ruim opgezet en biedt een mix van flats en eengezinswoningen, met voldoende parkeergelegenheid (parkeren met vergunning) en openbaar groen.De ligging is een groot voordeel. Je bent snel bij het strand, de duinen en het Nationaal Park Zuid-Kennemerland. Ook de Amsterdamse Waterleidingduinen zijn dichtbij. Hier kun je wandelen, fietsen of gewoon even genieten van de natuur.In de buurt zijn veel voorzieningen. Denk aan supermarkten, basisscholen, sportclubs en een huisartsenpraktijk. Het station Zandvoort aan Zee is goed bereikbaar. Vanaf daar reis je makkelijk naar Haarlem of Amsterdam. Met de auto ben je via de N200 en N201 ook snel op weg naar andere steden in de regio.Zandvoort Nieuw Noord is een fijne plek voor wie wil wonen met de natuur en voorzieningen binnen bereik.Uitnodiging tot bezichtigingDe eerste tien kandidaten worden via woonservice uitgenodigd voor bezichtiging.- De bezichtiging is ingepland op donderdag 16 oktober om 14.45 uur (onder voorbehoud)Een woning huren van Pré WonenIedere woning van Pré Wonen wordt volgens de basiskwaliteit opgeleverd. Zelf knapt u de woning op naar uw zin en smaak. Denk hierbij aan het leggen van vloeren (minimaal 10 decibel reducerend), schilderen/behangen van muren, deuren, (raam)kozijnen en plafonds.Een bestaande woning heeft altijd gebruikssporen van voorgaande huurder(s). Kijkt u onder Voorwaarden bij ‘Wat mag u van een woning van Pré Wonen verwachten’. Daar leest u wat de basiskwaliteit is en wat u van een woning van Pré Wonen mag verwachten.Tot slotDe oplevering van de woning kan afwijken van de advertentietekst, de plattegrond, de foto’s en de bezichtiging in verband met eventuele werkzaamheden.Aan deze advertentie kunt u geen rechten ontlenen.

Kaart