Huurwoning Zuidoostbeemster

Zuiderhof 19, Zuidoostbeemster

Korte samenvatting

Locatie
Zuidoostbeemster
Huurprijs
€ 565,87
Type woning
Appartement
Oppervlakte:
45 m2
Kamers:
2
Slaapkamers:
1
Wachttijd:
(niet ingesteld)
Datum beschikbaar:
31 aug 2023
Maximaal inkomen:
€ 39.055,00
Status:
Verlopen

Omschrijving woning

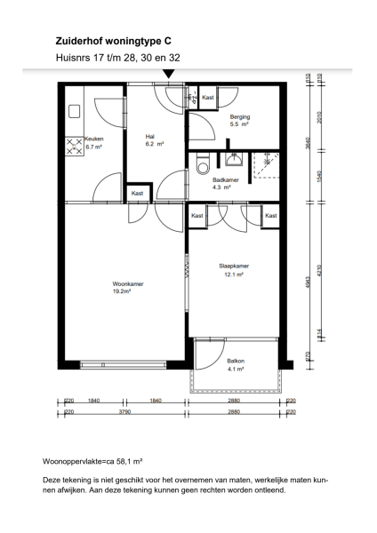
In het Zuiderhof komt deze twee kamer seniorenwoning vrij. Via de hoofdingang loopt u rechtdoor via de binnen gang naar uw voordeur. Entree: vanuit de centrale hal heeft u toegang tot de (afsluitbare) keuken, de berging, kleine badkamer en woonkamer. Naast de woonkamer is de slaapkamer gelegen. Vanuit de slaapkamer heeft u toegang tot het balkon, grenzend aan de binnentuin. U kijkt uit op deze tuin. Het balkon bij de woning is gelegen op het Westen. De inpandige badkamer is ook vanuit de slaapkamer te betreden en is voorzien van een douche, toilet en een wastafel. De aansluiting voor de was-en droogmachine bevindt zich in de berging. Wooncomplex Het wooncomplex Zuiderhof omvat 68 woningen met 2 of 3 kamers. Er zijn 45 woningen in het hoofdgebouw dat 3 verdiepingen telt en 23 laagbouwwoningen (bouwjaar 1972). In het hoofdgebouw is een fysiotherapiepraktijk op de begane grond. Er is een gezamenlijke recreatiezaal waar de huurderscommissie activiteiten organiseert. De woningen krijgen hun warmte via een gezamenlijke cv-ketel. Er zijn geen metertjes aanwezig op de radiatoren. De totale verwarmingskosten worden verdeeld door het totaal van 45 woningen. Bij de hoofdingang vindt u de postbussen. Momenteel is het gebouw vrij toegankelijk overdag en afgesloten s nachts. In 2023 worden de postbussen verplaatst naar de gevel waardoor de toegangsdeur afgesloten kan worden. In de woning is een intercomsysteem aanwezig voor het openen van de toegang naar het gebouw. In het pand is een fysiotherapiepraktijk op de begane grond. Daarnaast is er een gezamenlijke recreatiezaal waar de huurderscommissie activiteiten organiseert. Omgeving Er zijn een aantal parkeerplekken beschikbaar op eigen terrein, verder is er rondom het wooncomplex vrij parkeren. De parkeerdruk is gemiddeld tot hoog. Er zijn garages aanwezig om te huren, u kunt zich inschrijven op de wachtlijst. De afvalcontainers zijn centraal opgesteld bij de ingang van het wooncomplex. In 2022 is de binnentuin rondom gerenoveerd en is een ecologische tuin aangelegd. De tuin staat veelal vol met bloemen. De buurtbus stopt voor de deur van de hoofdingang. Het hoofdgebouw heeft twee ruime fietsenstallingen. Een aparte scootmobielruimte wordt nog geplaatst. Het wooncomplex ligt op een kwartier loopafstand van de historische binnenstad van Purmerend met zijn veelzijdige winkelaanbod alsmede de Koemarkt. Tweemaal per week is de bewonersconsulent aanwezig op het wooncomplex. U kunt van maandag tot en met vrijdag van 08.30 tot 12.00 uur telefonisch terecht bij de bewonersconsulent. En anders krijgt u een collega aan de lijn. Na werktijden wordt er voor spoedgevallen automatisch doorgeschakeld naar de meldkamer. Er is dus altijd iemand bereikbaar. Voorwaarden: Inkomensverklaring verplicht Een verklaring geregistreerd inkomen of een definitieve aanslag inkomstenbelasting van de Belastingdienst van u en alle meeverhuizende personen (behalve kinderen) is verplicht. Deze moet van het voorgaande jaar zijn, of als deze nog niet beschikbaar is, van het jaar daarvoor. Vraag uw inkomensverklaring direct aan door in te loggen op Mijn Belastingdienst of via de Belastingtelefoon (0800-0543). De corporatie controleert uw inkomen bij de toewijzing en wil uw inkomensverklaring(en) altijd ontvangen, ook als er geen bedrag op staat. Zorg ervoor dat het inkomen in uw inschrijving klopt. Anders loopt u het risico dat de corporatie u afwijst als u eerste kandidaat wordt.

Kaart