Huurwoning Zwanenburg

Sparrenlaan 3, Zwanenburg

Korte samenvatting

Locatie
Zwanenburg
Huurprijs
€ 633,25
Type woning
Appartement
Oppervlakte:
49 m2
Kamers:
2
Slaapkamers:
1
Wachttijd:
(niet ingesteld)
Datum beschikbaar:
13 mei 2023
Maximaal inkomen:
€ 39.055,00
Status:
Verlopen

Omschrijving woning

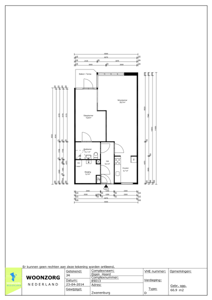
Bij wooncomplex Eigen Haard komt deze twee kamer seniorenwoning vrij. Via de hoofdingang loopt u rechts en komt u direct bij de woning. Deze woning ligt op de begane grond. Entree: vanuit de centrale hal heeft u toegang tot de woonkamer met aangrenzende keuken, badkamer en berging. Naast de woonkamer is de slaapkamer gelegen. Vanuit de slaapkamer heeft u toegang tot een fijne tuin met hekwerk. De tuin is gelegen op het oosten en heeft ochtend/middag zon. De inpandige badkamer is ook vanuit de slaapkamer te betreden en is voorzien van een douche, toilet en wastafel. De woning heeft een eigen cv-ketel die samen met de aansluiting voor de wasmachine gelegen is in de aparte bergruimte. De elektra-, gas en watermeter bevinden zich in de meterkast. Wooncomplex Het wooncomplex Eigen Haard omvat 74 woningen met 2 kamers. Het bouwjaar is 1990. Bij de hoofdingang vindt u de postbussen. De hoofdingang is afgesloten en te openen met een daarvoor bestemde sleutel. Er is een kleine fietsenstalling aanwezig. Hier kan ook eventueel uw scootmobiel geparkeerd worden. Het bestaande verpleeg/ verzorgingshuis is via een doorgang makkelijk te bereiken. Omgeving Er zijn een paar parkeerplekken beschikbaar op eigen terrein, verder is er rondom het wooncomplex vrij parkeren. De parkeerdruk is laag. De afvalcontainers zijn centraal opgesteld bij de ingang van het wooncomplex. De bushalte bevindt zich in de winkelstraat. Op 300 meter bevindt zich een supermarkt. Altijd iemand bereikbaar De bewonersconsulent is het aanspreekpunt voor alle bewoners. Zij maakt u graag wegwijs in uw nieuwe woonomgeving en ziet erop toe dat u er prettig en rustig kunt wonen. Daarbij zorgt zij ervoor dat u precies de service krijgt die u wilt. 1x per week is de bewonersconsulent aanwezig op het wooncomplex. U kunt van maandag tot en met vrijdag van 08.30 tot 13.00 uur telefonisch terecht bij de bewonersconsulent. En anders krijgt u een collega aan de lijn. Na werktijden wordt er voor spoedgevallen automatisch doorgeschakeld naar de meldkamer. Er is dus altijd iemand bereikbaar. Voorwaarden: Inkomensverklaring verplicht Een verklaring geregistreerd inkomen of een definitieve aanslag inkomstenbelasting van de Belastingdienst van u en alle meeverhuizende personen (behalve kinderen) is verplicht. Deze moet van het voorgaande jaar zijn, of als deze nog niet beschikbaar is, van het jaar daarvoor. Vraag uw inkomensverklaring direct aan door in te loggen op Mijn Belastingdienst of via de Belastingtelefoon (0800-0543). De corporatie controleert uw inkomen bij de toewijzing en wil uw inkomensverklaring(en) altijd ontvangen, ook als er geen bedrag op staat. Zorg ervoor dat het inkomen in uw inschrijving klopt. Anders loopt u het risico dat de corporatie u afwijst als u eerste kandidaat wordt.

Kaart