Huurwoning Enschede

Het Leunenberg 484, Enschede

Korte samenvatting

Locatie
Enschede
Huurprijs
€ 828,18
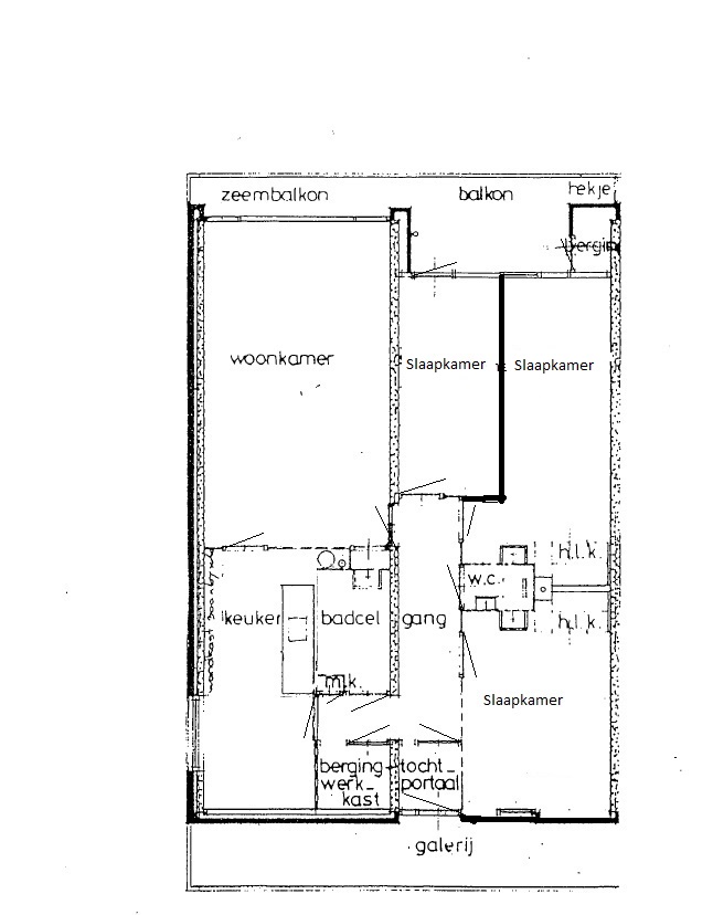
Type woning
Appartement
Oppervlakte:
100 m2
Kamers:
4
Slaapkamers:
3
Wachttijd:
(niet ingesteld)
Datum beschikbaar:
14 okt 2025
Maximaal inkomen:
(niet ingesteld)
Status:
Verlopen

Omschrijving woning

Afname van warmte is verplicht i.v.m. een collectieve installatie. Het voorschot zit bij de maandhuur in. De woning heeft eigen meters. De jaarlijkse afrekening gebeurt op basis van daadwerkelijk verbruik. In deze woning is alleen elektrisch koken mogelijk. Warmwaterboiler verplicht huren van Feenstra.

Kaart