Huurwoning Enschede

Het Leunenberg 660, Enschede

Korte samenvatting

Locatie
Enschede
Huurprijs
€ 864,01
Type woning
Appartement
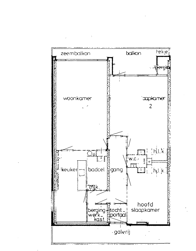
Oppervlakte:
100 m2
Kamers:
4
Slaapkamers:
3
Wachttijd:
(niet ingesteld)
Datum beschikbaar:
5 mrt 2026
Maximaal inkomen:
(niet ingesteld)
Status:
Gepubliceerd
Reageren

Omschrijving woning

Afname van warmte is verplicht i.v.m. een collectieve installatie. Het voorschot zit bij de maandhuur in. De woning heeft eigen meters. De jaarlijkse afrekening gebeurt op basis van daadwerkelijk verbruik.

Kaart