Toggle navigation
Provincies
Noord-Brabant
Zuid-Holland
Noord-Holland
Gelderland
Limburg
Overijssel
Utrecht
Groningen
Friesland
Drenthe
Zeeland
Flevoland
Vlaams Gewest
Plaatsen
Groningen
Amsterdam
Utrecht
Middelburg
Zaltbommel
Den Haag
Tilburg
Almere
Breda
Heerlen
Apeldoorn
Leeuwarden
Leiden
Alphen aan den Rijn
Zoetermeer
Home
Home
Overzicht sociale huurwoningen
Overijssel
Ommen
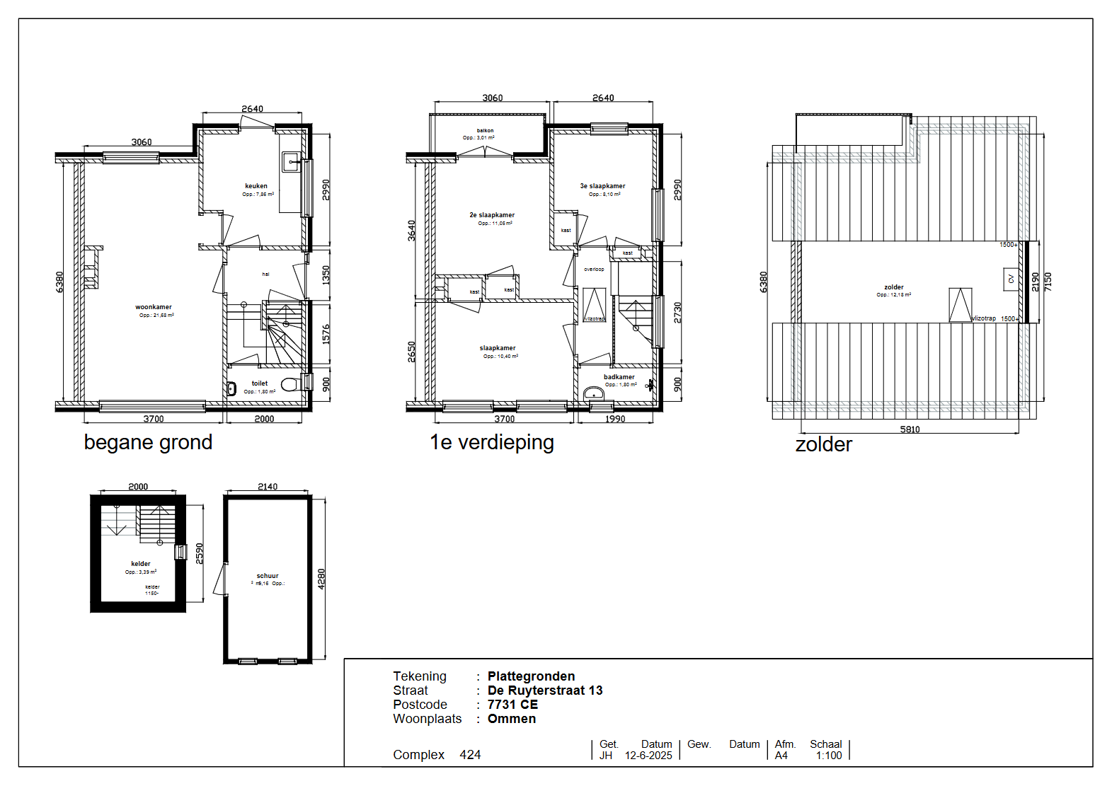
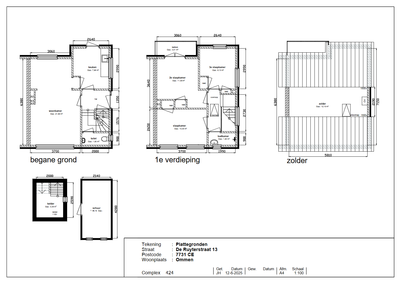
De Ruijterstraat 13
Huurwoning Ommen
De Ruijterstraat 13,
Ommen
Previous
Next
Korte samenvatting
Locatie
Ommen
Huurprijs
€ 889,62
Type woning
Eengezinswoning
Oppervlakte:
65 m
2
Kamers:
4
Slaapkamers:
3
Wachttijd:
(niet ingesteld)
Datum beschikbaar:
16 dec 2025
Maximaal inkomen:
(niet ingesteld)
Status:
Verlopen
Omschrijving woning
Op deze woning liggen 10 zonnepanelen.
Kaart