Huurwoning Amersfoort

Breestraat 7A, Amersfoort

Korte samenvatting

Locatie
Amersfoort
Huurprijs
€ 721,95
Type woning
Appartement
Oppervlakte:
55 m2
Kamers:
3
Slaapkamers:
2
Wachttijd:
(niet ingesteld)
Datum beschikbaar:
5 nov 2025
Maximaal inkomen:
€ 39.055,00
Status:
Verlopen

Omschrijving woning

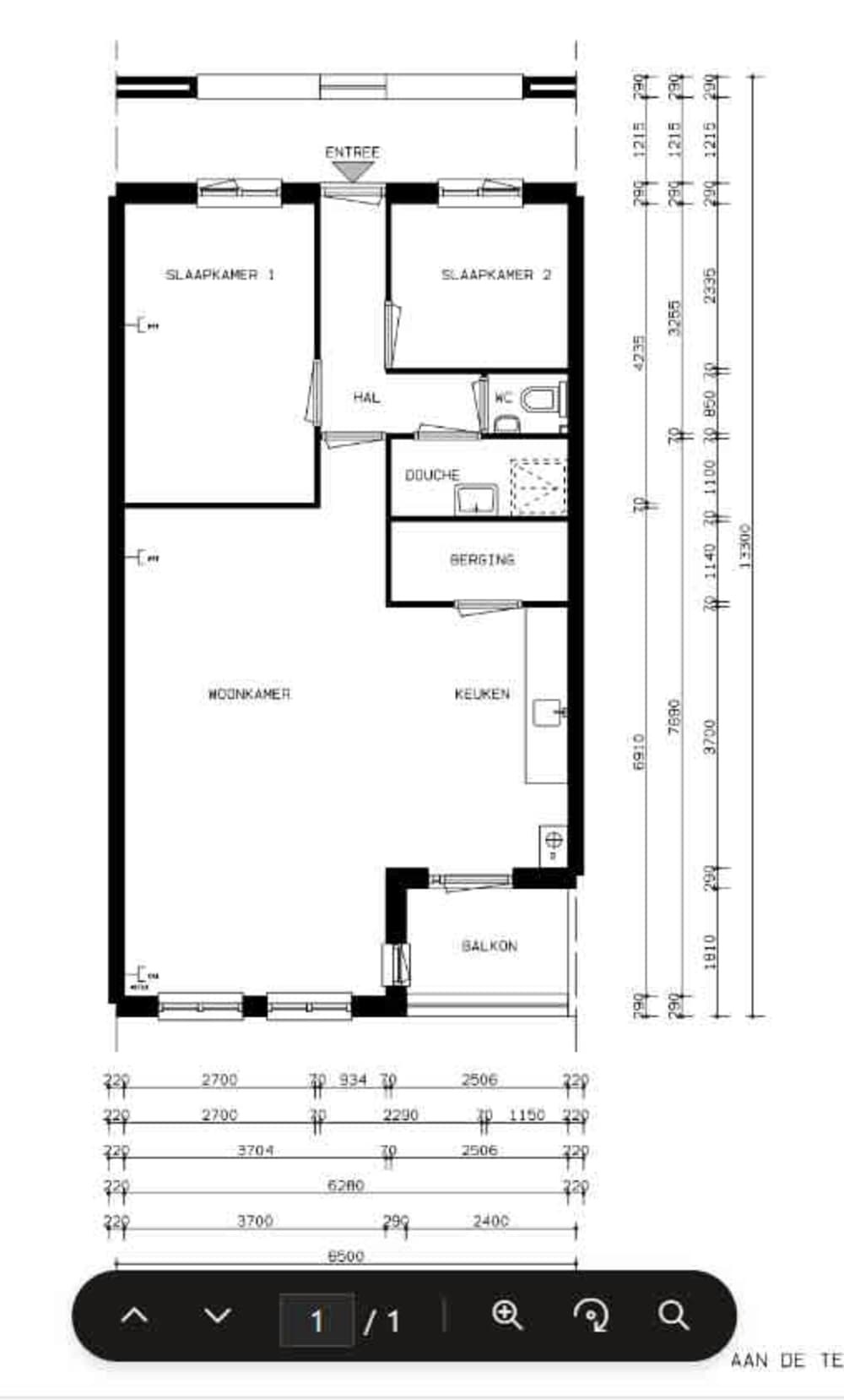
Woning in het centrum van AmersfoortIn het hart van Amersfoort bieden wij deze 2-kamerwoning aan. De woning beschikt over een woonkamer met open keuken en een fijn balkon.De woning is gebouwd in 1986 door de bouwperiode kunnen de woningen wat gehorig zijn. Dit is geen seniorencomplex; de bewoners zijn van verschillende leeftijden.BezichtigingBij deze woning vindt een bezichtiging plaats.Overnames welIn de woning zijn verschillende zaken ter overname denk hierbij aan vloer, gordijn etc. Dit is iets tussen u en de andere partij. Omnia Wonen zit hier als verhuurder niet tussen.Verhuurbaar per 5 november 2025De woning is beschikbaar per 5 november 2025.CentrumDeze woning ligt midden in het centrum van Amersfoort. Dit betekent genieten van alle voorzieningen dichtbij maar ook geluiden in het weekend van het uitgaanspubliek.Parkeren binnenstad AmersfoortOmnia Wonen is niet verantwoordelijk voor het parkeren in de binnenstad. Deze woning wordt dus ook verhuurd zonder parkeerplaats. Het parkeren in de binnenstad van Amersfoort wordt geregeld door de gemeente Amersfoort via vergunningen. Of u in aanmerking kan komen voor een vergunning is niet de verantwoordelijkheid van Omnia Wonen. Voor meer informatie kunt u naar:https://amersfoort.parkeerservice.nl/parkeren-op-straat/faq-straatparkeren-/De binnenstad is een autoluwe gebied. Dit wil zeggen dat je alleen met een ontheffing de binnenstad mag betreden met een voertuig.https://www.amersfoort.nl/de-autoluwe-binnenstadBenodigde documenten voor verhuring (uiterlijk binnen 2 werkdagen naar aanbieding bij ons binnen zijn)Onderstaande documenten hebben wij nodig voor de verhuring. Deze kunt u uploaden op uw eigen Woningnet account. Of u kunt mailen naarInfo@omniawonen.nlonder vermelding van het adres (let op alleen als u een aanbieding krijgt)De meest recente inkomensverklaring van de Belastingdienst 2023 of 2024 (of meest recente definitieve aanslag inkomstenbelasting) van u en van uw eventuele partner (ook als deze geen eigen inkomen heeft) U moet zelf uw BSN nummer wegstrepen. Anders mogen wij deze niet behandelen.BRP van de gezinssamenstelling + woonhistorie op te vragen bij de gemeente. Woonhistorie is ook op te vragen    met uw DIGID viawww.mijnoverheid.nlEen verhuurdersverklaring. Deze kunt u opvragen bij uw huidige of uw laatste verhuurder. Heeft u een koopwoning, dan zouden wij graag drie afschriften van de hypotheek willen zien.Antwoord en gegevensformulier  digitaal te bereiken viahttps://www.omniawonen.nl/acceptatieformulier/of op papier via:Acceptatie-en-gegevensformulier.pdf (omniawonen.nl)Bent u gescheiden, niet langer geregistreerd partners of woont u niet meer samen? Dan mag u uw kinderen alleen op uw inschrijving vermelden als zij hun hoofdverblijfplaats bij u hebben of als er sprake is van co-ouderschap.   In geval van co-ouderschap mogen beide ouders de kinderen op hun inschrijving vermelden. Op het moment dat u een woning accepteert, vraagt de verhuurder u om aan te tonen dat de kinderen terecht op uw inschrijving staan vermeld. Dit kan aan de hand van een gerechtelijke uitspraak, een echtscheidingsconvenant of een ouderschapsplan*Aan de verhuurprijs en plattegrond kunnen geen rechten worden ontleend.

Kaart