Huurwoning Amersfoort

Graaf Willemlaan 45, Amersfoort

Korte samenvatting

Locatie
Amersfoort
Huurprijs
€ 626,38
Type woning
Appartement
Oppervlakte:
39 m2
Kamers:
2
Slaapkamers:
1
Wachttijd:
(niet ingesteld)
Datum beschikbaar:
1 jul 2021
Maximaal inkomen:
€ 39.055,00
Status:
Verlopen

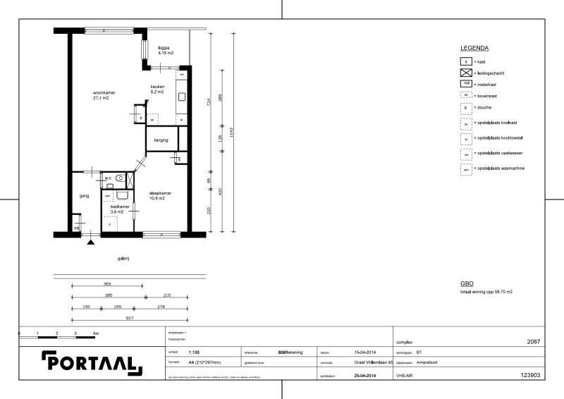
Omschrijving woning

Deze seniorenwoning (Huize Graaf Willem) van woningcorporatie Portaal is gelegen op de 1 e verdieping in de levendige wijk de Berg Zuid. Let op! Laat u een grote woning achter? Mogelijk komt u in aanmerking voor de regeling van Groot naar Beter. Voor meer informatie zie : https://www.woningneteemvallei.nl/Paginas/Van%20Groot%20naar%20Beter   Indeling woning De woning heeft een open keuken en heeft 1 slaapkamer. Het complex beschikt over een gemeenschappelijke binnentuin en een gemeenschappelijke huiskamer. Voor de verdere indeling verwijzen wij u naar de plattegrond. Aan de plattegrond kunt u geen rechten ontlenen. De woning heeft een inpandige berging en een eigen berging op de begane grond. Voorzieningen   Diverse voorzieningen zoals winkels en openbaar vervoer zijn op loopafstand of goed bereikbaar. Ook is er voldoende parkeergelegenheid. De woning is voorzien van een lift en heeft een afgesloten toegangshal. Uw appartement wordt verwarmd met een eigen CV-ketel.   Belangrijke informatie   Al onze woningen van voor 1994 worden asbestveilig opgeleverd en in technisch goede staat. Houdt er rekening mee dat u vloeren, wanden en schilderwerk binnen zelf zal moeten doen. U en alle meeverhuizende volwassen personen (behalve kinderen) zijn bij het reageren op een woning verplicht in bezit te zijn van een recente inkomensverklaring. Dit doet u via www.mijnbelastingdienst.nl Indien uw inkomen onbekend is bij de belastingdienst, of boven de inkomensgrens komt dan moet u van de afgelopen 3 maanden salaris/pensioen/uitkering specificatie inleveren. Het is een seniorenwoning, leeftijd vanaf 55 jaar. Inwonende kinderen zijn niet toegestaan omdat het een seniorencomplex betreft. Interne doorschuif in dit complex is mogelijk en krijgen voorrang.   Accepteren van de woning Om een woning te kunnen accepteren hebben wij de volgende documenten nodig: Acceptatieformulier (via website van Portaal) Inkomensverklaring 2020 of 2019 (Belastingdienst) Recent inkomen van de laatste 3 maanden BRP met adreshistorie (via Gemeente) Verhuurdersverklaring (indien uw huidige woning een huurwoning betreft) Voorwaarden: U en alle meeverhuizende volwassen personen (behalve kinderen) moeten bij het reageren op een woning een recente inkomensverklaring hebben. U vraagt deze op via   www.mijnbelastingdienst.nl . Als uw inkomen onbekend is bij de Belastingdienst, of boven de inkomensgrens komt, dan moet u daarbij ook van de afgelopen 3 maanden salaris/pensioen/uitkering specificaties inleveren. Als u bij de acceptatie van de woning de inkomensverklaring niet heeft, dan kunnen wij de woning niet aan u toewijzen.   Kijk op onze website voor de  documenten  die u nodig heeft om in aanmerking te komen voor deze woning. Als u recht heeft op huurtoeslag, dan betaalt u mogelijk een  lagere huur . Op  onze website leest u welk inkomen  u moet opgeven.

Kaart