Huurwoning Amersfoort

Het Masker 169, Amersfoort

Korte samenvatting

Locatie
Amersfoort
Huurprijs
€ 902,17
Type woning
Portiekwoning
Oppervlakte:
68 m2
Kamers:
3
Slaapkamers:
2
Wachttijd:
(niet ingesteld)
Datum beschikbaar:
25 sep 2025
Maximaal inkomen:
(niet ingesteld)
Status:
Verlopen

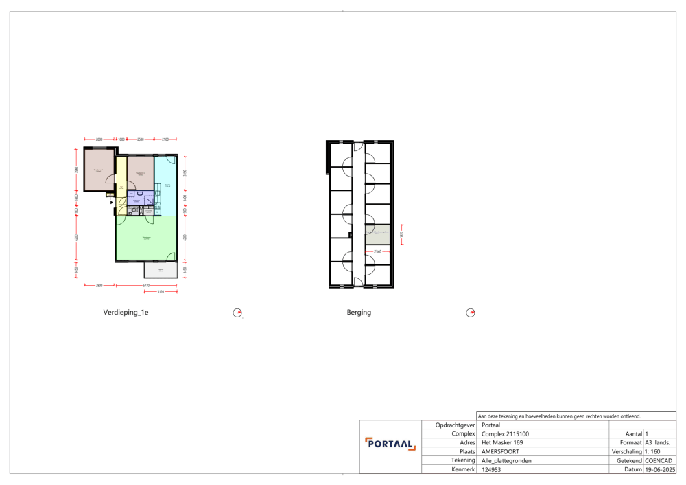
Omschrijving woning

Dit 3-kamerappartement op de 1eetage met een balkon van woningcorporatie Portaal is gelegen in de architectonische wijk Kattenbroek, met wijds uitzicht over de vijver van Emiclaer.Indeling woningDe woning beschikt over een ruime woonkamer met open keuken, twee slaapkamers, een badkamer en separaat toilet. Het balkon grenst aan de woonkamer. Voor de indeling van de woning verwijzen wij naar de plattegrond. Hieraan kunnen geen rechten worden ontleend. De woning heeft een eigen berging op de begane grond en voldoende parkeerruimte in de omgeving.VoorzieningenDiverse voorzieningen zoals scholen, winkels en openbaar vervoer zijn op loopafstand of goed.Behoud inschrijfduurHeeft u een woning geaccepteerd via Woningnet regio Eemvallei? Per 1 juli 2022 behoudt u 75% van uw inschrijfduur als u zich binnen een jaar opnieuw inschrijft.Op deze manier kunt u sneller verhuizen als de woning toch niet bevalt of uw persoonlijke situatie verandert.Belangrijke informatieAl onze woningen van voor 1994 worden asbestveilig opgeleverd en in technisch goede staat. Houdt er rekening mee dat u vloeren, wanden en schilderwerk binnen zelf zal moeten doen !U bent bij het reageren op een woning verplicht in bezit te zijn van een recente inkomensverklaring. Dit doet u via www.mijnbelastingdienst.nl.Indien u inkomen onbekend is bij de belastingdienst, of boven de inkomensgrens komt dan moet u van de afgelopen 3 maanden salaris/pensioen/uitkering specificatie inleveren.Accepteren van de woningOm een woning te accepteren hebben wij de volgende documenten nodig:Acceptatieformulier (via website van Portaal)Inkomensverklaring 2024Drie meest recente inkomensstrokenBRP met woonhistorie en burgerlijke staat (via Gemeente)Verhuurdersverklaring (indien uw huidige woning een huurwoning betreft)

Kaart