Huurwoning Amersfoort

Randenbroekerweg 119E, Amersfoort

Korte samenvatting

Locatie
Amersfoort
Huurprijs
€ 760,62
Type woning
Appartement
Oppervlakte:
76 m2
Kamers:
2
Slaapkamers:
1
Wachttijd:
(niet ingesteld)
Datum beschikbaar:
3 feb 2026
Maximaal inkomen:
(niet ingesteld)
Status:
Gepubliceerd
Reageren

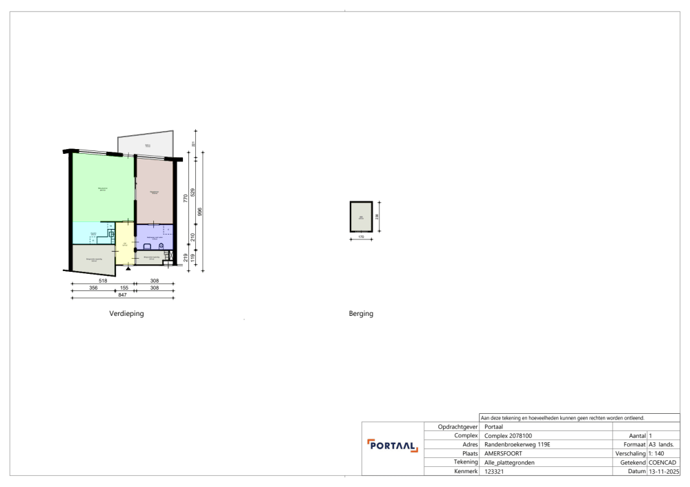
Omschrijving woning

Deze tweekamer seniorenwoning van woningcorporatie Portaal is gelegen op de 1e etage in de wijk Randenbroek in Amersfoort.Indeling woningDe hal biedt toegang tot de badkamer met toilet, de inpandige bergingen en de woonkamer. De ruime woonkamer beschikt over een open keuken en biedt toegang tot de slaapkamer en het balkon. Voor de verdere indeling van de woning verwijzen we door naar de plattegrond. Hieraan kunnen geen rechten worden ontleend.VoorzieningenDiverse voorzieningen zoals winkels en openbaar vervoer zijn op loopafstand of goed bereikbaar.Behoud inschrijfduurHeeft u een woning geaccepteerd via Woningnet regio Eemvallei? Per 1 juli 2022 behoudt u 75% van uw inschrijfduur als u zich binnen een jaar opnieuw inschrijft.Op deze manier kunt u sneller verhuizen als de woning toch niet bevalt of uw persoonlijke situatie verandert.Belangrijke informatieBinnen dit complex zijn inwonende kinderen ongeacht de leeftijd niet toegestaan.Het huishouden mag maximaal uit twee personen bestaan.Al onze woningen van voor 1994 wordenasbestveiligopgeleverd en intechnisch goede staat. Houdt er rekening mee dat u vloeren, wanden en schilderwerk binnen zelf zal moeten doen.U en alle meeverhuizende volwassen personen (behalve kinderen) zijn bij het reageren op een woning verplicht in bezit te zijn van een recenteinkomensverklaring van de belastingdienst. Dit doet u via www.mijnbelastingdienst.nl. Klik op ‘Mijn gegevens’ – klik op ‘Inkomensverklaring opvragen en geregistreerd inkomen bekijken’ – Klik op ‘Inkomensverklaring 2024 opvragen’ – Er opent een pdf bestand dat u kunt opslaan en aanleveren. Foto’s en screenshots worden niet geaccepteerd.Accepteren van de woningOm een woning te accepteren hebben wij de volgende documenten nodig:Acceptatieformulier. Dit document kunt u vinden op de website van PortaalInkomensverklaring 2024 van de BelastingdienstDrie meest recente inkomensstroken en/of uitkeringsspecificatiesBRP met woonhistorie en burgerlijke staat. Dit document kunt u opvragen bij uw gemeente en mag niet ouder zijn dan 3 maandenVerhuurdersverklaring (indien uw huidige woning een huurwoning betreft). Niet ouder dan 3 maandenKopie van de voor- en achterkant van uw geldige legitimatiebewijsAan deze advertentie kunnen geen rechten worden ontleend.

Kaart