Huurwoning Amersfoort

Scheltussingel 108, Amersfoort

Korte samenvatting

Locatie
Amersfoort
Huurprijs
€ 858,39
Type woning
Appartement
Oppervlakte:
70 m2
Kamers:
3
Slaapkamers:
2
Wachttijd:
(niet ingesteld)
Datum beschikbaar:
24 mrt 2025
Maximaal inkomen:
(niet ingesteld)
Status:
Verlopen

Omschrijving woning

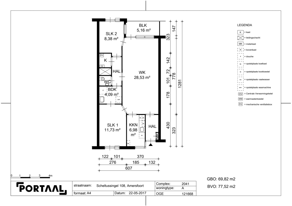
Deze driekamer seniorenwoning (55+) in gebouw Amersfortia van woningcorporatie Portaal is gelegen nabij het levendige centrum van Amersfoort.Indeling van de woningDe woning is gelegen op de tweede verdieping van het complex en biedt uitzicht op de Van Randwijcklaan. De woning beschikt over twee slaapkamers en een ruime woonkamer met gesloten keuken. Daarnaast beschikt de woning over een eigen berging in kelder van het complex. Voor de verdere indeling van de woning verwijzen wij naar de woningplattegrond. Hieraan kunnen geen rechten worden ontleend.VoorzieningenDiverse voorzieningen zoals winkels en openbaar vervoer zijn op loopafstand of goed bereikbaar.Behoud inschrijfduurHeeft u een woning geaccepteerd via Woningnet regio Eemvallei? Per 1 juli 2022 behoudt u 75% van uw inschrijfduur als u zich binnen een jaar opnieuw inschrijft.Op deze manier kunt u sneller verhuizen als de woning toch niet bevalt of uw persoonlijke situatie verandert.Belangrijke informatie- Interne kandidaten hebben voorrang- Toewijzing 1- of 2 persoonshuishoudens- Inwonende kinderen zijn niet toegestaanAl onze woningen van voor 1994 wordenasbestveiligopgeleverd en intechnisch goede staat. Houdt er rekening mee dat u vloeren, wanden en schilderwerk binnen zelf zal moeten doen.U en alle meeverhuizende volwassen personen (behalve kinderen) zijn bij het reageren op een woning verplicht in bezit te zijn van een recenteinkomensverklaring van de belastingdienst. Dit doet u via www.mijnbelastingdienst.nl. Klik op ‘Mijn gegevens’ – klik op ‘Inkomensverklaring opvragen en geregistreerd inkomen bekijken’ – Klik op ‘Inkomensverklaring 2023 opvragen’ – Er opent een pdf bestand dat u kunt opslaan en aanleveren. Foto’s en screenshots worden niet geaccepteerd.Accepteren van de woningOm een woning te accepteren hebben wij de volgende documenten nodig:Dit document kunt u vinden op de website van PortaalInkomensverklaring 2023 van de BelastingdienstDrie meest recente inkomensstrokenBRP met woonhistorie en burgerlijke staat. Dit document kunt u opvragen bij uw gemeenteVerhuurdersverklaring (indien uw huidige woning een huurwoning betreft)Kopie van de voor- en achterkant van uw geldige legitimatiebewijsAan deze advertentie kunnen geen rechten worden ontleend.

Kaart