Huurwoning Amersfoort

Scheltussingel 82, Amersfoort

Korte samenvatting

Locatie
Amersfoort
Huurprijs
€ 609,56
Type woning
Appartement
Oppervlakte:
49 m2
Kamers:
3
Slaapkamers:
2
Wachttijd:
(niet ingesteld)
Datum beschikbaar:
19 mrt 2021
Maximaal inkomen:
€ 39.055,00
Status:
Verlopen

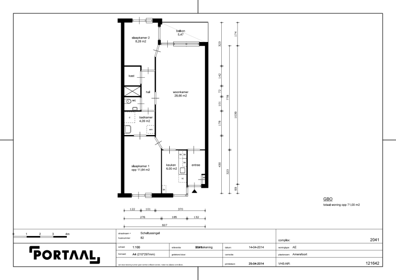
Omschrijving woning

Dit driekamerappartement in gebouw Amersfortia, aan de Scheltussingel met uitzicht op de stadswal van woningcorporatie Portaal is gelegen nabij het levendige centrum van Amersfoort.   Indeling van de woning Voor de indeling van de woning verwijzen wij naar de woningplattegrond. Aan deze woningplattegrond kunnen geen rechten worden ontleend.   Voorzieningen Het woongebouw is voorzien van een activiteitenruimte, parkeerplaats en dichtbij het gezellige winkelcentrum en het Neptunesplein. Ook is er en eigen fietsenberging, scootmobielstalling en oplaadplaatsen voor een scootmobiel. De woning heeft een videofoon.   Belangrijke informatie Interne kandidaten hebben voorrang. Toewijzing 1- of 2 persoonshuishoudens zonder inwonende kinderen.   Al onze woningen van voor 1994 worden asbestveilig opgeleverd en  in technisch goede staat. Houdt er rekening mee dat u vloeren, wanden en schilderwerk binnen zelf zal moeten doen !   U en alle meeverhuizende volwassen personen (behalve kinderen)  zijn bij het reageren op een woning verplicht in bezit te zijn van een recente inkomensverklaring. Dit doet u via www.mijnbelastingdienst.nl. Indien u inkomen onbekend is bij de belastingdienst, of boven de inkomensgrens komt dan moet u van de afgelopen 3 maanden salaris/pensioen/uitkering specificatie inleveren. Accepteren van de woning Om een woning te accepteren hebben wij de volgende documenten nodig: Acceptatieformulier (via website van Portaal) Inkomensverklaring 2019 Recent inkomen van de laatste 3 maanden BRP met woonhistorie (via Gemeente) Verhuurdersverklaring (indien uw huidige woning een huurwoning betreft). Voorwaarden: U en alle meeverhuizende volwassen personen (behalve kinderen) moeten bij het reageren op een woning een recente inkomensverklaring hebben. U vraagt deze op via   www.mijnbelastingdienst.nl . Als uw inkomen onbekend is bij de Belastingdienst, of boven de inkomensgrens komt, dan moet u daarbij ook van de afgelopen 3 maanden salaris/pensioen/uitkering specificaties inleveren. Als u bij de acceptatie van de woning de inkomensverklaring niet heeft, dan kunnen wij de woning niet aan u toewijzen.   Kijk op onze website voor de  documenten  die u nodig heeft om in aanmerking te komen voor deze woning. Als u recht heeft op huurtoeslag, dan betaalt u mogelijk een  lagere huur . Op  onze website leest u welk inkomen  u moet opgeven.

Kaart