Huurwoning Amersfoort

Van Randwijcklaan 27A, Amersfoort

Korte samenvatting

Locatie
Amersfoort
Huurprijs
€ 704,68
Type woning
Appartement
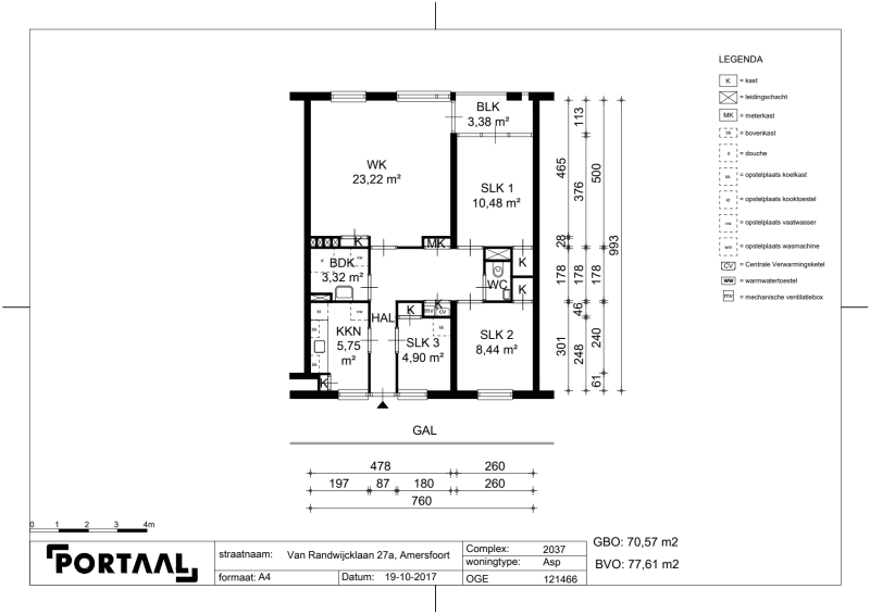
Oppervlakte:
47 m2
Kamers:
4
Slaapkamers:
3
Wachttijd:
(niet ingesteld)
Datum beschikbaar:
5 aug 2021
Maximaal inkomen:
€ 39.055,00
Status:
Verlopen

Omschrijving woning

Deze vierkamer galerijwoning, zonder lift van woningcorporatie Portaal is gelegen in de gezellige wijk de Kruiskamp.   Indeling woning Voor de indeling van de woning verwijzen wij naar de plattegrond, hieraan kunnen geen rechten worden ontleend. Dit appartement is voorzien van een eigen fietsenberging en een eigen CV-installatie. De woningen beschikken niet over een lift.   Voorzieningen . Diverse voorzieningen zoals scholen, winkels, openbaar vervoer en het centrum van Amersfoort zijn op loopafstand. Parkeren met parkeervergunning. Portaal heeft in de omgeving wel garages en parkeerplaatsen die via Woningnet worden aangeboden.   Belangrijke informatie Al onze woningen van voor 1994 worden asbestveilig opgeleverd en  in technisch goede staat. Houdt er rekening mee dat u vloeren, wanden en schilderwerk binnen zelf zal moeten doen !   U en alle meeverhuizende volwassen personen (behalve kinderen)  zijn bij het reageren op een woning verplicht in bezit te zijn van een recente inkomensverklaring. Dit doet u via www.mijnbelastingdienst.nl. Indien u inkomen onbekend is bij de belastingdienst, of boven de inkomensgrens komt dan moet u van de afgelopen 3 maanden salaris/pensioen/uitkering specificatie inleveren. Accepteren van de woning Om een woning te accepteren hebben wij de volgende documenten nodig: Acceptatieformulier (via website van Portaal) Inkomensverklaring 2020 of 2019 Recent inkomen van de laatste 3 maanden BRP met woonhistorie (via Gemeente) Verhuurdersverklaring (indien uw huidige woning een huurwoning betreft) Voorwaarden: U en alle meeverhuizende volwassen personen (behalve kinderen) moeten bij het reageren op een woning een recente inkomensverklaring hebben. U vraagt deze op via   www.mijnbelastingdienst.nl . Als uw inkomen onbekend is bij de Belastingdienst, of boven de inkomensgrens komt, dan moet u daarbij ook van de afgelopen 3 maanden salaris/pensioen/uitkering specificaties inleveren. Als u bij de acceptatie van de woning de inkomensverklaring niet heeft, dan kunnen wij de woning niet aan u toewijzen.   Kijk op onze website voor de  documenten  die u nodig heeft om in aanmerking te komen voor deze woning. Als u recht heeft op huurtoeslag, dan betaalt u mogelijk een  lagere huur . Op  onze website leest u welk inkomen  u moet opgeven.

Kaart