Huurwoning Baarn

Doormanlaan 81, Baarn

Korte samenvatting

Locatie
Baarn
Huurprijs
€ 924,40
Type woning
Maisonnette
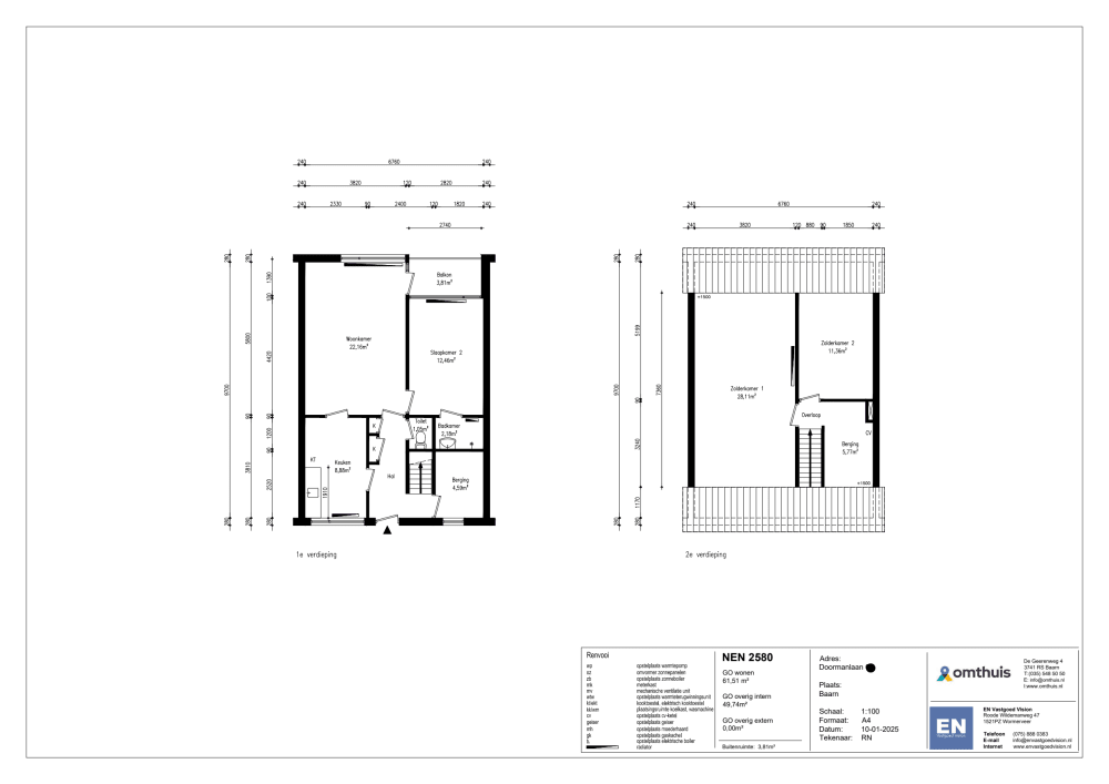
Oppervlakte:
45 m2
Kamers:
4
Slaapkamers:
3
Wachttijd:
(niet ingesteld)
Datum beschikbaar:
29 sep 2025
Maximaal inkomen:
(niet ingesteld)
Status:
Verlopen

Omschrijving woning

Woningzoekenden met lokale binding Baarn krijgen voorrang. Uw binding wordt vooraf NIET gecontroleerd. Controleer of u binding goed heeft staan in uw inschrijving. Hier leest u wat binding inhoudt:Vraag en antwoord - OmthuisDeze woning is alleen geschikt voor 1 persoon of een stel. Huishoudens van meer dan twee personen of met kinderen worden afgewezen.Belangrijk!Word je uitgenodigd voor de bezichtiging? Zorg er dan voor dat alvast benodigde documenten aanvraagt! Het aanvragen van een BRP bij de gemeente of andere papieren kan namelijk een paar dagen duren. Omdat wij met vaste deadlines werken voor het aanleveren van gegevens, is het belangrijk dat je dit niet te lang uitstelt. Bekijk hier welke documenten je in jouw situatie nodig hebt:Benodigde documenten - OmthuisVerhuurdatumDe woning is onder voorbehoud per direct beschikbaar.De woningDeze mooie ruime maisonnette woning ligt op de eerste en tweede verdieping. Vanuit de gang heeft u toegang tot de keuken, de woonkamer, berging, het toilet en de trap naar de tweede verdieping. Vanuit de woonkamer heeft u toegang tot het balkon en de slaapkamer met aangrenzende badkamer. Op de tweede verdieping bevinden zich nog twee kamers en een overloop met bergruimte.Staat van de woningOmthuis levert iedere woning op met basiskwaliteit: schoon, heel en veilig.Wat moet u vaak nog zelf doen? Houd er rekening mee dat u zelf ook nog het een en ander moet doen om de woning naar uw smaak te maken. Denk daarbij aan het leggen van ondervloeren en vloeren en het schilderen en behangen van de muren en plafonds.Wonen in BaarnBaarn is gelegen tussen Amersfoort, Hilversum en Soest. De stad is goed bereikbaar via de A1 en de N211 en ook via openbaar vervoer. De buurten zijn groen en kindvriendelijk, er zijn parken en diverse scholen. Ook is er een mooi sportcentrum met zwembad De Trits. Middelpunt van de stad Baarn is het centrum met winkels en het plein de Brink. Aan het plein de muziektent en restaurants met gezellige terrasjes.

Kaart