Huurwoning Eemnes

Melkpad 41, Eemnes

Korte samenvatting

Locatie
Eemnes
Huurprijs
€ 924,63
Type woning
Portiekwoning
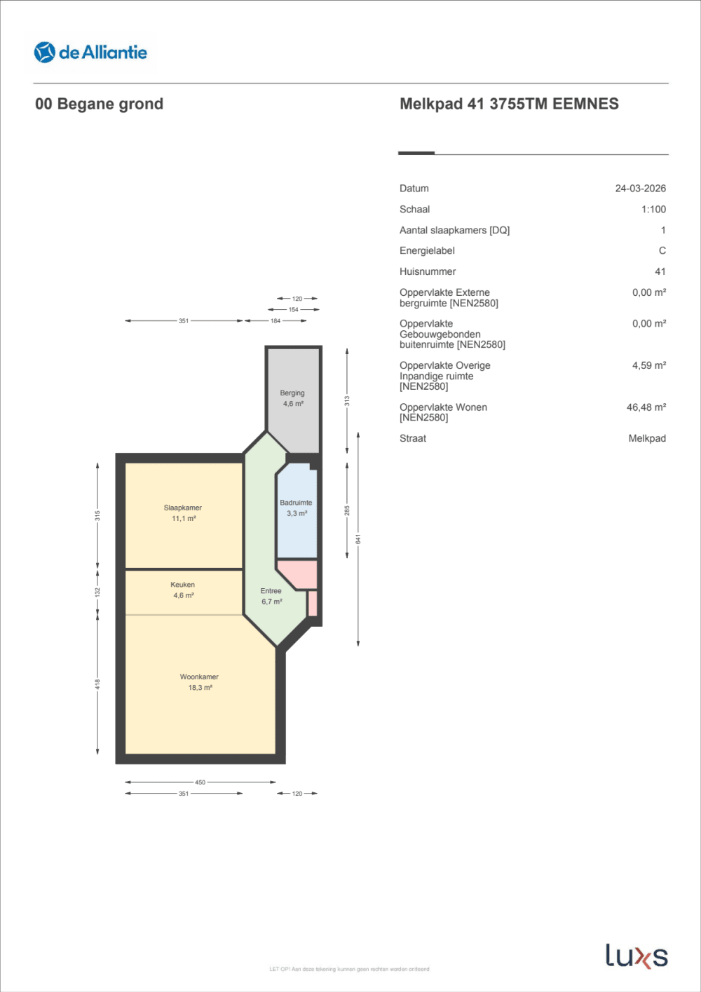
Oppervlakte:
37 m2
Kamers:
2
Slaapkamers:
1
Wachttijd:
(niet ingesteld)
Datum beschikbaar:
1 apr 2026
Maximaal inkomen:
(niet ingesteld)
Status:
Gepubliceerd
Reageren

Omschrijving woning

WoningHet betreft een twee kamerwoning op de begane grond. De woonkamer is 18,29 m2 de open keuken is 4,61 m2. De slaapkamer is 11,02 m2. De woning beschikt over een kleine privé buitenruimte.Deze twee kamer woning is geschikt voor 1 -en 2 persoonshuishoudens zonder inwonende kinderenWoonomgevingIn de Zuidbuurt van Eemnes met ontsluiting via de Stadswijksingel. De Zuidbuurt kenmerkt zich door een landelijke uitstraling met veel doorkijkjes op de landerijen. Geen doorgaand verkeer. Via wandel en fietspaden is er directe aansluiting met het dorp en het nieuwe dorpshart. Op loopafstand van voorzieningen en sportfaciliteiten. Daarnaast is de dichtstbijzijnde uitvalsweg in de nabije omgeving op slechts 2 minuten rijden.Belangrijke informatieDe huur is exclusief huuraanpassing van de servicekosten per 1 juli 2026Zorgt u ervoor dat u alvast een uittreksel uit de Basisregistratie Personen (BRP) opvraagt bij uw gemeente. Het uittreksel mag niet ouder dan drie maanden zijn en moet uw gezinssamenstelling, burgerlijke staat en historische adresgegevens vermelden.De advertentie is gewijzigd op 24-03-2026 11:43:32.

Kaart