Huurwoning Hekendorp

Baron Bentinckstraat 12, Hekendorp

Korte samenvatting

Locatie
Hekendorp
Huurprijs
€ 702,96
Type woning
Hoekwoning
Oppervlakte:
42 m2
Kamers:
2
Slaapkamers:
1
Wachttijd:
(niet ingesteld)
Datum beschikbaar:
10 mrt 2025
Maximaal inkomen:
€ 39.055,00
Status:
Verlopen

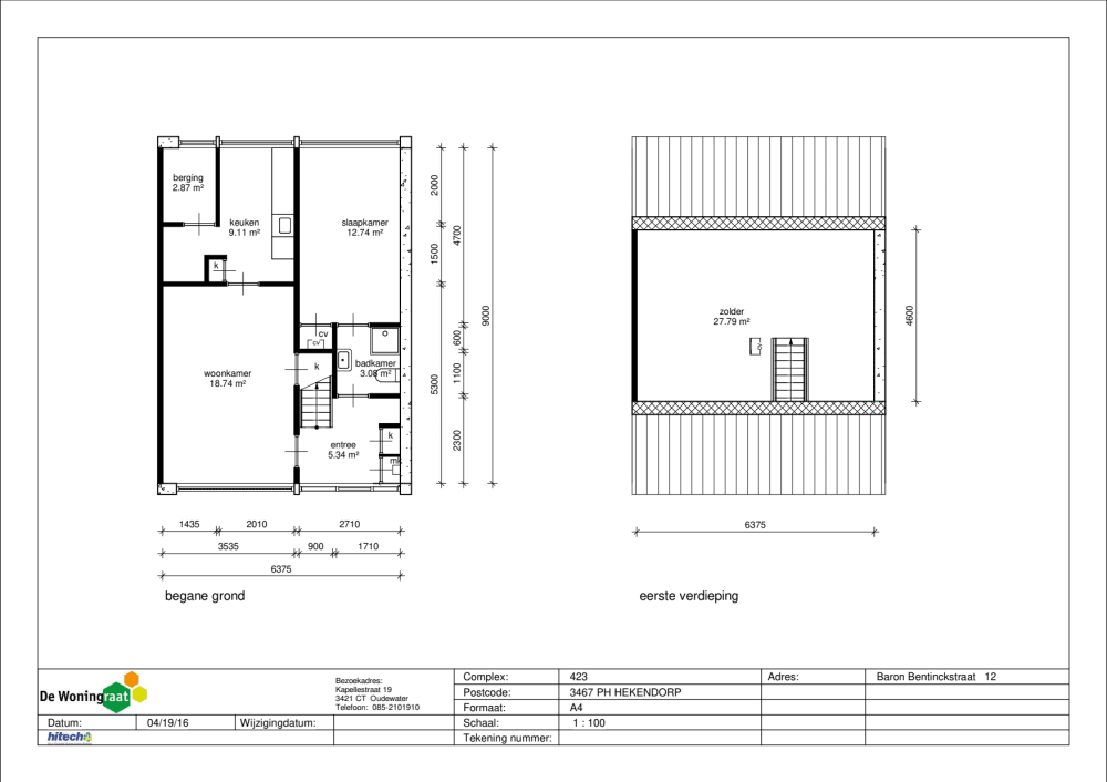
Omschrijving woning

De aangebodenseniorenwoning heeft een voor- en achtertuin (zuiden). Deseniorenwoning  is rustig gelegen in de dorpskern van Hekendorp. De ligging is landelijk in het Groene Hart. Hekendorp beschikt over een gemeenschapshuis en horeca. Voor overige voorzieningen bent u aangewezen op Oudewater of Haastrecht.Hekendorp kenmerkt zich door een hechte gemeenschap. In Hekendorp (gemeente Oudewater) is sprake van kernbinding. Valt u postcode in deze plaats? Dan wordt automatisch uw kernbinding in de selectie verwerkt.Indeling;Entree, woonkamer (ca. 19 m²) met trapkast, gesloten keuken (ca. 9 m²) met vaste kast en inpandige berging/bijkeuken (ca. 3 m²), slaapkamer (ca. 13 m²) en badkamer met toilet, douche en wastafel ( 3 m²).1e Verdieping:Via vaste trap bereikbare zolder (ca. 28 m²) met opstelplaatsen van unit M.V. en CV-installatieVoorzieningen;Individuele HR-combiketel voor verwarmingMechanische ventilatieZonnepanelen met bijbehorende installatie om eigen energie op te wekken. LET OP: U gaat hiervoor een contract aan met Wocozon. Kosten voor zonnepanelen zijn reeds in de huur opgenomen.Woningbezichtiging:Wij nodigen een beperkt aantal kandidaten uit voor een groepsbezichtigingWanneer u tot 1 van de kandidaten behoort krijgt u een uitnodiging per e-mail toegestuurd. Het is verplicht om uw aan te melden voor de bezichtiging. Wanneer u niet op tijd reageert wordt u automatisch van de lijst verwijderd.Deze aanbieding geldt niet indien;Uw (verzamel)inkomen te hoog of te laag is volgens de bepalingen in de Woningwet dan wel Huisvestingsverordening van de Gemeente Oudewater (zie www.oudewater.nl)U niet voldoet aan de passendheidseisen gesteld in de Huisvestingsverordening van de Gemeente OudewaterU niet voldoet aan de voorwaarden in de woningadvertentieU geen verhuurdersverklaring heeft ingeleverd als u doorstromer bentUit de verhuurdersverklaring of uit andere informatie blijkt dat er sprake is (geweest) van feiten of omstandigheden die voor ons reden zijn om geen huurovereenkomst met u te willen aangaan, zoals (huur) schulden of overlastDe verhuurdatum is onder voorbehoud.Aan deadvertenties, foto's, informatie en teksten in deze advertentie kunnen geen rechten worden ontleend. Wijzigingen en typefoutenvoorbehouden.

Kaart