Huurwoning Houten

Kievitweide 71, Houten

Korte samenvatting

Locatie
Houten
Huurprijs
€ 442,46
Type woning
Hoekwoning
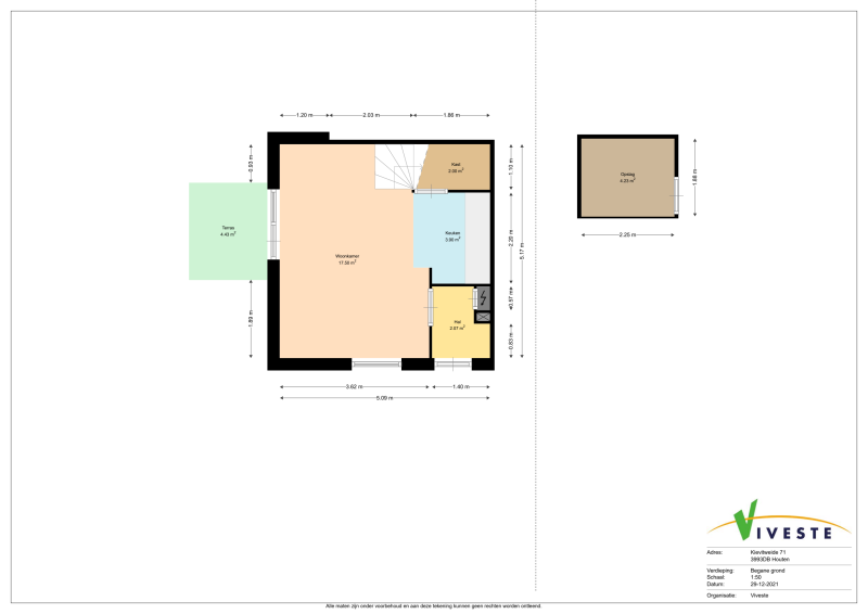
Oppervlakte:
51 m2
Kamers:
2
Slaapkamers:
1
Wachttijd:
(niet ingesteld)
Datum beschikbaar:
8 feb 2022
Maximaal inkomen:
€ 39.055,00
Status:
Verlopen

Omschrijving woning

Deze jongerenwoning is voor woningzoekenden in de leeftijdscategorie van 18 tot en met 22 jaar. De woning heeft 1 slaapkamer een open keuken waar gekookt kan worden op gas, een eigen berging en een tuin. De woning is gelegen in de wijk De Weiden dit is in het noordoosten van Houten.  De vermelde huurprijs is inclusief een tijdelijke korting. Door de korting komt de huurprijs onder de huurtoeslaggrens voor jongeren en kunnen jongeren eventueel huurtoeslag aanvragen. De korting vervalt op de eerste van de maand volgend op de maand waarin de huurder de leeftijd van 23 jaar bereikt. Afhankelijk van het inkomen blijft na het vervallen van de korting huurtoeslag mogelijk. De netto huurprijs zonder korting is € 44,75 per maand (prijspeil 2022). Op de sluitingsdag van de advertentie dien je jonger dan 23 jaar te zijn. Voorwaarden: Heeft u interesse in de woning? Zorg dan dat u de deze papieren al in huis heeft: Inkomensverklaring Wilt u in aanmerking komen voor een sociale huurwoning, dan dient u (en uw evt. partner) uw meest recente inkomensverklaring (2020/2021) in te leveren. Deze kunt u direct downloaden via de website van de Belastingdienst met uw Digi-D code. Als u bij acceptatie geen inkomensverklaring aanlevert  komt u niet in aanmerking voor de woning . Let op: alleen originele inkomensverklaringen nemen wij in behandeling! Verhuurdersverklaring Huurt u een woning anders dan van Viveste? Dan  vragen wij om ook een verhuurdersverklaring aan te leveren. Heeft u een koopwoning? Dan vragen wij u om een hypotheekhouderverklaring aan te leveren. Uittreksel Basisregistratie Personen Op dit uittreksel moet vermeld staan wat uw burgerlijke staat is, uw historische adresgegevens en welke personen nog meer op het adres staan ingeschreven. Op onze website leest u meer over  inkomensvoorwaarden

Kaart