Huurwoning Houten

Ploegveld 69, Houten

Korte samenvatting

Locatie
Houten
Huurprijs
€ 934,43
Type woning
Tussenwoning
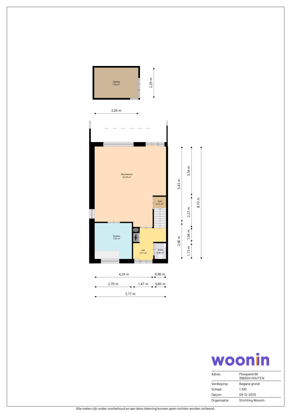
Oppervlakte:
105 m2
Kamers:
4
Slaapkamers:
3
Wachttijd:
(niet ingesteld)
Datum beschikbaar:
6 feb 2026
Maximaal inkomen:
(niet ingesteld)
Status:
Gepubliceerd
Reageren

Omschrijving woning

Omschrijving woningHoekwoning in de wijk Houten Noord-Oost. De woning heeft een achtertuin op het westen. Er kan elektrisch worden gekookt.Omgeving woningHouten heeft meerdere winkelcentra en horecagelegenheden, ook zijn er in en rond om Houten genoeg gebieden en plekken te vinden voor de gene die van de natuur houden. Houten heeft goed bereikbare uitvalswegen zoals de A12 en A27 en daarnaast 2 NS-stations en goede voorzieningen met betrekking tot het openbaarvervoer.Bijzonderheden- Het plaatsen van een schotelantenne is niet toegestaan bij deze woning.

Kaart