Huurwoning Loenen aan de Vecht

Oosterklip 12A, Loenen aan de Vecht

Korte samenvatting

Locatie
Loenen aan de Vecht
Huurprijs
€ 654,74
Type woning
Benedenwoning
Oppervlakte:
38 m2
Kamers:
2
Slaapkamers:
1
Wachttijd:
(niet ingesteld)
Datum beschikbaar:
28 jul 2025
Maximaal inkomen:
€ 39.055,00
Status:
Verlopen

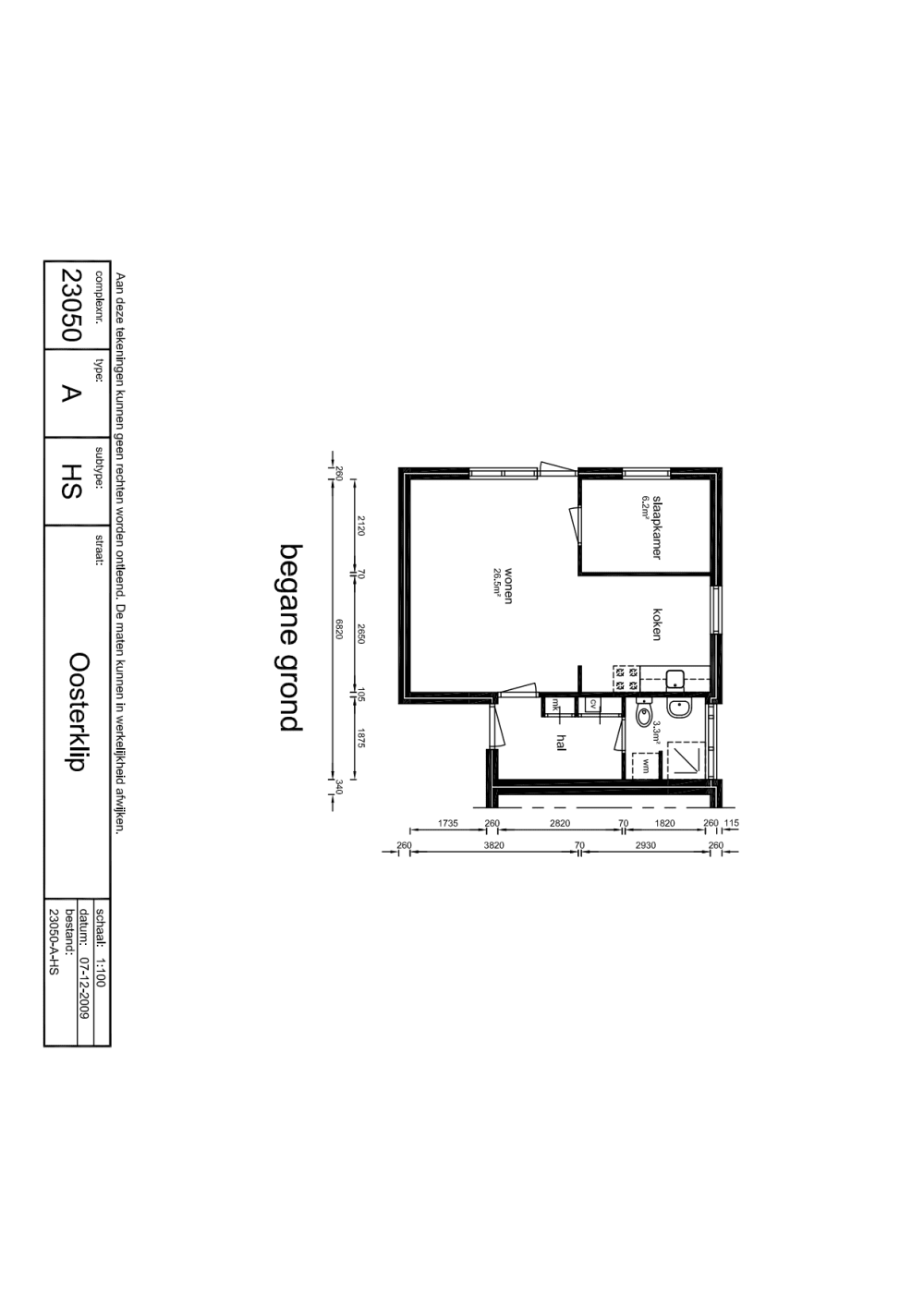
Omschrijving woning

In een autovrij hofje, aan de rand van het gezellige dorp Loenen aan de Vecht, komt deze 2-kamer benedenwoning met tuin beschikbaar. Deze woning is ideaal voor starters op de woningmarkt.Een intakegesprek kan onderdeel uitmaken van de toewijzingsprocedure.Indeling:Begane grond:Entree, hal, toegang tot de badkamer met douche, toilet, fonteintje en wasmachineaansluiting, woonkamer met open keuken (ca. 26 m²) en toegang tot de slaapkamer (ca. 6 m²). Vanuit de woonkamer is er toegang tot de grote tuin.Kenmerken:Woonoppervlakte: ca. 42 m2Slaapkamers: 1Energielabel: CVrij parkeren in de buurtLigging:Loenen aan de Vecht heeft een centrale ligging ten opzichte van Amsterdam, Utrecht, en Hilversum. Door de busverbinding met het centraal station in Breukelen is het dorp goed bereikbaar met het OV.In het dorp zijn verschillende faciliteiten te vinden, waaronder een supermarkt, 3 basisscholen, meerdere vormen van kinderopvang en diverse horecagelegenheden. De ligging aan de Vecht maakt dit een ideale woonomgeving voor watersport- en natuurliefhebbers.

Kaart