Huurwoning Nieuwegein

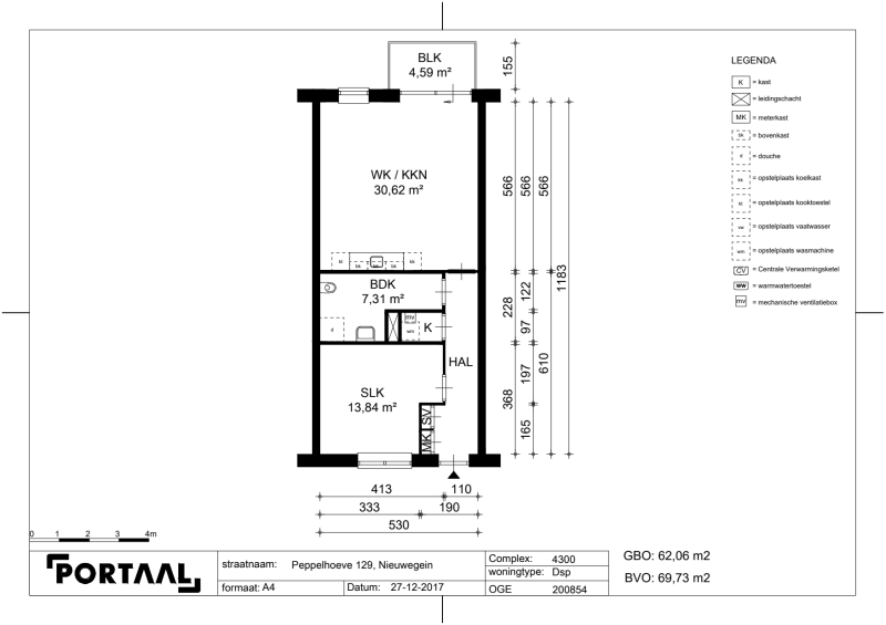
Peppelhoeve 129, Nieuwegein

Korte samenvatting

Locatie
Nieuwegein
Huurprijs
€ 644,66
Type woning
Appartement
Oppervlakte:
52 m2
Kamers:
2
Slaapkamers:
1
Wachttijd:
(niet ingesteld)
Datum beschikbaar:
22 sep 2020
Maximaal inkomen:
€ 39.055,00
Status:
Verlopen

Omschrijving woning

Deze 2 kamer appartement van woningcorporatie  Portaal  is gelegen in Nieuwegein. De woning bevindt zich op de 1 ste verdieping. Verder beschikt de woning over een balkon. In de wijk zijn diverse voorzieningen op loop- en fietsafstand zoals winkelcentra en openbaar vervoer. Bijzonderheden: De woning wordt opgeleverd met de volgende zaken ter overname: PVC vloer incl. ondervloer 2 jaar oud. Overnamevergoeding van toepassing. Omgeving De Peppelhoeve is een nieuwe straat in Nieuwegein en ligt in Blokhoeve. Dat maakt weer deel uit van de zogenoemde Groene Poort van Nieuwegein. Samen met het gebied Galecopperzoom, de tramremise en Huis de Geer vormt Blokhoeve aan de noordzijde de rand van de gemeente Nieuwegein. De naam Blokhoeve komt van een historische nederzetting met die naam. Het stedenbouwkundig plan van Blokhoeve bestaat uit drie deelgebieden. De deelgebieden worden door brede waterpartijen van elkaar gescheiden waardoor men kan spreken van drie gebieden. Ieder gebied heeft een eigen karakter en sfeer. Het meest zuidelijke gebied is het Blok.   Op loopafstand is de tramhalte. Met de tram is het vijf minuten naar City Plaza in het centrum van Nieuwegein. Het is tien minuten met de tram naar Utrecht centraal. De trams rijden om de tien minuten. Er liggen goede fietspaden en ook de A2 en de A12 zijn makkelijk bereikbaar.   Duurzaamheid De woningen voldoen aan de EPC klasse <=0,4. Dit betekent dat de woningen goed zijn geïsoleerd waardoor ze energiezuinig zijn. Het begrip energielabel wordt bij nieuwbouw niet meer gehanteerd, maar een EPC <= 0,4 komt overeen met een energielabel A++.   Er zijn zonnepanelen geplaatst. De opbrengst wordt gebruikt voor de algemene voorzieningen, zoals de algemene verlichting en de lift.   Een onderhoudsabonnement kunt u afsluiten als u kleine reparaties in en om uw huis door Portaal wilt laten doen. Wilt u dit abonnement afsluiten? Geeft u dit dan aan op het acceptatieformulier. Voorwaarden: Uw inkomen is bepalend om in aanmerking te komen voor een sociale huurwoningen zie: www.portaal.nl/ik-zoek-een-woning/sociale-huurwoning/inkomensgrenzen/  voor de inkomensgrenzen.   Voor de documenten die u nodig heeft om in aanmerking te komen voor deze woning zie: www.portaal.nl/ik-zoek-een-woning/sociale-huurwoning/reageren/   Als u recht heeft op huurtoeslag, dan betaalt u een lagere huur. Op  https://www.belastingdienst.nl/rekenhulpen/toeslagen/  kunt u berekening maken.   “Laat u een grote woning achter? Mogelijk komt u in aanmerking voor de regeling van Groot naar Beter. Voor meer info zie www.verhuisadviseursenioren,nl/regelingen .”

Kaart