Huurwoning Nieuwegein

Vosseweide 20, Nieuwegein

Korte samenvatting

Locatie
Nieuwegein
Huurprijs
€ 688,56
Type woning
Benedenwoning
Oppervlakte:
63 m2
Kamers:
2
Slaapkamers:
1
Wachttijd:
(niet ingesteld)
Datum beschikbaar:
25 aug 2025
Maximaal inkomen:
€ 39.055,00
Status:
Verlopen

Omschrijving woning

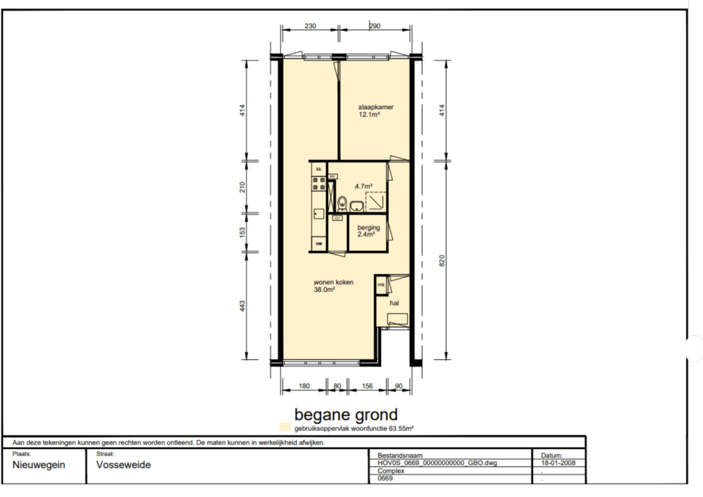
2-Kamer begane grond woning aan de Vosseweide in Nieuwegein. De woning ligt op de begane en beschikt over een achtertuin op het Zuid-oosten.IndelingDe woning beschikt over een woonkamer, een half open keuken waar u op gas kunt koken, 1 slaapkamer, een badkamer met een toilet. De woning wordt verwarmdd.m.v. centrale verwarming.Er is een individuele berging aanwezig.Technische staatHoud er rekening mee dat u zelf ook nog het een en ander moet doen om de woning naar uw smaak te maken. Denk daarbij aan het leggen van vloeren, behangen van muren en schilderwerk in de woning. In het bijgevoegde document leest u welke klussen voor uzelf zijn en welke Woonin voor u doet.OmgevingDe woning ligt gunstig gelegen ten opzichte van de winkels, scholen en diverse parkjes. Je bent met de auto en/of fiets binnen enkele minuten op CityPlaza. Diverse uitvalswegen (A2/A12/A27) zijn nabij. Nieuwegein is ook erg goed bereikbaar met het openbaar vervoer (tram/bus­).BeeldmateriaalHelaas hebben wij weinig beeldmateriaal tot onze beschikking. Als u in aanmerking komt voor deze woning, dan kunt u de woning natuurlijk bezichtigen.BezichtigingKandidaten die in aanmerking komen voor de bezichtiging ontvangen na sluitingsdatum van de advertentie nog een uitnodiging met de definitieve datum en tijdstip.BijzonderhedenLet op:Het plaatsen van een schotelantenne is niet toegestaan bij deze woning;Het definitieve energielabel is nog niet beschikbaar. Een nieuw label is aangevraagd en zal beschikbaar zijn bij het ondertekenen van de huurovereenkomst;Onze aannemer zal nog enkele werkzaamheden verrichten. Daarom is de beschikbaarheidsdatum in DAK niet correct en betreft het een fictieve datum.

Kaart