Huurwoning Oudewater

Tol 9, Oudewater

Korte samenvatting

Locatie
Oudewater
Huurprijs
€ 914,96
Type woning
Tussenwoning
Oppervlakte:
63 m2
Kamers:
4
Slaapkamers:
3
Wachttijd:
(niet ingesteld)
Datum beschikbaar:
1 feb 2025
Maximaal inkomen:
(niet ingesteld)
Status:
Verlopen

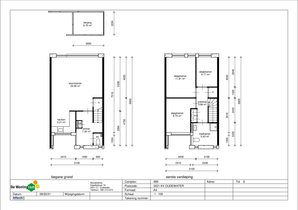
Omschrijving woning

De aangeboden tussenwoning is gelegen in de wijk ‘Noort Syde II’. Natuur, ruimte en diversiteit, dit zijn woorden die de wijk ‘Noort Syde II’ goed kenmerken. De ligging is prachtig in een groen gebied dichtbij de binnenstad van Oudewater en gunstig gelegen ten opzichte van uitvalswegen richting Utrecht of Gouda. Voorzieningen als winkels, sportverenigingen, gezondheidszorg en cultuurhuis zijn in de buurt. De wijk grenst aan een nieuw park dat de afscheiding vormt tussen de polder en de woningen in de wijk. De woning bestaat uit 2 woonlagen en beschikt over voortuin en achtertuin (ZW) met stenen berging.Indeling;Entree, meterkast, toilet, tuingerichte woonkamer met trapkast en open keuken aan de voorzijde (totaal 31 m²). De keuken heeft een hoekopstelling en is v.v. een gasaansluiting voor koken. De woonkamer geeft toegang tot de achtertuin met stenen berging.1eVerdieping;Overloop, 2 vaste kast waarvan 1 kast met opstelplaatsen van unit M.V. en CV-/boiler installatie, 3 slaapkamers (ca. 6, 9 en 12 m²), badkamer (ca. 5 m²), v.v. douche, wastafel, 2etoilet en wasmachine-aansluiting.Voorzieningen;Televisie- en telefoonaansluiting in woonkamer (grote slaapkamer loze leidingen)Rookmelders aangesloten op het lichtnetIndividuele HR-combiketel voor verwarming en koken op gasMechanische ventilatieZonneboiler voor warm waterZonnepanelen met bijbehorende installatie om eigen energie op te wekken - LET OP: U sluit hiervoor een contract af met Wocozon. De servicekosten zijn in de brutohuur inbegrepen.Woningbezichtiging;Wij nodigen een beperkt aantal kandidaten uit voor een groepsbezichtigingWanneer u tot 1 van de kandidaten behoort krijgt u een uitnodiging per e-mail toegestuurdDeze aanbieding geldt niet indien;Uw (verzamel)inkomen te hoog of te laag is volgens de bepalingen in de Woningwet dan wel Huisvestingsverordening van de Gemeente Oudewater (zie www.oudewater.nl)U niet voldoet aan de passendheidseisen gesteld in de Huisvestingsverordening van de Gemeente OudewaterU niet voldoet aan de voorwaarden in de woningadvertentieU geen verhuurdersverklaring heeft ingeleverd als u doorstromer bentUit de verhuurdersverklaring, de kredietcheck of uit andere informatie blijkt dat er sprake is (geweest) van feiten of omstandigheden die voor ons reden zijn om geen huurovereenkomst met u te willen aangaan, zoals (huur) schulden of overlastVerhuurdatum is onder voorbehoud. De woning wordt kaal opgeleverd.Aan deadvertenties, foto's, informatie en teksten in deze advertentie kunnen geen rechten worden ontleend. Wijzigingen en typefoutenvoorbehouden.

Kaart