Huurwoning Soest

Varenstraat 296, Soest

Korte samenvatting

Locatie
Soest
Huurprijs
€ 538,28
Type woning
Appartement
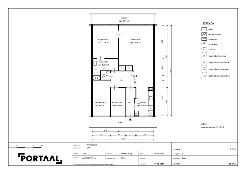
Oppervlakte:
80 m2
Kamers:
4
Slaapkamers:
3
Wachttijd:
(niet ingesteld)
Datum beschikbaar:
28 dec 2022
Maximaal inkomen:
€ 39.055,00
Status:
Verlopen

Omschrijving woning

Verhuurbaarheidsdatum onder voorbehoud. Dit appartement op de 2 e verdieping van woningcorporatie Portaal is gelegen in de ruim opgezette wijk Smitsveen in Soest. Indeling woning De woning is voorzien van een afgesloten entr e en wordt verwarmd met een eigen CV-installatie. De servicekosten zijn onder andere inclusief voorschot gemeenschappelijk electra, schoonmaakkosten. Er is geen lift aanwezig. Op de begane grond is een eigen afgesloten fietsenberging aanwezig. Voorzieningen Diverse voorzieningen zoals winkels, scholen en openbaar vervoer zijn op loopafstand. Ook is er genoeg parkeergelegenheid. Belangrijke informatie Al onze woningen van voor 1994 worden asbestveilig opgeleverd en in technisch goede staat. Houdt er rekening mee dat u vloeren, wanden en schilderwerk binnen zelf zal moeten doen ! U en alle meeverhuizende volwassen personen (behalve kinderen) zijn bij het reageren op een woning verplicht in bezit te zijn van een recente inkomensverklaring. Dit doet u via www.mijnbelastingdienst.nl. Indien u inkomen onbekend is bij de belastingdienst, of boven de inkomensgrens komt dan moet u van de afgelopen 3 maanden salaris/pensioen/uitkering specificatie inleveren. Accepteren van de woning Om een woning te accepteren hebben wij de volgende documenten nodig: Acceptatieformulier (via website van Portaal) Inkomensverklaring 2021 Recent inkomen van de laatste 3 maanden BRP met woonhistorie (via Gemeente) Verhuurdersverklaring (indien uw huidige woning een huurwoning betreft) Voorwaarden: U en alle meeverhuizende volwassen personen (behalve kinderen) moeten bij het reageren op een woning een recente inkomensverklaring hebben. U vraagt deze op via www.mijnbelastingdienst.nl . Als uw inkomen onbekend is bij de Belastingdienst, of boven de inkomensgrens komt, dan moet u daarbij ook van de afgelopen 3 maanden salaris/pensioen/uitkering specificaties inleveren. Als u bij de acceptatie van de woning de inkomensverklaring niet heeft, dan kunnen wij de woning niet aan u toewijzen. Kijk op onze website voor de documenten die u nodig heeft om in aanmerking te komen voor deze woning. Als u recht heeft op huurtoeslag, dan betaalt u mogelijk een lagere huur . Op onze website leest u welk inkomen u moet opgeven.

Kaart