Huurwoning Soest

Weegbreestraat 117, Soest

Korte samenvatting

Locatie
Soest
Huurprijs
€ 786,02
Type woning
Appartement
Oppervlakte:
79 m2
Kamers:
4
Slaapkamers:
3
Wachttijd:
(niet ingesteld)
Datum beschikbaar:
2 jan 2026
Maximaal inkomen:
(niet ingesteld)
Status:
Gepubliceerd
Reageren

Omschrijving woning

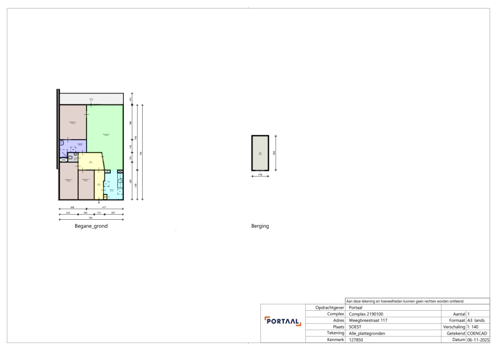
Dit ruime 4- kamer appartement van woningcorporatie Portaal is gelegen in de wijk “Smitsveen” te Soest. Het appartement bevindt zich op de 3everdieping.Indeling woningBinnenkomst hal met toegang tot keuken. Via de hal heeft u toegang tot 2 slaapkamers, toilet en badkamer. Vanuit de woonkamer heb je toegang tot het balkon. De 3eslaapkamer is te bereiken via de woonkamer of via de badkamer. Hiervoor verwijzen wij u naar de plattegrond. Hier kunnen echter geen rechten aan worden ontleend.VoorzieningenDiverse voorzieningen zoals winkels en openbaarvervoer zijn op loopafstand of goed bereikbaar.Belangrijke informatieDe woning wordt met voorrang toegewezen aan een huishouden vanaf 2 personen.U en uw eventuele partner zijn bij het reageren op een woning verplicht in bezit te zijn van een recente inkomensverklaring. Dit vraagt u aan viawww.mijnbelastingdienst.nl.Let op! Uw kleinkinderen, broers/zussen, vader/moeder, neven/nichten en kennissen zijn geen partner en behoren niet tot uw huishouden. U kunt dus niet met de genoemde personen reageren en de woning verkrijgen. Enkel uw eigen (meeverhuizende) kinderen en eventuele partner mogen op uw inschrijving staan.Accepteren van de woningOm een woning te accepteren hebben wij de volgende documenten nodig van u en van uw eventuele partner:Acceptatieformulier (via website van Portaal)Inkomensverklaring 2024 van u en uw eventuele partner.Drie meest recente inkomensspecificaties van u en uw eventuele partnerBRP met woonhistorie en burgerlijke staat (via Gemeente) van u en uw eventuele partnerVerhuurdersverklaring (indien uw huidige woning een huurwoning betreft, welke niet van Portaal is)Kopie van de voor- en achterkant van uw geldige legitimatiebewijs van u en uw eventuele partnerUw inkomensverklaring wordt geïndexeerd en zal dan binnen de grenzen moeten vallen. Voorkom teleurstelling en geef in Dak/woningnet het juiste inkomen op voordat u op een woning gaat reageren. Voor meer informatie over de indexatie kijk op eemvallei.mijndak.nlTechnische staat woningHoudt u er rekening mee dat u vloeren, wanden en schilderwerk binnen zelf zal moeten doen!Al onze woningen van voor 1994 worden asbestveilig opgeleverd en  in technisch goede staat. Houdt er rekening mee dat u vloeren, wanden en schilderwerk binnen zelf zal moeten doen!Behoud inschrijfduurHeeft u een woning geaccepteerd via Woningnet regio Eemvallei? Per 1 juli 2022 behoudt u 75% van uw inschrijfduur als u zich binnen een jaar opnieuw inschrijft.Op deze manier kunt u sneller verhuizen als de woning toch niet bevalt of uw persoonlijke situatie verandert.Aan deze advertentie kunnen geen rechten worden ontleend.

Kaart