Huurwoning Tienhoven

Kweldam 28, Tienhoven

Korte samenvatting

Locatie
Tienhoven
Huurprijs
€ 764,14
Type woning
Tussenwoning
Oppervlakte:
67 m2
Kamers:
3
Slaapkamers:
2
Wachttijd:
(niet ingesteld)
Datum beschikbaar:
22 jan 2026
Maximaal inkomen:
(niet ingesteld)
Status:
Gepubliceerd
Reageren

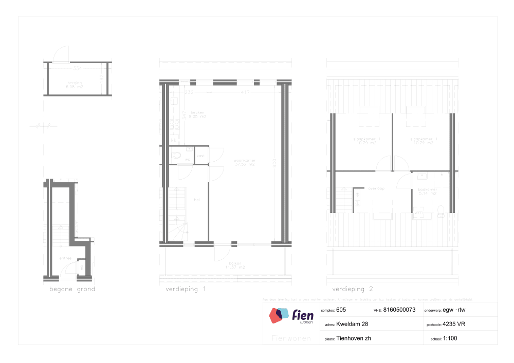
Omschrijving woning

Mooie bovenwoning (2 verdiepingen) met open keuken, twee slaapkamers en een badkamer met tweede toilet. De maisonnette woning is goed onderhouden, volledig geïsoleerd en heeft een ruim balkon aan de woonkamer. U kunt gebruik maken van uw eigen berging van 6 m2.

Kaart