Huurwoning Utrecht

Falklanddreef 141, Utrecht

Korte samenvatting

Locatie
Utrecht
Huurprijs
€ 713,52
Type woning
Portiekwoning
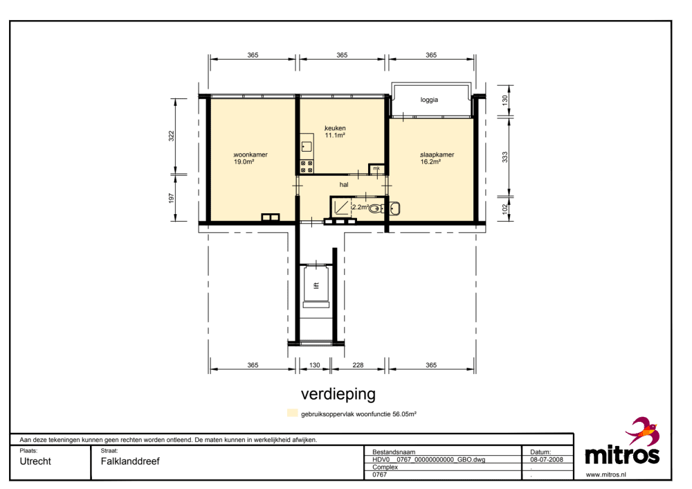
Oppervlakte:
56 m2
Kamers:
2
Slaapkamers:
1
Wachttijd:
(niet ingesteld)
Datum beschikbaar:
11 mrt 2025
Maximaal inkomen:
€ 39.055,00
Status:
Verlopen

Omschrijving woning

2-Kamer appartement aan de Falklanddreef 141, in de wijk Overvecht. Het appartement ligt op de 9e verdieping (er is een lift aanwezig t/m de 9e verdieping) en beschikt over een loggia op het zuidwesten.Indeling:Je komt binnen via de gezamenlijke entree van het appartementencomplex. De woning beschikt over een woonkamer, gesloten keuken waar u elektrisch kunt koken, 1 slaapkamer en een badkamer met toilet.De woning wordt verwarmdd.m.v. stadsverwarming.Er is een individuele berging aanwezig.Technische staat:Houd er rekening mee dat u zelf ook nog het een en ander moet doen om de woning naar uw smaak te maken. Denk daarbij aan het leggen van vloeren, behangen van muren en schilderwerk in de woning. In onze brochure “goed voorbereid een woning bezichtigen” leest u welke klussen voor uzelf zijn en welke Woonin voor u doet.Omgeving:Overvecht is de afgelopen jaren flink opgeknapt. Op loopafstand liggen diverse scholen, supermarkten, andere winkels en eet- en drinkgelegenheden. Daarnaast is Overvecht goed bereikbaar met het openbaar vervoer (NS Station Overvecht) en binnen 15 fietsminuten ben je in het centrum van Utrecht. Met de auto ben je binnen enkele minuten op de diverse uitvalswegen en de A27. In heel Overvecht is parkeren gratis.Bezichtiging:Kandidaten die in aanmerking komen voor de bezichtiging ontvangen na sluitingsdatum van de advertentie een uitnodiging met de datum en het tijdstip.BeeldmateriaalHelaas hebben wij weinig beeldmateriaal tot onze beschikking. Als u in aanmerking komt voor deze woning, dan kunt u de woning natuurlijk bezichtigen.BijzonderhedenLet op:- Het plaatsen van een schotelantenne is niet toegestaan bij deze woning.- In de woning ligt een vloer die gratis ter overname wordt aangeboden.- In de keuken is al een fornuis aanwezig. Let op; hier pleegt Woonin geen onderhoud aan.- Videofoon aanwezigEnergielabel:D (geldig)

Kaart