Huurwoning Utrecht

Marshalllaan 260, Utrecht

Korte samenvatting

Locatie
Utrecht
Huurprijs
€ 913,57
Type woning
Portiekwoning
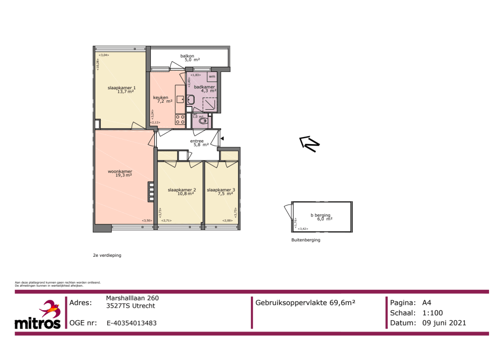
Oppervlakte:
69 m2
Kamers:
4
Slaapkamers:
3
Wachttijd:
(niet ingesteld)
Datum beschikbaar:
23 sep 2025
Maximaal inkomen:
(niet ingesteld)
Status:
Verlopen

Omschrijving woning

4-Kamer appartement aan de Marshallaan, in de wijk Kanaleneiland. Het appartement ligt op de 2e verdieping en beschikt over een balkon op het noordoosten.Indeling:Je komt binnen via de gezamenlijke entree van het appartementencomplex. De woning beschikt over een woonkamer, een gesloten keuken waar u op gas kunt koken, 3 slaapkamers, een badkamer en een apart toilet.De woning wordt verwarmdd.m.v. centrale verwarming.Er is een individuele berging aanwezig.Technische staat:Houd er rekening mee dat u zelf ook nog het een en ander moet doen om de woning naar uw smaak te maken. Denk daarbij aan het leggen van vloeren, behangen van muren en schilderwerk in de woning. In onze brochure “goed voorbereid een woning bezichtigen” leest u welke klussen voor uzelf zijn en welke Woonin voor u doet.Omgeving:Alle stadsvoorzieningen zoals winkelcentrum Nova, de woonboulevard, sportvoorzieningen, park Transwijk en openbaar vervoer liggen op korte afstand. Het station en het centrum van Utrecht zijn op fietsafstand gelegen.BijzonderhedenLet op:- Het plaatsen van een schotelantenne is niet toegestaan bij deze woning.BeeldmateriaalHelaas hebben wij weinig beeldmateriaal tot onze beschikking. Als u in aanmerking komt voor deze woning, dan kunt u de woning natuurlijk bezichtigen.ZonnepanelenOp deze woning zijn zonnepanelen geplaatst die energie opwekken.Bezichtiging:Kandidaten die in aanmerking komen voor de bezichtiging ontvangen na sluitingsdatum van de advertentie nog een uitnodiging met de definitieve datum en tijdstip.

Kaart