Huurwoning Veenendaal

Hollandia 161, Veenendaal

Korte samenvatting

Locatie
Veenendaal
Huurprijs
€ 841,51
Type woning
Portiekwoning
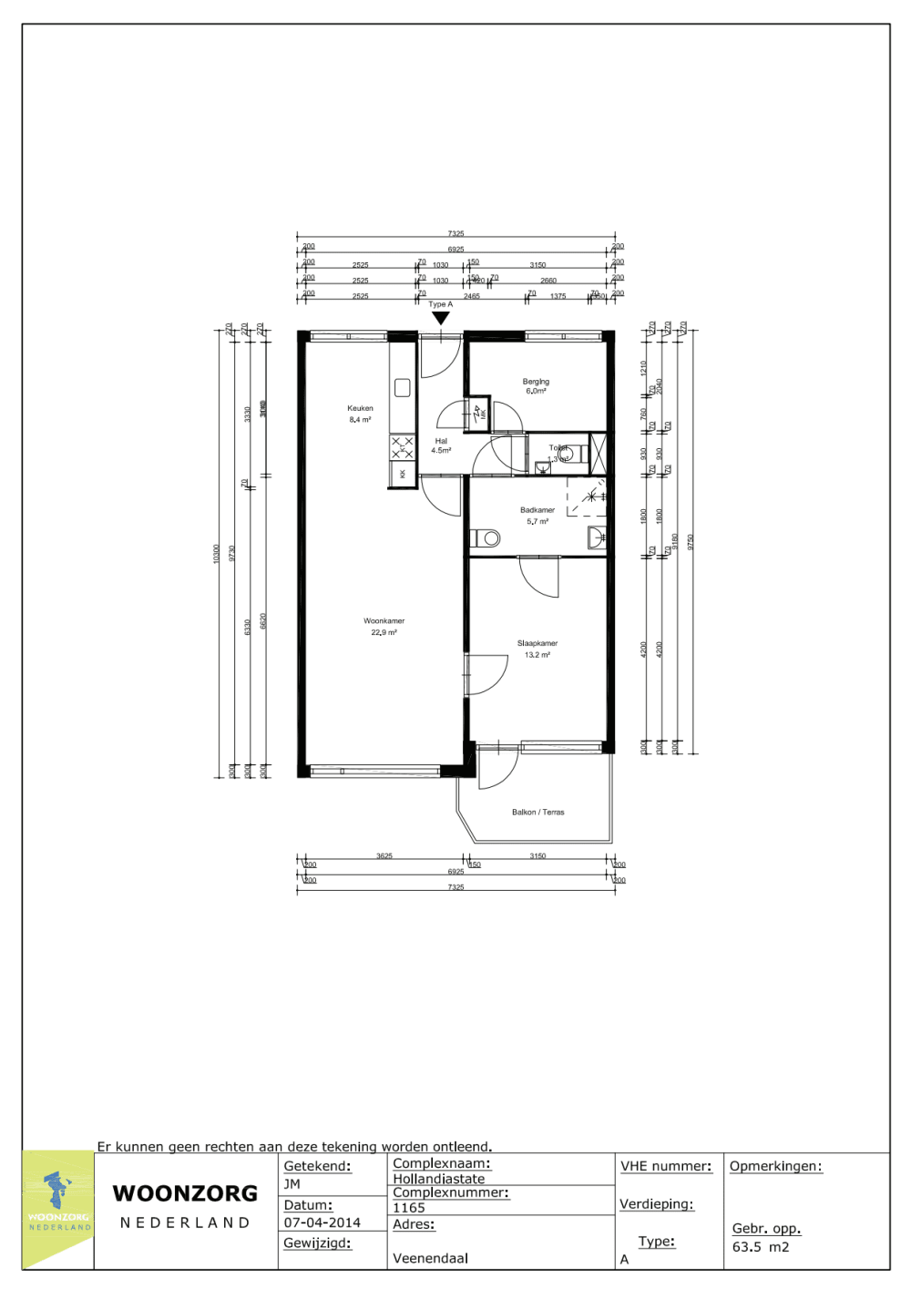
Oppervlakte:
62 m2
Kamers:
2
Slaapkamers:
1
Wachttijd:
(niet ingesteld)
Datum beschikbaar:
30 mei 2026
Maximaal inkomen:
(niet ingesteld)
Status:
Verlopen

Omschrijving woning

Over het complexHollandia Staete ligt op 500 meter van het centrum van Veenendaal. U woont hier zelfstandig in een rustige omgeving, met winkels en openbaar vervoer om de hoek. Het complex is bestemd voor 55-plussers. Het gebouw is al verduurzaamd waardoor u prettig en comfortabel woont in het gebouw.In het gebouw is een gezellige recreatieruimte aanwezig voor ontmoeten en activiteiten.Zorg dichtbijQuaRijn biedt wijkverpleging binnen Hollandia Staete om zo lang mogelijk zelfstandig te wonen.Voor al uw vragen over onze wijkverpleging kunt u contact opnemen met het Service Bureau QuaRijn. Zij helpen u verder.085 488 99 00(maandag t/m vrijdag van 08.30 tot 17.00 uur).Kijk hiervoor meer informatie over alle diensten.Over de woningenDe woningen hebben een oppervlakte van 65 m². Ze bestaan uit een ruime woonkamer met halfopen keuken, een grote slaapkamer, een kleinere kamer en een ruime badkamer. De woningen zijn drempelvrij en volledig rolstoeltoegankelijk. Woningen op de begane grond hebben een tuin; de woningen op de verdiepingen hebben een balkon.Feiten op een rijtje:Hollandia Staete; Hollandia 1 t/m 165 in VeenendaalBalkon aanwezigDe woningen zijn speciaal voor 55-plussersZorginstelling QuaRijn aanwezig in complex voor hulp aan huisGezellige recreatieruimte met biljartMooie tuin rondom het complex met Jeu de Boules baanEnergiezuinige woning; muurisolatie, dubbelglas aanwezig. Daarnaast heeft elke woning 4 eigen zonnepanelen en een CO2 gestuurde ventilatieBushalte binnen 200 meter afstandOp steenworp afstand van het gezellige centrum van Veenendaal.Er is een bewonersconsulent waar u met al uw vragen terecht kan.Wasmachine en droger aanwezig voor algemeen gebruik.Oppervlakte van de woningen is vanaf 55 m2De woningen zijn gelijkvloersGemeenschappelijke fietsenstalling voor stallen (elektrische) fietsParkeren auto in vergunninghouders gebiedGezellige centrum van Veenendaal op ongeveer 500 meter afstandBushalte binnen 200 meterNB: Een lifestyle gesprek is onderdeel van de toewijzingsprocedure.

Kaart