Huurwoning Zeist

Ter Braaklaan 4, Zeist

Korte samenvatting

Locatie
Zeist
Huurprijs
€ 475,95
Type woning
Maisonnette
Oppervlakte:
35 m2
Kamers:
2
Slaapkamers:
1
Wachttijd:
(niet ingesteld)
Datum beschikbaar:
5 jun 2025
Maximaal inkomen:
€ 39.055,00
Status:
Verlopen

Omschrijving woning

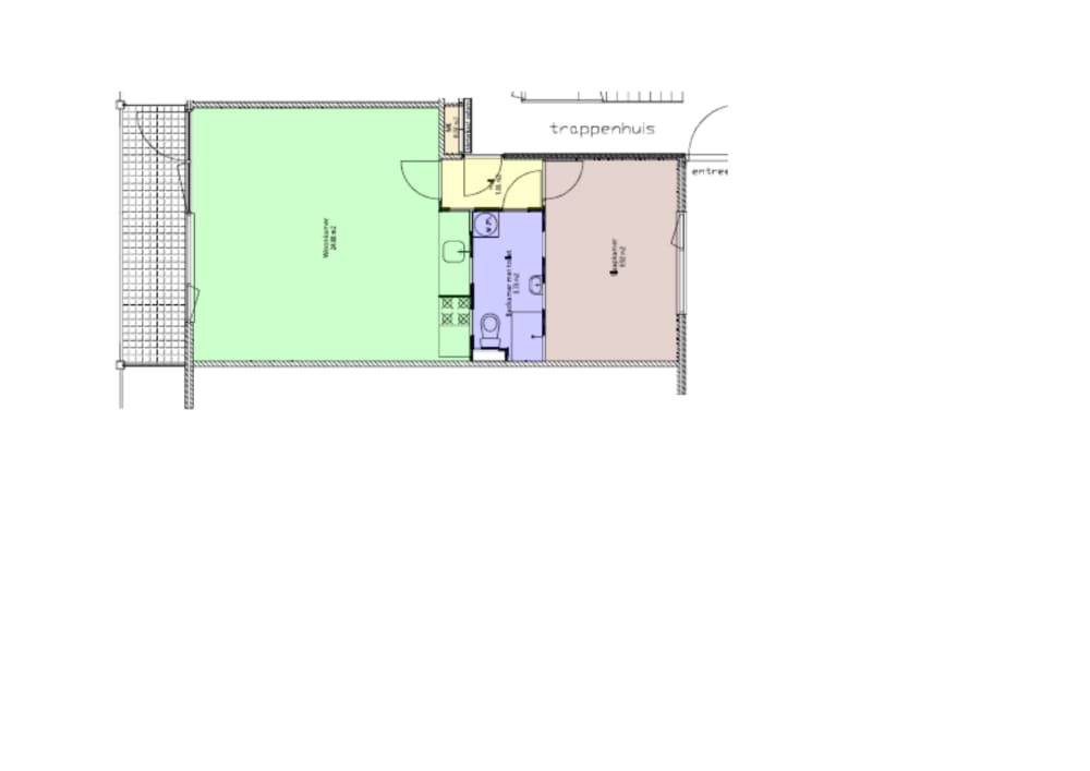
De woningTwekamer appartement op de begane grond. Via de hal kom je woonkamer met open keuken, de badkamer met het toilet en de slaapkamer.Voor deze woning geldt een jongerencontract. Je krijgt een tijdelijk huurcontract voor de (maximale) duur van 5 jaar. Na 5 jaar eindigt de huurovereenkomst. Je inschrijftijd bij WoningNet blijft behouden en vervalt dus niet als je deze woning accepteert.Helaas hebben wij geen plattegrond van deze woning. De bijgevoegde plattegrond is van een soortgelijke woning

Kaart